EasyManua.ls Logo

Siemens SIMODRIVE 611 universal - 2.3 Connection diagram and wiring

Siemens SIMODRIVE 611 universal
930 pages
Print Icon
To Next Page IconTo Next Page
To Next Page IconTo Next Page
To Previous Page IconTo Previous Page
To Previous Page IconTo Previous Page
Loading...
2
2.3 Connection diagram and wiring
2-71
Siemens AG 2005 All Rights Reserved
SIMODRIVE 611 universal Description of Functions (FBU) – 04.05 Edition
2.3 Connection diagram and wiring
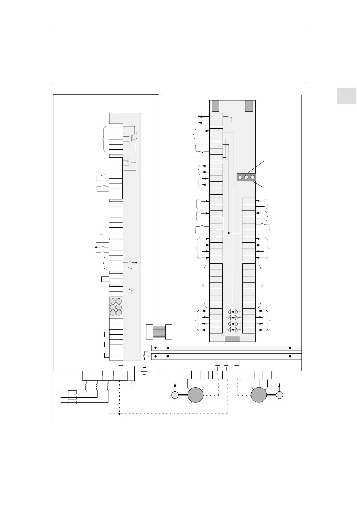
2.3.1 Connection diagram for the ”SIMODRIVE 611 universal” board
M
3
W2V2
U2
P 600
M 600
DC link
Equip-
ment
bus
X412
Motor
encoder
drive A
X471 Serial interface
RF
Signaling contact
Start inhibit
Power module with ”SIMODRIVE 611 universal”Supply infeed module
X111
X121
P500
2U1
1U1
2V1
1V1
2W1
1W1
74
73.2
73.1
72
5.3
5.2
5.1
63
9
64
19
9
7
45
44
10
15
15
R
9
112
48
111
113
AS1
AS2
NS1
NS2
X131
X141
X161
X171
X172
X181
Relay
contact
Ready
signal
Group signal,
I
2
t/temperature
monitoring
Pulse enable
Drive enable
FR+
FR–
P24
P15
N15
N24
M
M
RESET
FR+
Contactor control
SPP
EXT
5 V
UNIT
V
DC
link
>>
M500
M
3
G
PE
F
N
L1
L2
L3
L
K
external
internal
Setting-up oper.
213
Signaling
contact
Start inhibit
FR+
Signaling
contacts,
line contactor
Motor encoder
drive B
9
19
M24
P24
AS1
AS2
FR+
IF
75.B
16.B
16.A
75.A
AO1
Reference
AO2
X411
AO1
AO2
B+.A
B–.A
R+.A
A–.A
A+.A
R–.A
O0.A
O1.A
O2.A
O3.A
to X411 to X412
663
FR+
15
X421
X431
X34
M
DAU1
DAU2
Digital
outputs
(O:
Output)
Test sockets
Digital
inputs
(I: Input)
Digital
outputs
(O: Output)
Digital
inputs
(I: Input)
Analog
outputs
External
supply
Chkb. signal
Pulse enable
Ang. incr.
encoder
interface
Ang. incr.
encoder
interface
0 ... ±10 V
(e.g. n
set
1
)
Analog
input 2
Analog
input 1
Analog
input 2
RF
FR+
Reference FR–
external
internal
PE PE PE
W2V2
U2
A1 A2
X451X461
X452X462
X441
to (from)
higher–level
control
external
G
X151
X351
PE1
W1V1
U1
Drive A (motor 1) Drive B (motor 2)
Note:
The terminals which
are highlighted
must, as a minimum,
be connected up in
order that the drives
can operate.
B+.B
B–.B
R+.B
A–.B
A+.B
R–.B
O0.B
O1.B
O2.B
O3.B
24.A
20.A
65.A
14.A
56.A
9
I0.A
I1.A
I2.A
I3.A
24.B
20.B
65.B
14.B
56.B
9
I0.B
I1.B
I2.B
I3.B
IF: Pulse enable
RF: Contr. enable
FR+: Enable volt.
1) from SW 5.1, for 6SN1118–N01–0AA: Order No.[MLFB] refer to Table 1-2
15
1)
15
1)
Fig. 2-6 Connection diagram for the control board
2 Installing and Connecting-Up
01.99
! not 611ue !
02.02

Table of Contents

Related product manuals