EasyManua.ls Logo

Siemens SINAMICS S120 - Page 698

Siemens SINAMICS S120
1094 pages
To Next Page IconTo Next Page
To Next Page IconTo Next Page
To Previous Page IconTo Previous Page
To Previous Page IconTo Previous Page
Loading...
Safety Integrated Basic Functions
10.8 Control via terminals on the Control Unit and Motor/Power Module
Drive functions
698 Function Manual, 11/2017, 6SL3097-4AB00-0BP5
Both terminals must be energized within the tolerance time p9650, otherwise a fault will be
output.
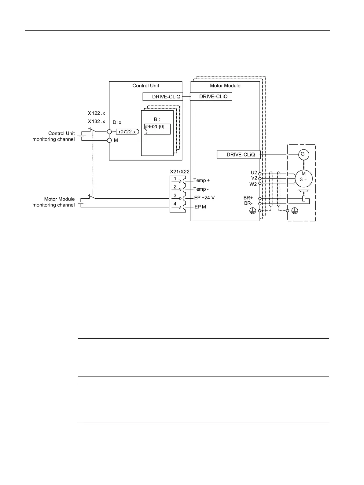
Figure 10-2 Example: Terminals for "Safe Torque Off": Example of Motor Modules Booksize and CU320-2
Grouping drives (not for CU310-2)
To ensure that the function works for more than one drive at the same time, the terminals for
the corresponding drives must be grouped together as follows:
1. Switch-off signal path
Connect the p9620 parameters of all drives that belong to a group with a single DI
(r0722.x) of the CU320-2.
2. Switch-off signal path (Motor Module / Power Module with CUA3x)
Wire the terminals for the individual Motor Modules / Power Modules, belonging to the
group, with CUA31/CUA32.
Note
Parameterization of the grouping
The grouping must be configured (DI o
n Control Unit) and wired (EP terminals) identically in
both monitoring channels.
Note
Response of STO for grouping
If a fault in a drive results in a "Safe Torque Off" (STO), this does not automatically mean
that the other drives in the same group al
so switch to "Safe Torque Off" (STO).

Table of Contents

Other manuals for Siemens SINAMICS S120

Related product manuals