EasyManua.ls Logo

Simrad argus - Page 154

Simrad argus
164 pages
Print Icon
To Next Page IconTo Next Page
To Next Page IconTo Next Page
To Previous Page IconTo Previous Page
To Previous Page IconTo Previous Page
Loading...
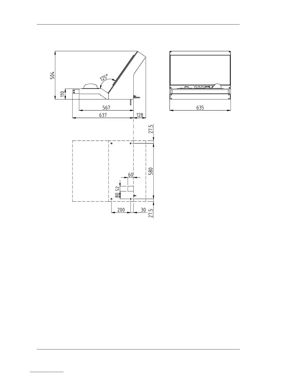
Argus Radar - ANNEX B
988-10187-004 7.23
ARGUS DISPLAYS Desk Mounting Version Outline Drawing
Weight 20 Kg IP 23
Monitor and Keyboard mounted on the mechanical part
All dimensions are in mm
- Grounding bolt.
- Output cables.
- Optional output cables.
- Panel cut-out for op-
tional output cables only.
- Drill N. 4 through holes
12 mm.
For installation use only
metric screws M10x1.5
stainless steel. Inside the
mechanical part the fixing
holes are threaded for 20
mm, it is recommended to
use the thread in full.
Tightening couple: 50 Nm.

Table of Contents

Related product manuals