Home
Sirona
Dental equipment
Intego
Service Manual
Page 28 (CAN, S-COM, and RS-485 Wiring Diagram)
Sirona Intego - CAN, S-COM, and RS-485 Wiring Diagram
162 pages
Manual
Save Page as PDF
To Next Page
To Next Page
To Previous Page
To Previous Page
Loading...
64 57 316 D3543
28
D3543
.
076.01.04
.
02
06.2015
5Important information
Sirona Dental Systems GmbH
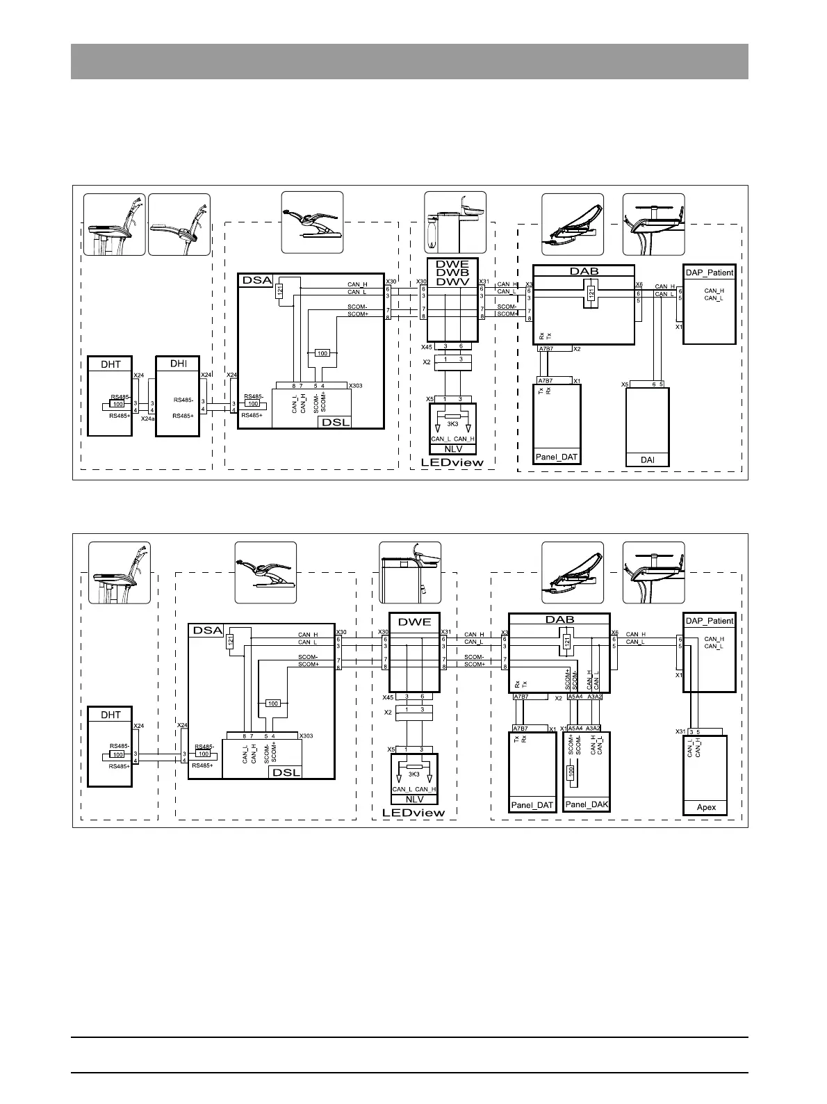
5.6CAN, S-COM, and RS-485 wir
ing diagram
Service Manual INTEGO
/ INTEGO pro
5.6
CAN, S-COM, and RS-485 wiring diagram
INTEGO
INTEGO pro
27
29
Table of Contents
Main Page
Structure of the Document
7
Symbols
8
Abbreviations
9
General Safety Information
10
Electrostatic Discharge
11
Prerequisites
12
Technical Data
13
Operating, Transport and Storage Conditions
14
Weight and Packaging
15
Important Information
16
Installing the Treatment Center Software
17
General
23
Measurements on the CAN BUS
24
S-Com
25
Measurements on the S-COM Bus
26
Rs-485
27
CAN, S-COM, and RS-485 Wiring Diagram
28
Safety Switches
29
Water Heater in the Water Unit
30
Overview of Signal Paths for Camera Control
32
Connecting the Motors and Turbines in the Dentist Element
35
Chair Movement Self-Test
39
Overview of Modules and Boards
40
Patient Chair
44
DSA Board – Patient Chair Control
45
DSS Board – DTC Unit Memory
52
DSL Board – LAN Interface
53
Board DSU - USB-HUB Chair
54
Dentist Element
55
DAB Board – Dentist Element Control
56
Board DAT - Easypad
59
DAK Board - Easytouch User Interface
61
DAR Board – Relay Module
63
DAI Board – Instrument Light Supply
65
DAU1 Board – USB HUB
67
DAU2 Board – USB HUB
68
DAP Board – Instrument Control
69
Board Dapm - Instrument Control
72
NAA Board - Apex Locator
74
Water Unit
76
Dwem Board Compact Water Unit Control
77
DWE Board – Comfort Water Unit Control
80
DWB Board – Compact Water Unit Control
84
NWM Board - Automatic Tumbler Filling
87
DWV Board – Air Venturi, Ledview
88
DHI Board – Instrument Light Supply
89
Assistant Element
90
NOP Board - 5 V Power Supply
91
DHI Board – Instrument Light Supply
92
DHT Board – Standard User Interface
93
Ledview
94
Replacing Components
96
Removing the Cover
97
Removing the Localizer Cover
98
TS Dentist Element
99
Opening the Dentist Element
101
CS Dentist Element
102
Opening the CS Dentist Element
104
Comfort Assistant Element
106
Compact Assistant Element
108
Comfort Water Unit
109
Compact Water Unit
111
Replacing Boards
113
Board Removal in the Assistant Element Compact
114
Mechanical Components
117
Hydraulic/Pneumatic Modules
118
Disinfectant Tank
119
Adjusting the Comfort Assistant Element Brakes
120
Adjusting the Brakes
122
Adjusting the Support Arm and Support Column Brakes on Ledview
123
Adjusting Other Joint Brakes
124
Checking and Setting Brakes and Spring Force on the Dentist Element
126
Setting the Spring Force of the Flexible Support Arm
128
Adjusting the Brakes
130
Removing/Fitting Panels on the Support Arm
131
Diagnostic Information
135
Function Pad Concept
136
Service and Configuration of the Treatment Center
137
Setting the Time and Date
138
Presetting the Timer
139
Adjusting the Cleaning Agent Mixture for Chemical Suction Hose
140
Switching the Key Sound On/Off
141
Amalgam Test
142
Assigning an Instrument to Holder 3
143
Safety Switch Test
144
Factory Setting
145
Service Settings with Easytouch User Interface
146
Entry Dialog
147
Amalgam Separator Test
148
Display Service Code List
149
Instrument Allocation for Tray 2 and 3
151
Default Settings
152
Reading Service Codes
153
PC Connection, Networking
154
Biofilm Removal
155
Execution
157
Re-Processing
159
Other manuals for Sirona Intego
Operating Instructions
326 pages
Operator's Manual
18 pages
Brief Operating Instructions
36 pages
Related product manuals
Sirona inLab MC X5
92 pages
Sirona inLab MC XL
60 pages
Sirona Intego Pro
326 pages
Sirona C4+
110 pages
Sirona C3+
38 pages
Sirona C8+
2 pages
Sirona C5+ Turn
40 pages
Sirona PerioScan
98 pages
Sirona Sidexis 4
18 pages
Sirona SIDEXIS XG
198 pages
Sirona Sprayvit M
22 pages
Sirona CEREC SpeedFire
56 pages