EasyManua.ls Logo

Skytrak 8042 - Telematics Option Schematics

Skytrak 8042
418 pages
Print Icon
To Next Page IconTo Next Page
To Next Page IconTo Next Page
To Previous Page IconTo Previous Page
To Previous Page IconTo Previous Page
Loading...
Electrical System
9-16
31211015 6036, 6042, 8042, 10042, 10054
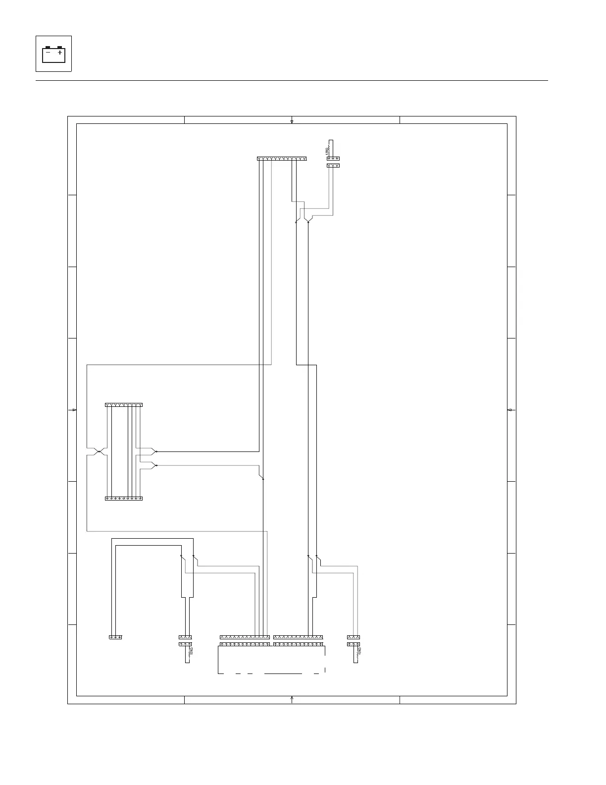
9.5.10 Telematics Option
A
B
C
D
8
7
6
5
4
3
2
1
D
C
A
B
1
2
3
4
5
6
7
8
CAN-2 LOW
CAN-2 HIGH
CAN-1 LOW
CAN-1 HIGH
GROUND
IGNITION
CAN-2 - SHIELD
TELEMATICS HARNESS
USE TERMINATOR
FROM CAB X332
(2-A6) TO X1147
TO TELEMATICS CONTROLLER
TO CAB
HARNESS
X332 (2-A6)
X1105
A
B
C
D
E
F
G
H
J
X1106
A
B
C
CANH1 YEL (18)
CANL1 GRN (18)
S1114
S1115
CANH1 YEL (18)
CANL1 GRN (18)
X1116
A
B
C
D
E
F
G
H
J
GATEWAY CONTROLLER
CO1117-J1 GRAY
1
2
3
4
5
6
7
8
9
10
11
12
CO1117-J2 BLACK
1
2
3
4
5
6
7
8
9
10
11
12
TELEMATICS GND BLK (16)
S1123
TELEMATICS IGN ORG (18)
TELEMATICS GND BLK (18)
TELEMATICS PWR RED (16)
CANH2 YEL (18)
CANL2 GRN (18)
X1128
A
B
C
CAN TERMINATION
X1132
A
B
C
CAN TERMINATION
S1139
S1140
CANH1 YEL (18)
CANL1 GRN (18)
CANL2 GRN (18)
CANH2 YEL (18)
S1141
CANL2 GRN (18)
S1142
CANH2 YEL (18)
CANL2 GRN (18)
CANH2 YEL (18)
GND BLK (16)
PWR RED (16)
CANH YEL (18)
CANL GRN (18)
IGN ORN (16)
IGN ORN (16)
S1143
GND BLK (16)
S1144
PWR RED (16)
S1119
IGN ORN (16)
X1145
1
2
3
4
5
6
7
8
9
10
11
12
TELEMATICS GND BLK (16)
TELEMATICS IGN ORN (16)
X1149
A
B
C
CAN TERMINATION
MAQ4850

Table of Contents