EasyManua.ls Logo

Skytrak 8042 - Electrical Circuit - Free Pivot Mode

Skytrak 8042
418 pages
Print Icon
To Next Page IconTo Next Page
To Next Page IconTo Next Page
To Previous Page IconTo Previous Page
To Previous Page IconTo Previous Page
Loading...
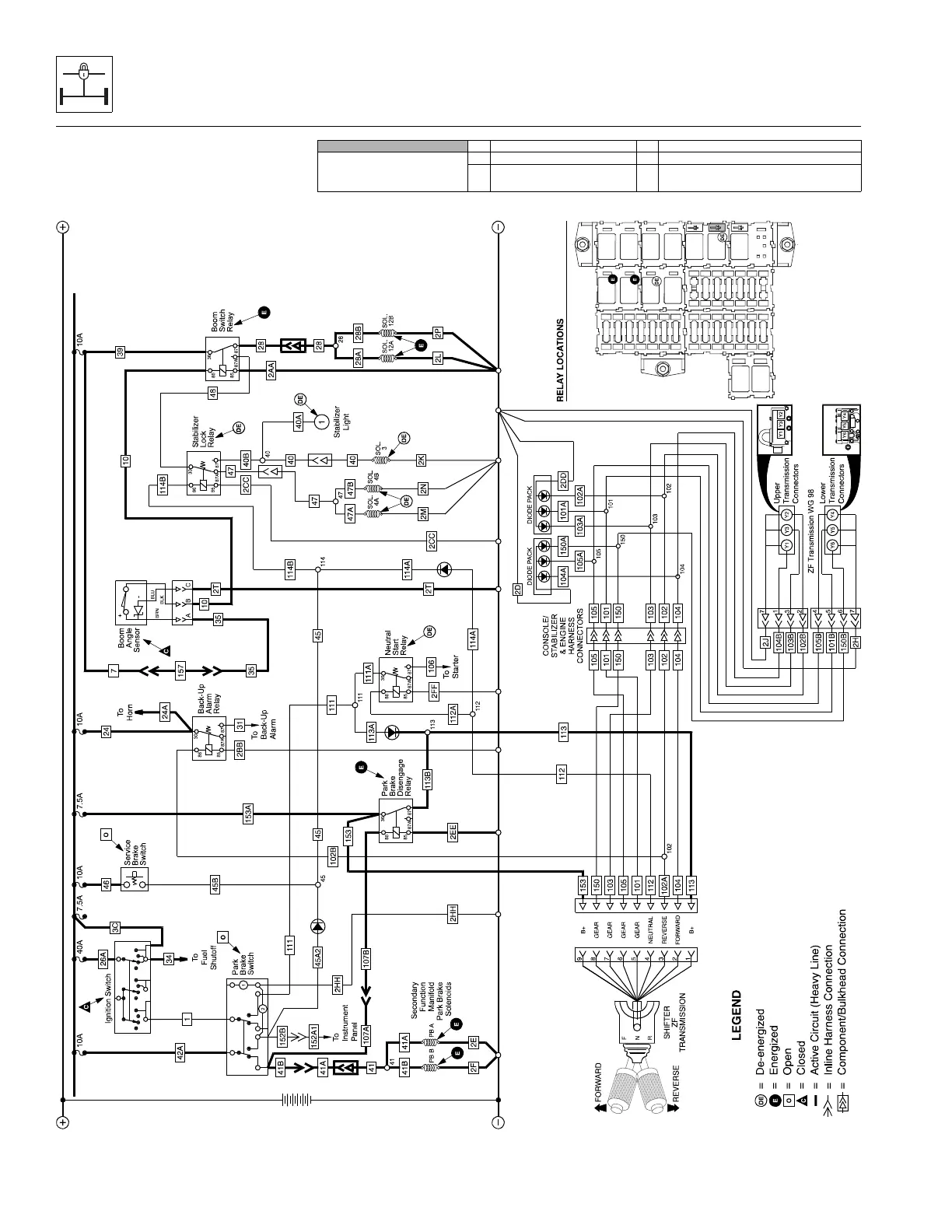
Stabil-TRAK™ System and Boom Interlock System
10-16
31211015 6036, 6042, 8042, 10042, 10054
6042, 8042 and 10042 Stabil-TRAK
Electrical Circuit
FREE PIVOT Mode
FREE PIVOT MODE 1. Ignition “ON” 4. PB & SB Released
Conditions
2. Boom Below 40° 5. Transmission in Fwd. or Rev.
3. Boom Retracted
Boom
Switch Relay
Stabilizer
Lock Relay
Neutral
Start Relay
Park Brake
Disengage
Relay
MAQ1920

Table of Contents