EasyManua.ls Logo

Sony DCR-TRV620E - PRINTED WIRING BOARDS AND SCHEMATIC DIAGRAMS; CD-242;266;270

Sony DCR-TRV620E
287 pages
Print Icon
To Next Page IconTo Next Page
To Next Page IconTo Next Page
To Previous Page IconTo Previous Page
To Previous Page IconTo Previous Page
Loading...
DCR-TRV320/TRV320E/TRV320P/TRV420E/TRV520/TRV520E/TRV520P/TRV525
TRV620E/TRV720/TRV720E
4-7 4-8
CCD IMAGER
CD-242/266/270
4-2. PRINTED WIRING BOARDS AND SCHEMATIC DIAGRAMS
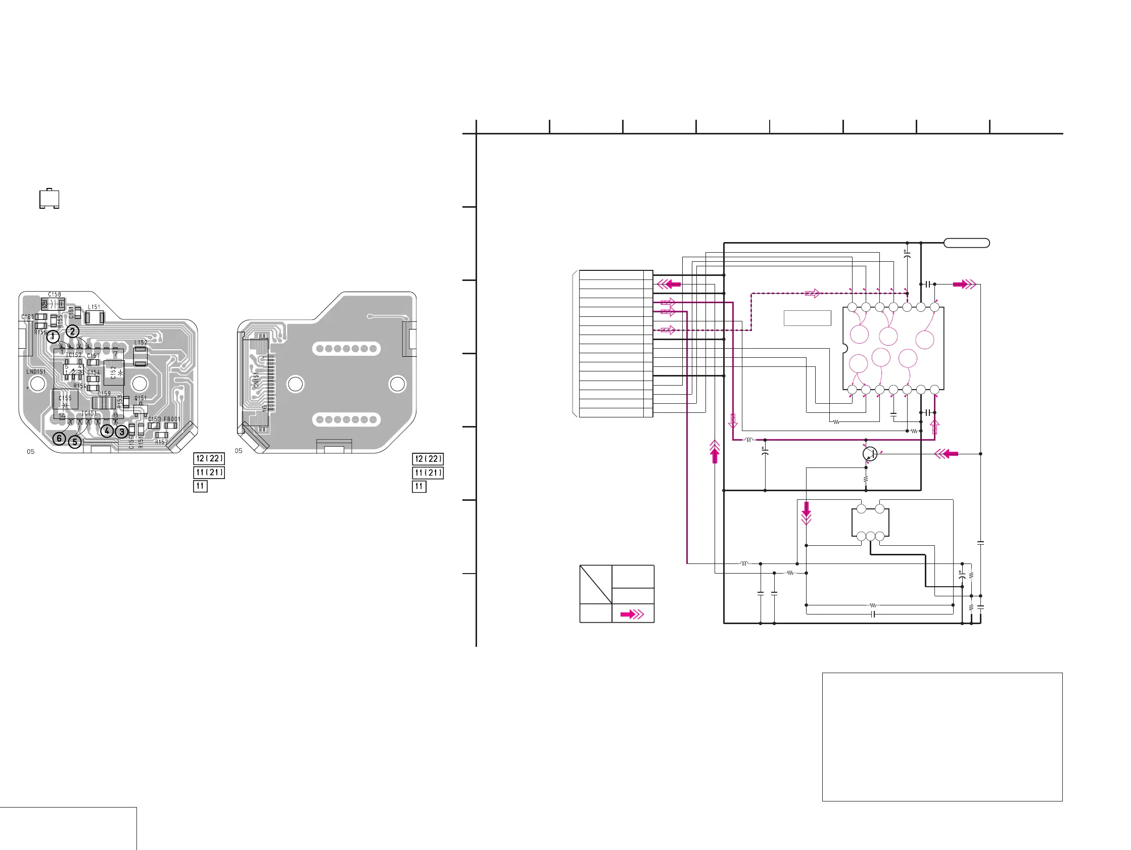
CD-242/266/270 (CCD IMAGER) PRINTED WIRING BOARD AND SCHEMATIC DIAGRAM • See page 4-119 for waveforms.
– Ref. No.: CD-242/266/270 board; 20,000 series –
– DCR-TRV320/TRV320P/TRV520/TRV520P/TRV525/TRV720 –
• For Printed Wiring Board.
There are few cases that the part isn't mounted in this model
is printed on this diagram.
Chip transistor
EB
C
Precautions for Replacement of CCD Imager
The CD-242/266/270 board mounted as a repair part is not
equipped with a CCD imager.
When replacing this board, remove the CCD imager from the
old one and mount it onto the new one.
If the CCD imager has been replaced, carry out all the
adjustments for the camera section.
As the CCD imager may be damaged by static electricity from
its structure, handle it carefully like for the MOS IC.
In addition, ensure that the receiver is not covered with dusts
nor exposed to strong light.
R1.4/
P0
R1.6/
P0
R10.5/
P0
R9.1/
P0
R9/P0
R12.3/P0
R7.1/P0
R-6.7/P0
R-0.3/P0
R-0.3/P0
R-6.3/
P0
R-6.3/
P0
1
2
4
5
6
3
R12.3/P0
R7.1/P0
R6.3/P0
R:REC MODE
P:PB MODE
XX
R107
XX
C101
V4
1
V3
2
V2
3
V1
4
VL
5
GND
6
CCD_OUT
7
VDD
8
DGND
9
SUB
10
CSUB
11
RG
12
H1
13
H2
14
16V
TA
XX
C109
3300
R103
1M
R105
16V
TA
22u
B
C102
0
R102
XX
IC102
123
45
LND101
GND
0.1u
C108
0
R101
10V
TA
33u
C106
B
XX
C110
XX
R104
XX
C107
XX
C103
XX
C104
2SC4178-F13F14-T1
Q101
0.1u
C105
XX
L101
R106
XX
100uH
L102
16P
CN101
1GND
2CCD_OUT
3GND
4CAM_12V
5A_4.75V
6VSHT
7CAM-6.5V
8GND
9RG
10H1
11H2
12GND
13V4
14V1
15V3
16V2
XX
C111
1
A
AD8005
IC101
CCD IMAGER
G
F
5482
05
E
6
B
CD-242 BOARD
3
C
7
D
CCD IMAGER
XX MARK:NO MOUNT
-REF.NO.:20,000 SERIES-
SIGNAL PATH
Y/CHROMA
VIDEO
SIGNAL
REC
BUFFER
VC-235 BOARD (1/16)
CN1501
(THROUGH THE
FP-161 FLEXIBLE)
(SEE PAGE 4-15)
(DCR-TRV320/TRV320P)
CD-266 BOARD
(DCR-TRV520/TRV520P/TRV525)
CD-270 BOARD
(DCR-TRV720)
IC101
ICX089AK-43
CD-244/267/271 BOARD
(SIDE A)
CD-244:1-676-774-
CD-267:1-676-760-
CD-271:1-676-767-
CD-244/267/271 BOARD
(SIDE B)
CD-244:1-676-774-
CD-267:1-676-760-
CD-271:1-676-767-

Table of Contents

Related product manuals