EasyManua.ls Logo

WAGNER VU 1 - VU 2 Dimensions

WAGNER VU 1
104 pages
Print Icon
To Next Page IconTo Next Page
To Next Page IconTo Next Page
To Previous Page IconTo Previous Page
To Previous Page IconTo Previous Page
Loading...
23
VERSION 03/2020 ORDER NUMBER DOC2330732
VU 1/VU 2/VU 3
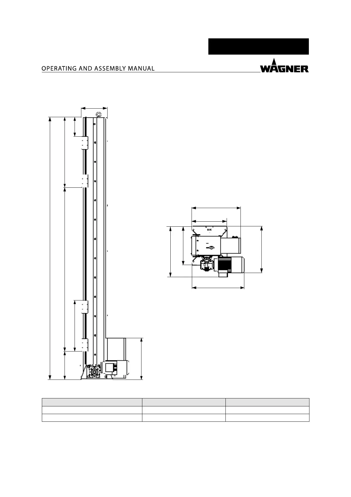
5.7.3 VU 2 DIMENSIONS
P_02850
A
307.5
B
770.5
288.5
456
390
468
350
491
517
512
560
210.5
Measurements in mm
Type VU 2–1800 VU 2–2400
Total/overall height A 2878 mm; 113.31 inch 3478 mm; 136.93 inch
Stroke/traveling distance B 1800 mm; 70.87 inch 2400 mm; 94.49 inch

Table of Contents

Related product manuals