EasyManua.ls Logo

ABB ACS355 series - Frame Size R4, IP20 (Cabinet Installation); UL Open

ABB ACS355 series
436 pages
Print Icon
To Next Page IconTo Next Page
To Next Page IconTo Next Page
To Previous Page IconTo Previous Page
To Previous Page IconTo Previous Page
Loading...
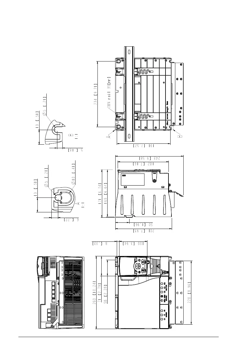
402 Dimension drawings
Frame size R4, IP20 (cabinet installation) / UL open
Frame size R4, IP20 (cabinet installation) / UL open
3AUA0000067836-A
1)
Extension modules add 26 mm (1.02 in) to the depth measure.
1)

Table of Contents

Other manuals for ABB ACS355 series

Related product manuals