EasyManua.ls Logo

Avid Technology MV3000 DELTA - Position of Control Components

Avid Technology MV3000 DELTA
188 pages
Print Icon
To Next Page IconTo Next Page
To Next Page IconTo Next Page
To Previous Page IconTo Previous Page
To Previous Page IconTo Previous Page
Loading...
Drive (CDM) Design T1689 Technical Manual Rev 07
InItial CDM ARRANGEMENT MV3000 Air Cooled DELTA
Page 88
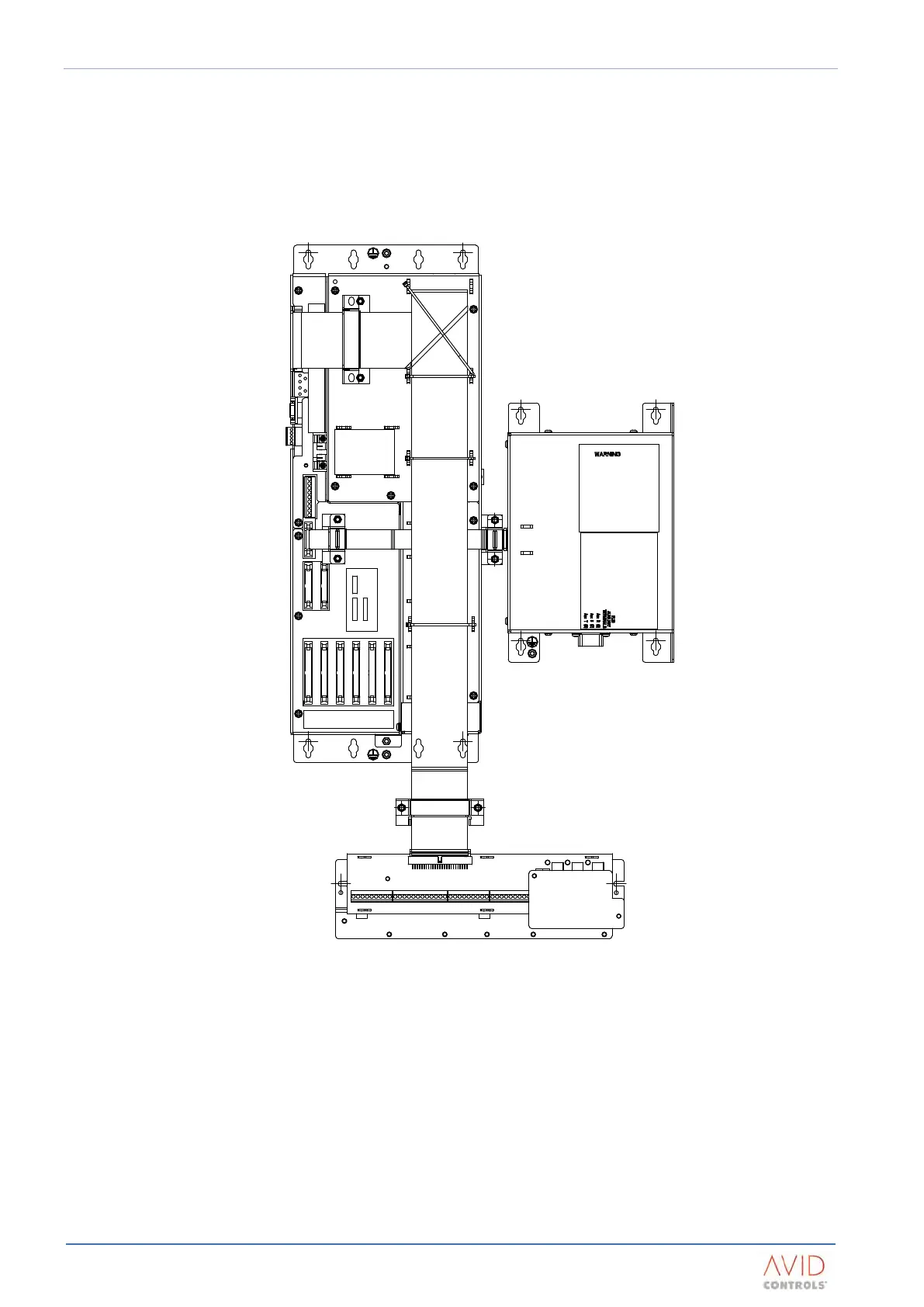
3.6.8 Position Of Control Components
The control assembly must comply with the requirements for electrical bonding given in Section 3.3.2.1:
Bonding. It is also recommended that the components are arranged as shown in Figure 3–5. This will give
good electrical noise immunity and ensure that the ribbon interconnection cables supplied will be of sufficient
length. A dimensioned version of this drawing is included in in Appendix A: Dimensioned Mechanical Drawings.
The controller should be positioned towards the front of the enclosure to aid access.
Figure 3–5. Control Component Arrangement
The following should be observed when locating the control components:
Allow 50 mm (2 in) ventilation space above and below the controller;
The status LEDs on the controller and I/O panel should be visible;
Allow access to the plugs, sockets and terminals on the control components;
Allow sufficient space around the components for the routing and retention of all associated
cables;
The interconnection ribbon cables available with these units have limited lengths see Section
3.6.8.1: Control Cabling Requirements.

Table of Contents

Related product manuals