EasyManua.ls Logo

Avid Technology MV3000 DELTA - DC Link Inductors

Avid Technology MV3000 DELTA
188 pages
Print Icon
To Next Page IconTo Next Page
To Next Page IconTo Next Page
To Previous Page IconTo Previous Page
To Previous Page IconTo Previous Page
Loading...
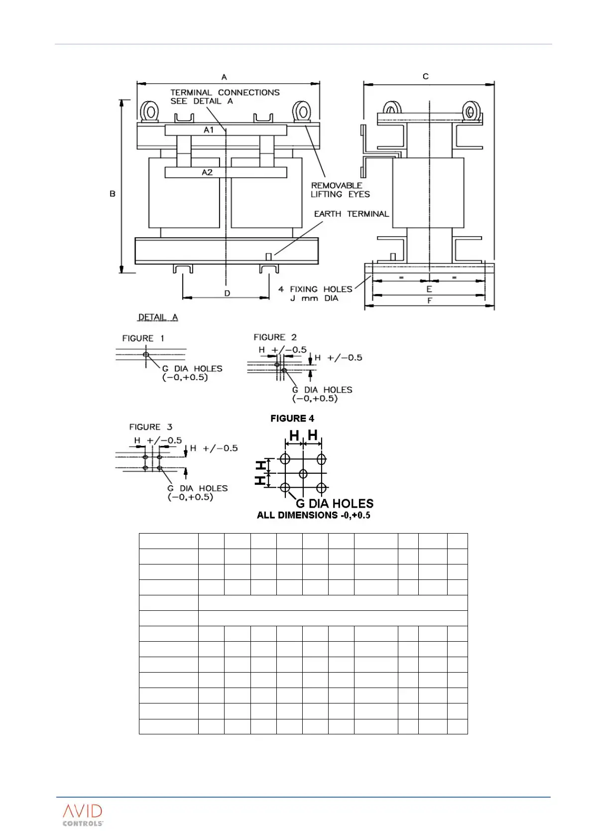
T1689 Technical Manual Rev 07 Appendix A: Dimensioned Mechanical Drawings
MV3000 Air Cooled DELTA Reactors, Inductors & Transformers
Page 167
10.6.2 DC Link Inductors
Order No.
A
B
C
D
E
F
Detail A
G
H
J
33Z0329/10
320
500
350
160
280
330
Fig 2
12
25
11
33Z0331/10
325
465
390
160
300
355
Fig 3
12
40
11
50Z0019/01
365
610
365
180
280
335
Fig 3
14
50
11
50Z0055/04
Details Upon Request
50Z0055/05
Details Upon Request
50Z0050/07
X
50Z0038/01
325
465
245
160
280
335
Fig 1
11
N/A
11
50Z0038/02
325
470
395
160
320
375
Fig 2
14
33
11
50Z0038/03
365
610
385
180
300
355
Fig 3
14
50
11
50Z0057/01
400
700
300
200
290
340
Fig 4
12
40
13
50Z0057/02
400
700
330
200
330
385
Fig 4
14
37.5
13
50Z0057/03
430
725
433
220
330
385
Fig 4
14
37.5
13

Table of Contents

Related product manuals