EasyManua.ls Logo

Beaver Contessa - Toilet; Operating Instructions

Beaver Contessa
266 pages
Print Icon
To Next Page IconTo Next Page
To Next Page IconTo Next Page
To Previous Page IconTo Previous Page
To Previous Page IconTo Previous Page
Loading...
WATER SYSTEMS — 6
138
20 08 CONTESSA
Turn on the pump using
the Sani-Con power
switch located in the
service center.
When the black tank is
empty, turn off the pump
and leave the black tank
valve open.
WARNING:
Never leave the pump
unattended while in
use. DO NOT allow
the pump to run dry
for any period of time.
Damage to the pump
impeller will result.
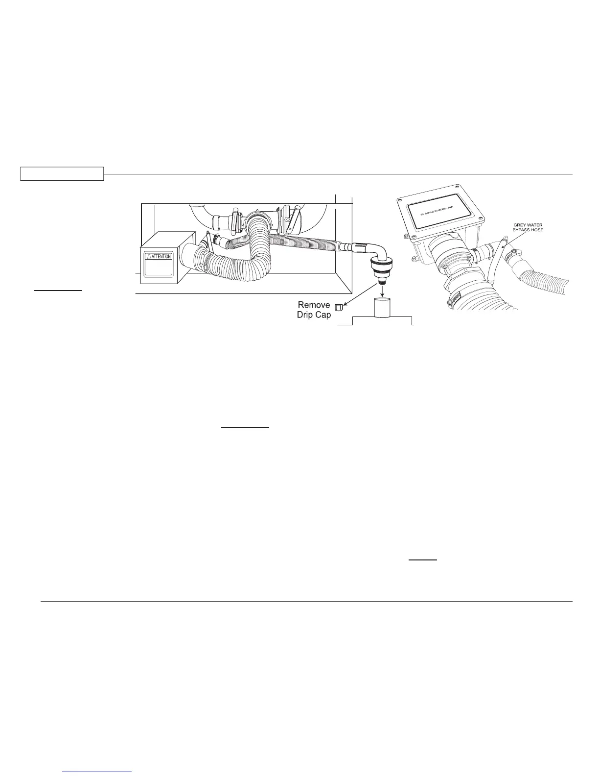
To Flush the Black Tank:
Insert the sewer pipe adapter in the
facility sewer connection.
Open the solid waste drain valve. Close
the liquid waste drain valve. Fill the grey
tank at least 50% full.
Connect a non-potable water hose with
pressure regulator to the ush system
tting in the plumbing service center.
Turn on the water supply and waste
pump. Allow the water to rinse the black
tank for at least three minutes. Never
operate the system unattended. The
water must ow freely through the waste
pump outlet hose.
When completed turn off the faucet.
Close the solid waste drain valve and
open the liquid waste drain valve. Turn
on the waste pump. The water in the
grey tank will ush the remaining solids
from the sewer hose. The liquid waste
drain valve remains open until the next
drain cycle or time of departure.
WARNING:
Operating the flush system unattended
can risk flooding. Use the tank flush
system each time the holding tanks are
cycled. Failure to routinely use the flush
system will result in a clogged spray
nozzle. Turn off the water supply when
finished flushing the tank.
Grey Water Bypass:
The grey water bypass system allows
continuous grey water ow. The liquid (grey)
waste uses gravity to drain from the tank and
bypasses the pump by going through the bypass
hose into the sewage service.
The bypass hose is the small hose connected
at the termination point of the dump valves and
“T-s” into the small exible hose on the outlet
side of the macerator pump.
Troubleshooting:
The chassis battery disconnect switch in the
battery compartment needs to be on for the
macerator pump to run.
TOILET
Operating Instructions
The toilet operates from either the fresh water
tank or city water supply. Turn on the water
pump, or connect to a city water source. The
toilet ushes directly into a sewage holding tank
(black water tank).
NOTE:
Add several gallons of water to the
holding tank before use to prevent
accumulation of solids.
040623b
Insert hose end into sewer connection.
040623b

Table of Contents