EasyManua.ls Logo

CONQUEST 90 - Page 101

CONQUEST 90
126 pages
Print Icon
To Next Page IconTo Next Page
To Next Page IconTo Next Page
To Previous Page IconTo Previous Page
To Previous Page IconTo Previous Page
Loading...
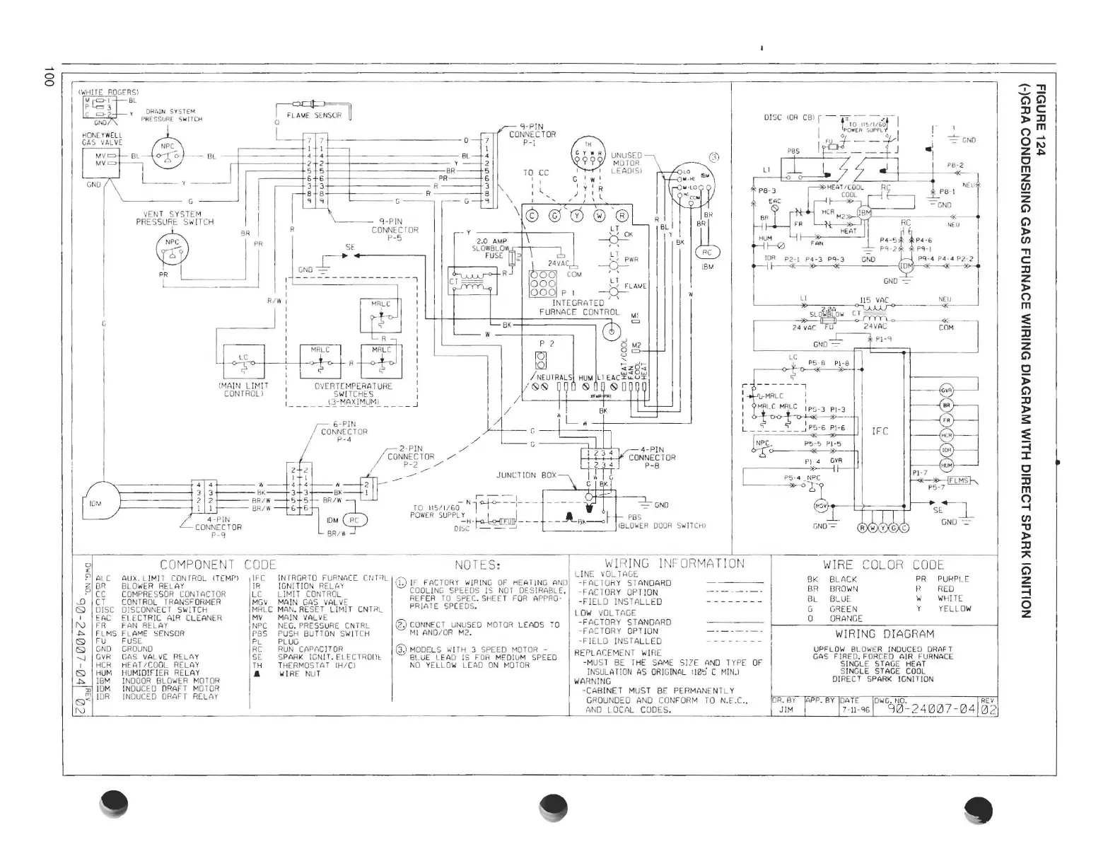
DRAIN SYSTEM
PAESSUAE SWITCH
I
G I
VENT SYSTEM I
PRESSURE SIIITCH
'----G
9-PIN
W :
UNUSEO
MOTOR
LEAO(Sl
R
l
2.0 AMP
SLOWBLO
FUSE
®
?4VAC
LT
~
p
INTEGRATED
FURNACE
BK---1------~
/'------<--1---_J...-'------"-WU
I
I _I_ - -
BR/S~ N7<Lj--o---,---
IDM
~
BRti\ - ..::.J '-----------'
0
0
~
9-PIN
CONNECTOR
P-l
rqCC C I
I l.. I y I
\ ) )
~
\ © @fG) 0
CONNECTOR
~
P-5
Bl
SE
GND i___. -------
~
I ----------------7
COM
LT
GND-=-
I
l ---o---£.LA!JE
R/W
I
I
ll 115 VAC NE~
ffi!1:t+EEJ
CONTROL
____
SL
3iHf:ow
CT~
tMAIN LIMIT
: OVER TEMPERATURE
CONTROU
1 SWITCHES
1_ ____ 13-MAXIMUMl ___ _
6-PIN
CONNECTOR
P-·1 _,/
2-PIN /
NNECTOR /
P-2
_,,,
/
.
----
s,
,--1
TO ll5/i/60-
f~C
POW[A SUPPL_Y
H.:
Dl)C -
0
,:
!"
ALC
z OR
p cc
...0 CT
(SJ
OISC
I
EAC
N FR
.t,.
FLMS
tSI
FU
COMPONENT
CODE
AUX. LIMIT CON fROL tT[MPl JFC
IN fRGRTO FURN,~([
CNTqL
BLOWER RELAY
JR
IGNITION RELAY
COMPRESSOR CONTACTOR
LC
LIM! T CONTROL
CONTROL TRANSFORMER
MGV MAIN GAS VALVE
O\SCONNECT SWITCH
MRLC MAN. RESET LIMIT CNTilL
ELECTRIC AIR CLEANER
MV MAIN VALVE
FAN RELAY
NPC NEG.PRESSURE CNTRL
FLAME SENSOR
PBS
PUSH BUTTON SWITCH
FUSE
PL
PLUG
NOTES:
<DIF FACTORY \/IRING OF HEAT\l<G AND
COOLING SPEEDS JS NOT DESIRABLE,
REFER TO SPEC.SHEET FOR APPRO·
PRIATE SP[EOS.
{bl CONNECT UNUSED MOTOR LEAOS ~O
Mi ANO/OR M2.
WIRING I NF OR MAT I ON
LINE VOU AGE
-FACiORY STANDARD
-FACTORY OPT ION
-FJELD INSTALLED
--------
LOW VOLTAGE
-FACTORY STANDARD
-FACTORY OPTJON
--------
-FIELD INSTALLED
--------
BK
BR
BL
G
0
WIRE COLOR
CODE
BLACK
PR
PURPLE
[lROWN
fl RED
BLUE
'•
WHITE
GREEN
y
YELLOW
ORANGE
WIRING DIAGRAM
CS)
--.J
I
tSI
.t,.
GNO
GVR
HCR
HUM
IBM
GROUND
GAS VALVE RELAY
HEAT/COOL RELAY
HUMIDIFIER RELAY
INDOOR BLOWER MOTOR
RC
SE
TH
RUN CAPACITOR
SPARK IGN\ T. ELECTRDlle
THERMOSTAT (H/CI
WIRE NUT
3 0 0
® ~EBfLCEi6 T7s FgtE~~oru ~ ;PEED
NO YELLOII LEAD ON MOTOR
REPLACEMENT WIRE
-MUSl
BE THE SAME SIZE AND TYPE
INSULATION AS ORIGINAL 110o' C MIN.I
WARNING
OF
UPFLOW BLOWER INDUCED DRAFT
GAS FIRED. FORCED AIR FURNACE
SINGLE STAGE HEAT
SINGLE STAGE COOL
DIRECT SPARK IGNITION
"'
JDM
""
\OR
CSl"'
N
INDUCED
INDUCED
DRAFT
DRAFT
MOTOR
RELAY
-CABINET MUST BE PERMANENTLY
GROUNDED ANO CONFORM TO N.E .C.,
ANO LOCAL CODES.
DATE
7-11-96
owe.NO.
90-24007-04
REV
02
--;-- 'Tl
G) i5
:IJ C
)> :IJ
(") m
0 ...
z~
0
m
z
~
z
G)
G)
)>
en
'Tl
C
:IJ
z
)>
(")
m
~
:IJ
z
G)
0
;
G)
:IJ
)>
3:
==
::j
:I:
0
:i5
m
(")
--t
en
"tJ
.J>
::0
"
i5
z
::j
0
z
24~2~~~C~M
LC
Pl-9
GNO-=

Table of Contents