EasyManua.ls Logo

CONQUEST 90 - Right Side

CONQUEST 90
126 pages
Print Icon
To Next Page IconTo Next Page
To Next Page IconTo Next Page
To Previous Page IconTo Previous Page
To Previous Page IconTo Previous Page
Loading...
___
2319/32"
[599mm)
34
f864mm)
2931."
[756mm)
25½"
[648mm)
I
VENT OUTLET
COM8USTION
AIR INLET
~ur~
2" [51 mm] DIA. KNOCKOUT
ALT. GAS CONNECTION
-
273
1
132"..-----++--
1611/32[415] 155/s [397]
2 (51)
1611/32(415] 155/s (397]
2 [51)
161
1
/32 (415] 155/s (397] 2 (51]
1927/32[504]
191/s [487)
2 [51)
1927132[5041 191/s [487] 2 (51]
1927/32[504) 191/s [487] 2 {51]
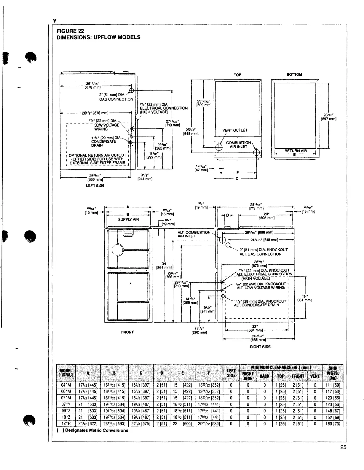
] Designates Metric Conversions
[710 mm)
143/o"
[365mm)
9½"
1241mm
15 (422]
1325/32[352)
15
[422)
1325/32[352)
15 [422]
1325/32[352)
18½ [511]
179/32 (441]
18½ (511]
179/32 [441]
181/2 [511] 179/32 [441]
----(584
0
0
0
0
0
0
0 0 0
0 0 0
0 0 0
0
0
0
1 [25)
1 [25]
1 (25]
1 (25)
1 [25]
1 [25]
2 [51
I
2 [51)
2 [51]
2 [51]
2 [51]
2 (51]
0
0
0
0
0
0
23,
[597
-
111 [50]
117 [53)
123 [56)
123 [56]
148 [671
152 [69]
y
"
FIGURE 22
DIMENSIONS: UPFLOW MODELS
TOP
BOTTOM
2611/,eu
----!678mmJ ____ _
ttt-11-----~
2" [51 mm] DIA.
GAS CONNECTION
7
/a• 122mm) DIA.
ELECTRICAL CONNECTION
2501
8
[676 mm) ~HIGH VOLTAGE) I
lz"
mm)
- -'~"J2!'~1.El'~;:>,..-. 273'/,z"
LOWvULTAGE , 1 [710 mml
WIRING -----,-
1'/e" [29 mm! DIA.
CONOENSATE
DRAIN
14•/e"
[365mm]
' I
11½"
1 OPTIONALRETURN AIRCUTOUT 1
[292mm)
1
(EITHER SIDE) FORUSE WITH 1
L EXTERNAL SIPE ALTER FRAME J
,_.. ___ 263/w" ____ ._
9½"
{665mm)
[241 mm]
LEFT SIDE
265/e"
{676mm)
'la" 122 mm! DIA. KNOCKOUT
ALT. ELECTR CAL CONNECTION
- (Hit.fl17bC!'AGE) - - j
7/a" [22 mm)DIA. KNOCKOUT I
ALT. LOW VOLTAGE
WIRING 1
I
15"
[381 mm)
1
1
le" 129mmlDIA. KNOCKOUT
1
ALT. CONDENSATE DRAIN '
I
23"
11¼"
FRONT (292mm)
mm)
263/1•"
-----(665 mm}
RIGHT SIDE
04•M
17112(445]
o6·M
17½ [445]
07*M
171/2 (445]
07•y
21
{533)
09'2
21
[533]
10'2
21
[533]
12'R
24½ [622]
2311/32[593) 225/s [575]
2 [51] 22
[600]
2025/32[5301 0 1 (25]
0 0 2 [51) 0
160 [731
25

Table of Contents