EasyManua.ls Logo

CONQUEST 90 - Wiring Diagrams

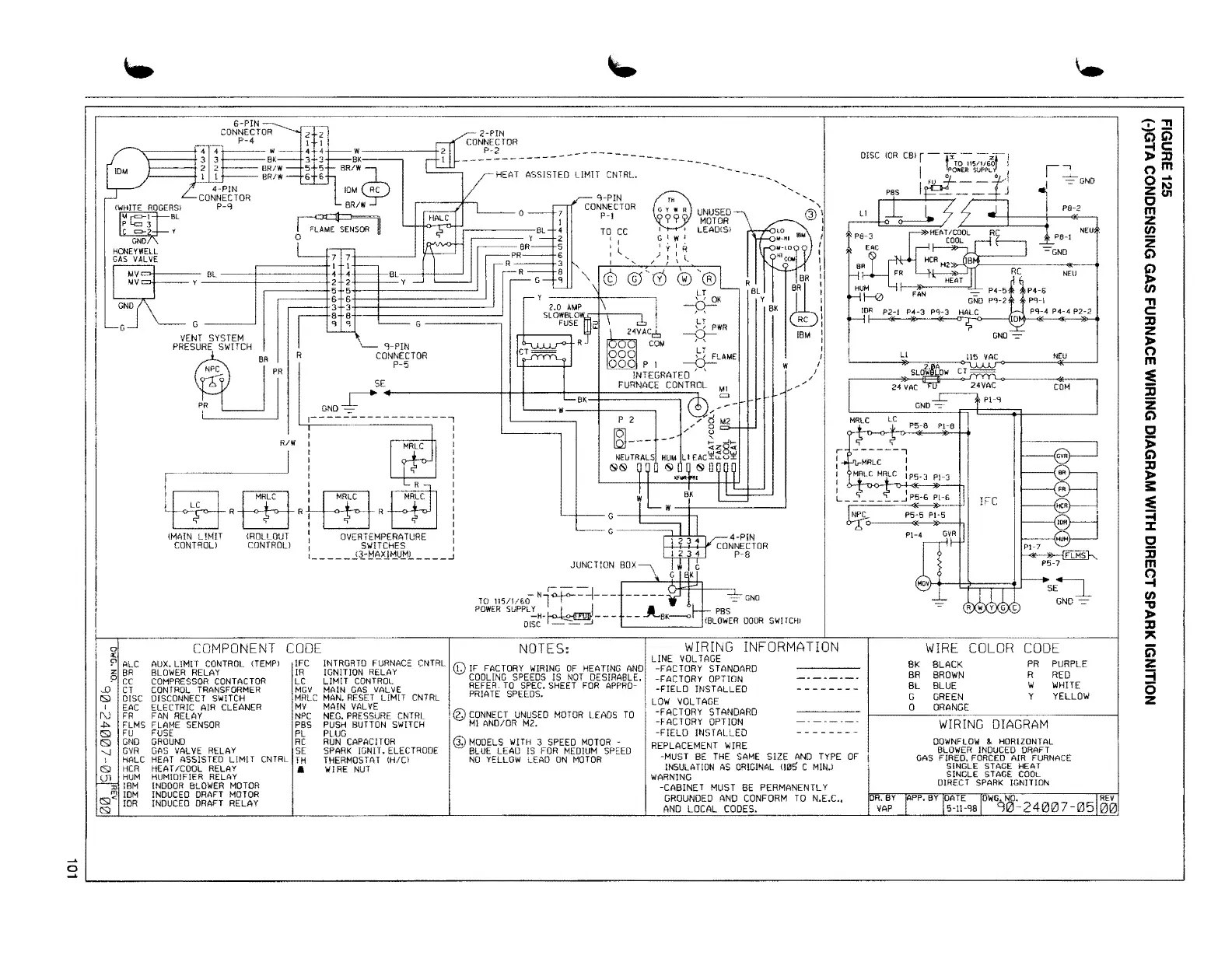
CONQUEST 90
126 pages
Print Icon
To Next Page IconTo Next Page
To Next Page IconTo Next Page
To Previous Page IconTo Previous Page
To Previous Page IconTo Previous Page
Loading...
2-PJN
CONNECTOR
P-2
HEAT ASSISTED LIMIT CNTRL.
'l-PIN
CONNECTOR
'
P-1
@'i
I
l
TO CC
I
I
I
I I
:''
I
' '
I
R
BL
y
fr \
BK
@:
G
T
IBM :
I
VENT SYSTEM
PRES~ITCH
I
I
l81---
G--+------1----,
G-------,
w
I
/
SE
COM
--✓
£LJ]
GN
r
,-- --- - --- - - ----- -7
I
I I
R/W I I
I I
I I
I I
I I
L@RtBR4±JREE]i
(MAIN L!MJT iROLLOUT OVERSi"~IMTPCEHREASTUAE: :
CONT!'lOLI CONTROU
:_____ (3-MAXIMUMJ____ j
0 WIRI~G INFORMATION
WIRE
COLOR
CODECOMPONENT CODE
NOTES:
LINE VOLTAGE
"'
IFC
INTRGRTO FURNACE
P ALC AUX. LIMIT CONTROL !TEMPI
BK BLACK
PR PURPLE
CNTRL
CDIF FACTORY WIRING OF HEATING AND
-FACTORY STANDARD
BLOWERRELAY IR IGNITION RELAY
BR BROWN
R RED
CODLING
SPEEDS IS NOT DESIRABLE.
-FACTORY OPTION
LC
LIMIT CONTROL
~
~~
COMPRESSOR CONTACTOR
REFER. TO SPEC. SHEET FOR APPRO-
BL BLUE
w WHITE
-FIELD INSTALLED - - - - - - - -
MGV
MAIN GAS VALVE,_l) CT
CONTROL TRANSFORMER
PRIATE SPEEcDS.
G GREEN
y
YELLOW
MRLC
MAN, RESET LIMIT CNTRL
ISl DISC
DISCONNECT SWITCH
LOW VOLTAGE
MY
MAIN VALVE
I EAC ELECTRIC AIR CLEANER 0 ORANGE
-FACTORY STANDARD
(V CONNECT UNUSED MOTOR LEADS TO
-I>.
FLMS FLAME SENSOR
N FR FAN RELAY NPC NEG.PRESSURE CNTRL
-FACTORY OPTION
Ml
AND/OR M2.
PBS
PUSH BUTTON SWITCH
WIRING
DIAGRAM
-FIELD INSTALLED
ISi
GND
GROUND
ISi FU
FUSE
PL PLUG
OOWNFLOW& HORIZONTAL
RC RUN CAPACITOR
@ MODELS WITH 3 SPEED MOTOR
REPLACEMENT WIRE
BLOWERINDUCEDDRAFT
t liALC
HEAT ASSISTED LIMIT CNTRL
TH
THERMOSTAT (H/Cl
SE
SPARK
JGNIT. ELECTRODE
'.J GVR
GAS VALVE RELAY BLUE LEAD IS FOR MEDIUMSPEED
-MUST BE THE SAME SIZE AND TYPE OF
GAS FIRED, FORCEDAIR FURNACE
l'.Sl HCA HEAT/COOL RELAY
NO YELLOW
LEADON MOTOR
SINGLE STAGE HEAT
INSUUHION AS OR!Gl.. AL <!05' C MIN.l
a
WIRE NUT
SINGLE STAGE COOL
:o IBM
INDOOR BLOWER MOTOR
01 HUM
HUMIDIFIER RELAY
WARNJNG
DIRECT SPARK JGNJTJO,-.
-CABINET MUST BE PERMANENTLY
INDUCED DRAFT MOTOR
R.BY
PP. BY OATE OWGljp. REV
GROUNDED AND CONFORM TO N.E.C.,
(SJ~
~g~
INDUCED DRAFT RELAY
VAP 5-1!-98
'ik:J-24007-05 00
AND LOCAL CODES.
ISi
--:-- "Tl
c,'5
-IC:
J>::D
(') m
0 ....
zN
Cu,
m
z
(/)
z
C)
C)
J>
(/)
~
::D
z
,.
0
m
~
;;
z
C)
C
C)
::D
J>
ii:
~
~
2
::u
m
0
-I
(/)
.,,
,.
::D
,-;:
i5
z
=i
0
z
I
I
I
I
Ll
P5-8 Pl-8
I I
___ .J P5·6 Pl-6
NPC
~--·-··
!FC
)--------+,
.....
.....
0

Table of Contents