EasyManua.ls Logo

Daikin Super Multi Plus E-Series - Air Flow Selection

Daikin Super Multi Plus E-Series
456 pages
Print Icon
To Next Page IconTo Next Page
To Next Page IconTo Next Page
To Previous Page IconTo Previous Page
To Previous Page IconTo Previous Page
Loading...
SiEN18-622 Instruction
System Configuration 217
During Dry mode, so that cold air does not come into direct contact with people, air is blown upper air outlet.
When setting the air outlet selection switch to
Regardless of the operating mode or situation, air blows from the upper air outlet.
Use this switch when you do not want air coming out of the lower air outlet. (While sleeping etc..)
CAUTION
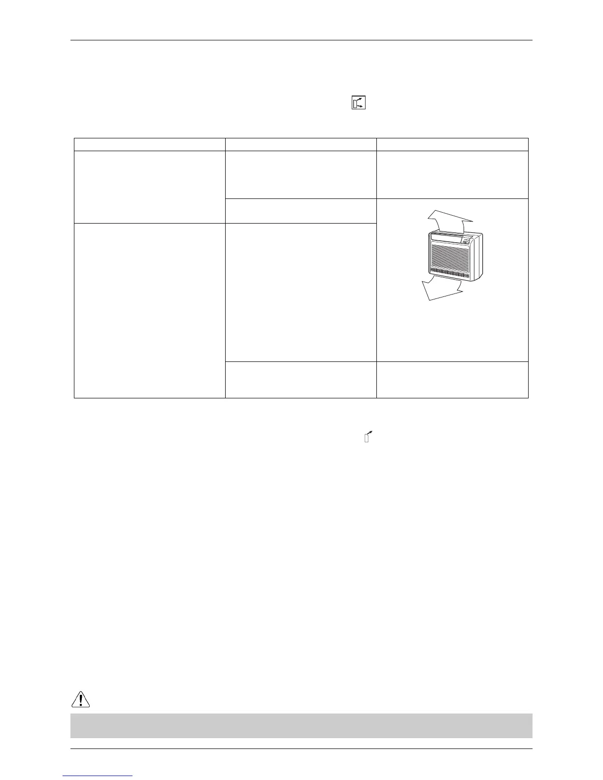
Air flow selection
Make air flow selection according to what suits you.
When setting the air flow selection switch to
Air conditioner automatically decides the appropriate blowing pattern depending on the operating
mode/situation.
Do not try to adjust the flap by hand.
When adjusting by hand, the mechanism may not operate properly or condensation may drip from air outlets.
Operating mode Situation Blowing pattern
COOL mode
When the room has become fully
cool, or when one hour has passed
since turning on the air conditioner.
So that air does not come into direct
contact with people, air is blown
upper air outlet, room temperature is
equilised.
At start of operation or other times
when the room is not fully cooled.
Air is blown from the upper and
lower air outlets for high speed
cooling during COOL mode, and for
filling the room with warm air during
HEAT mode.
HEAT mode
At times other than below.
(Normal time.)
At start or when air temperature is
low.
So that air does not come into direct
contact with people. Air is blown
upper air outlet.

Table of Contents

Related product manuals