EasyManua.ls Logo

Daikin Super Multi Plus E-Series - Wiring Diagrams; Outdoor Units

Daikin Super Multi Plus E-Series
456 pages
Print Icon
To Next Page IconTo Next Page
To Next Page IconTo Next Page
To Previous Page IconTo Previous Page
To Previous Page IconTo Previous Page
Loading...
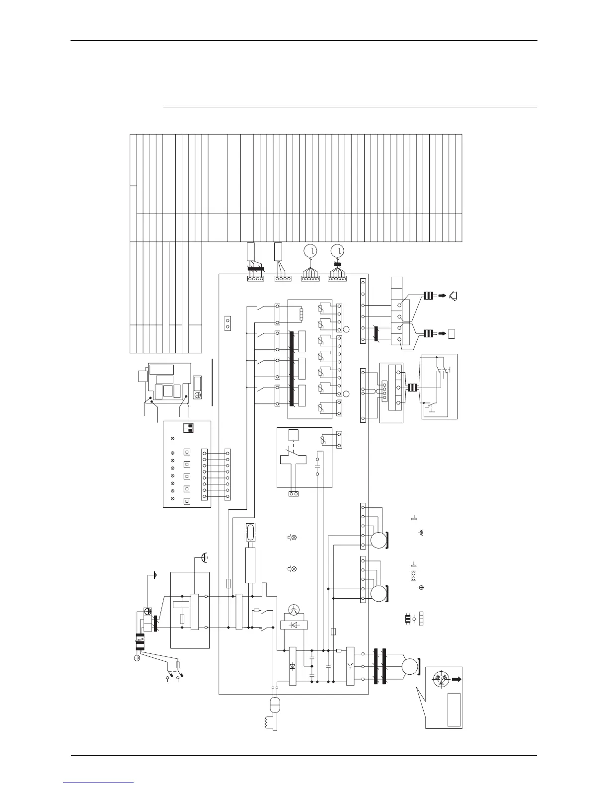
Wiring Diagrams SiEN18-622
422 Appendix
2. Wiring Diagrams
2.1 Outdoor Units
RMKS112/140/160EV1A, RMKS112/140/160EVM
A3P
A4P
C4
X2M
A2P
L1R
X1M
Air control
R1
HBP
(Front)
El,Compo,Box
HAP
A1P
(Back)
V3R
L
V1T
X37A
N
Heat
S2S
S1NPL
BP unit
(F1)(F2)
FAN
Y1S
X107A
C4
X1M
X1M
A3P
C/H Selector
E
S1PH
LD
C
F2
MS
3~
H6P
C2
W
WHT
E1HC
R2
1
X12A
Note)8
BS5
V2R
RED
NC
LB
U
LC
X5A
N=1
V
R1T
Power supply
V1A
VM
Z3F
12
N
BS1
N=6
H3P
YLW
OFF
-
V
BS4
DS1
X2A
K1M
-
A2P
Cool
R2T
HAP
+
+
BS2
C1
Outdoor
(F1)(F2)
GRN/YLW
V1R
K2R
ORG
H5P
BRN
BLU
R6T
Y3S
+
H1P
PS
The position of
compressor
terminal
X28A
H2P
Y1E
F4U
MS
3~
L1R
WHT
The entrance
of wire
X37A
NOTE)4
Z5C
N=4
X27A
6
P<
NA
RED
A
Cool/heat selector
X22A
F1
BLU
Z7C
N=1
X2M
BS3
X17A
LE
S1S
X18A
To BP unit
M1F
1
X13A
X26A
HBP
ON
Z6C
F1
Y2S
K3R
A4P
A1P
To OUT/D UNIT
Note)9
X106A
H4P
U
BLU
MS
3~
R7T
Z4F
X32A
F6U
t°
X25A
X1A
F1U
ORG
Z1C
NB
WHT
FIN
TH
+
Z3C
N=1
K1R
Y3E
W
+
Z
2
F
X111A
BLU
N=1
H7P
F2
K5R
Z2C
LA
C3
B
6
-
M
S1NPH
X21A
M
GRY
RED
M1C
P
M2F
H8P
+
X66A
RED
N
GRN
Z1F
Z4C
N=1
K4R
L
X81A
X205A
R4T
+
R5T
X11A
R3T
2. : Field wiring.
5. Refer to “operation caution label ”(On back of front plate)
how to use BS1~BS5 and DS1 · 2 switch.
Notes) 1. This wiring diagram is applied only to the outdoor unit.
6. When operating, don’t short circuit for protection device.(S1PH)
8. Refer to the installation manual, for connection wiring to
BP-outdoor transmission F1 · F2.
9. When using the central control system, connect outdoor-outdoor transmission F1 · F2.
3. : Terminal strip
: Terminal
4. When using the option adaptor, refer to the installation manual.
7. Colors BLU: Blue - BRN: Brown - GRN: Green - RED: Red - WHT: White - YLW: Yellow - ORG: Orange
R2T
Solenoid valve (4 Way valve)
R3T
Diode module
Selector switch (Fan/cool · Heat)
S2S
Power module
Pilot lamp (Service monitor-orange)
R7T
Y1S
X2M
R6T
Terminal strip (Control)
K2R
Y2S
Thermistor
(M1C Discharge)
Magnetic relay (Y2S)
Y3S
R2
E1HC
rinted circuit board
(C/H Selector)
C1~4
Magnetic relay
Thermistor (Fin)
Y1E
S1NPH
L1R
HAP
Magnetic contactor
Magnetic relay (Y1S)
Noise filter
V1R
S
olenoid valve
(U/L Circuit)
Z1C~7C
Motor (Fan) (Lower)
S1S
BS1~5
N-BLUL-RED
FINTH
K5R
Pressure switch (High)
R1 Resistor
Selector switch (Cool/Heat)
Dip switch
Push button switch
(Mode, Set, Return, Test, Reset)
X1M
V1T
Motor (Compressor)
HBP
Thermistor (Liquid)
Thermistor (Subcool)
P
rinted circuit board
(Noise filter)
Thermistor (Coil)
Magnetic relay (Y3S)
Power supply
Solenoid valve
(Hot gas)
Pressure sensor (High)
Thermistor (Suction1)
Electronic expansion valve (Main)
R5T
Noise filter (Ferrite core)
Pressure sensor (Low)
Reactor
K3R
X1M
F1U,F4U
Inv. pilot lamp
(service monitor green)(A1P)
F6U
Capacitor
Thermistor (air)
R4T
Motor (Fan) (Upper)
DS1
Thermistor (Suction2)
[H2P]Prepare,Test ------ Flickering
Malfunction detection - Light up
A1P
K1R
C/H selector
Magnetic relay (E1HC)
Crankcase heater
H1P~8P
P
rinted circuit board
(Service))
Y3E
M1F
Connector of option adaptor
PS
Z1F~4F
Operation pilot lamp
(Service monitor - green)(A1P)
V2R, V3R
Terminal strip (Power supply)
A2P
A3P
A4P
Electronic expansion valve
(Sub cool)
Fuse (T 6.3A/250V)
Connector
(Option adapter power supply)
K4R
Resistor
R1T
S1NPL
M2F
M1C
X37A
Note)4
K1M
Terminal strip (C/H Selector) (A4P)
Fuse (T 5.0A/250V)
S1PH
IGBT
Printed circuit board (Main)
t° t° t° t° t° t° t°
:220-230V~50/60Hz
:220-240V~50Hz
3D051733C
: Movable connector
: Fixed connector
: Protective earth (Screw)
: Noiseless earth

Table of Contents

Related product manuals