EasyManua.ls Logo

Dion-Ag F41 - Page 165

Default Icon
176 pages
Print Icon
To Next Page IconTo Next Page
To Next Page IconTo Next Page
To Previous Page IconTo Previous Page
To Previous Page IconTo Previous Page
Loading...
165
F4123771W
WHITE-RED
DEFLECTOR
SPOUT
F41-23771W
EMERGENCY STOP
SENSOR
ROLLER
HEAD CUTTER
SENSOR
DEFLECTOR
MOTOR
F41-20883W
F41-21184
SENSOR
REVERSE
NEUTRAL
SENSOR
ANTENNA
SOLENOID
TRANSMISSION
MOTOR
DEFLECTOR
MOTOR
SENSOR TERMINAL POWER TERMINAL
F41-20880W
F41-20882W
F41-20880W
DETECTOR BOX
-
+
+
-
BLACK
WHITE BROWN
BROWN
WHITE-GREEN
GREEN
RED
GRAY
WHITE
DETECTOR CIRCUIT
MANUAL
CIRCUIT
GRAY
25 AMPS
BREAKER
ON/OFF SWITCH
RED
LIGHT
BUZZER
TRANSMISSION
DOUBLE TERMINAL
-
+
CONTROL BOX IN CAB
ON/OFF
SWITCH
25 AMPS
BREAKER
12 VOLT BATTERY
-
10
+
9
-
8
+
(OUT)
(IN)
BL-BRUN
BL-ORAN
BRUN
TRANSMISSION
CYLINDER
ORANGE
1176
-+
5
-
4
-
SOLENOID
BUZZER-
GRAY
VIOLET
BL-VIOLET
BLACK
3
-
2
+
1
+
BLACK
WHITE
WHITE
12 VOLTS SUPPLY
BROWN
-
14
BLUE
12
BROWN
++
13
BLACK
SENSOR
REVERSE
+
1511
-
10
BLUE
BLACK
+
98
-
BROWN
BLUE
+
76
BLACK
BROWN
++
5
-
4
BLUE
BLACK
+
SENSOR
CUTTING
SENSOR
SENSOR
NEUTRAL
3
--
GROUND
BLACK
1
WHITE
+
2
ANTENNA
ROLLER
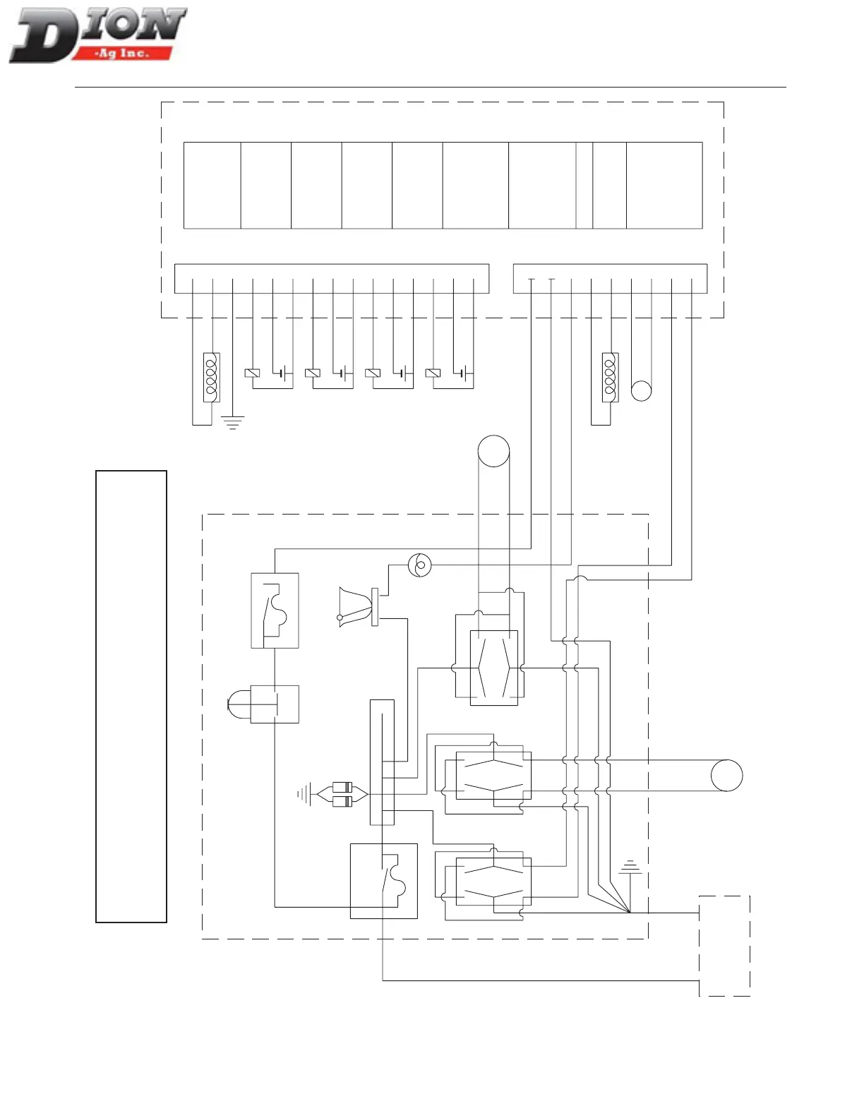
when wires are disconnected for repairs or for parts replacement, always
use this diagram in order to properly connnect the wires and always
turn off all swtiches on the control box.
Figure 268 Electrical & electronic diagram for F41 model
ADJUSTMENTS - MAINTENANCE
Manual No. F4117E987E V1.1

Table of Contents