EasyManua.ls Logo

Epson G20 Series - Wiring Diagrams; Signal Cable

Epson G20 Series
252 pages
Print Icon
To Next Page IconTo Next Page
To Next Page IconTo Next Page
To Previous Page IconTo Previous Page
To Previous Page IconTo Previous Page
Loading...
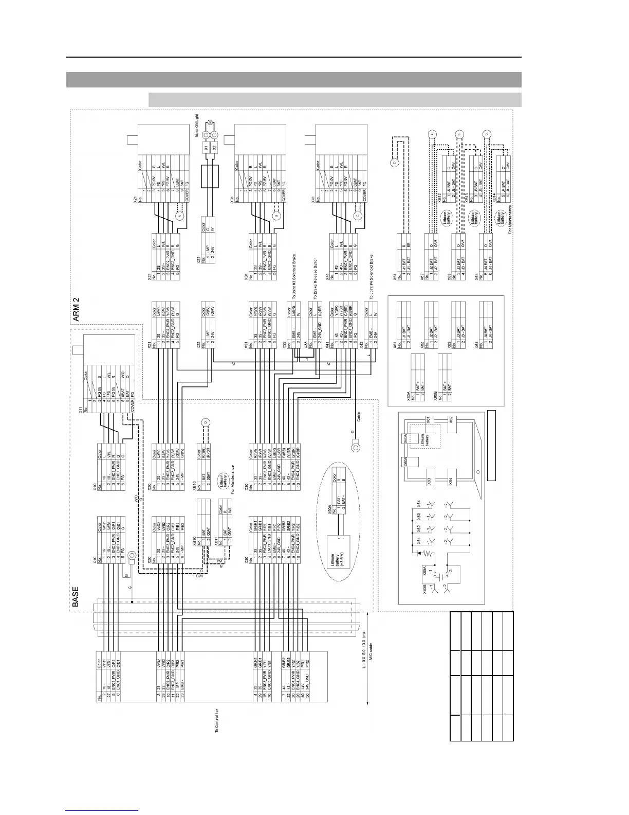
Maintenance 4. Cable
132 G10 / G20 Rev.20
4.2 Wiring Diagrams
4.2.1 Signal Cable
Cable color
Pink
Red
Violet
White
Yellow
Code
P
R
V
W
Y
Cable color
Black
Brown
Green
Blue
Orange
Code
B
BR
G
L
O
Mounting plate
Detail Board Diagram

Table of Contents

Related product manuals