EasyManua.ls Logo

Hisense AHS-080HCDSAA-23 - Calefacción; Enfriamiento Yacs; Elementos Hidráulicos Adicionales Necesarios; Elementos para ACS; Elementos para Calefacción;Enfriamiento de Espacios

Hisense AHS-080HCDSAA-23
448 pages
Print Icon
To Next Page IconTo Next Page
To Next Page IconTo Next Page
To Previous Page IconTo Previous Page
To Previous Page IconTo Previous Page
Loading...
9 CALEFACCIÓN/ ENFRIAMIENTO Y
ACS
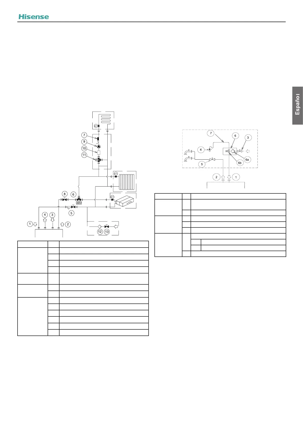
9.1 ELEMENTOS HIDRÁULICOS
ADICIONALES NECESARIOS
! PELIGRO
Antes de conectar la unidad a la fuente de alimentación llene de agua
el circuito de calefacción, compruebe la presión de agua y la ausencia
total de fugas.
9.1.1 Elementos para calefacción/enfriamiento de
espacios
Suelo
radiante
Radiador
Fan Coil
enfriamiento
Unidad
Tipo N.º Nombre del componente
Conexiones
de tuberías
1 Entrada de agua para enfriamiento/calefacción
2 Salida de agua para enfriamiento/calefacción
3 Entrada ACS (agua fría)
4 Salida ACS (agua caliente)
Suministrado
de fábrica
5 Válvula de cierre con ltro
Accesorios
opcionales
6 Válvula de 3 vías enfriamiento
7 Termistor (para calefacción)
Suministrado
por el
instalador
8 Válvula de cierre
9 Bomba de agua
10 Filtro
11 Válvula mezcladora
12 Válvula de retención
13 Válvula de cierre
Para que el circuito de agua de la instalación de calefacción/
enfriamiento sea correcto son necesarios los siguientes
elementos hidráulicos:
La válvula de cierre suministrada por el instalador (8) se debe
instalar en la salida de agua de la unidad, y la válvula de cierre
con ltro (5) en posición horizontal en la entrada de agua.
Al llenar el circuito de agua debe conectarse una válvula de
retención de agua (12) con una de cierre (13). La válvula de
retención actúa como dispositivo de seguridad para proteger
la instalación.
La válvula de 3 vías (6) se debe conectar en un punto de la
tubería de salida de agua de la instalación, utilizada para
desviar la circulación del agua para funciones especícas.
El termistor de calefacción (7) se debe instalar en el tubo
metálico cerca de la calefacción y mantener un buen
contacto con él.
Se recomienda utilizar la válvula mezcladora (11)
ESBE ARA661, cuyo modo de funcionamiento sea de
3 vías SPDT. Si se utilizan válvulas mezcladoras de otras
marcas o modelos, deben ser de 3 vías SPDT y la fuente de
alimentación debe ser 220-240 V ~ 50 Hz. El momento de
rotación se puede congurar en el controlador principal.
9.1.2 Elementos para ACS
Para que el circuito de agua de la instalación de ACS sea
correcto son necesarios los siguientes elementos hidráulicos:
(1) Elementos requeridos para el circuito de agua caliente sanitaria
Depósito de ACS
Tipo N.º Nombre del componente
Conexiones
de tuberías
1
Entrada de agua complementaria del depósito de
ACS
2 Salida del depósito de ACS
Suministrado
por el
instalador
3 Válvula de cierre
4 Drenaje
5 Válvula de cierre
Suministrado
por el
instalador
6
Válvula de alivio de presión
6a Válvula de retención
6b Válvula de alivio de presión
7 Tubería de desagüe
Una válvula de cierre (suministrada por el instalador):
La válvula de cierre (5) se debe conectar después de la
salida (2) del depósito de ACS para facilitar las tareas de
mantenimiento.
Una válvula de alivio de presión (suministrada de fábrica):
El depósito de agua caliente sanitaria se debe alimentar
con agua fría que pase a través de una válvula de alivio de
presión (6) calibrada a unos 7 bares (según la normativa
local). Accione la válvula de alivio de presión de acuerdo con
las especicaciones del fabricante. No debe haber ninguna
otra válvula entre la válvula de alivio de presión (6) y el
depósito. La válvula de alivio de presión (6) se debe instalar
lo más cerca posible de la entrada de ACS y conectarse a
una tubería de desagüe (7) que vaya hasta el alcantarillado.
Esta válvula de alivio de presión puede ofrecer lo siguiente:
- Protección de presión
- Función de no retorno
- Carga
- Drenaje
Compruebe la válvula de alivio de presión en la entrada de agua
fría.
La válvula de alivio de presión se debe accionar con regularidad
para eliminar los depósitos calcáreos y vericar que no está
bloqueada.
CALEFACCIÓN/ ENFRIAMIENTO Y ACS
15

Table of Contents

Related product manuals