EasyManua.ls Logo

Hisense AHS-080HCDSAA-23 - Elementi Idraulici Aggiuntivi Necessari; Elementi Per ACS; Elementi Per Riscaldamento;Raffreddamento Degli Ambienti; Riscaldamento;Raffreddamento E Acs

Hisense AHS-080HCDSAA-23
448 pages
Print Icon
To Next Page IconTo Next Page
To Next Page IconTo Next Page
To Previous Page IconTo Previous Page
To Previous Page IconTo Previous Page
Loading...
9 RISCALDAMENTO/
RAFFREDDAMENTO E ACS
9.1 ELEMENTI IDRAULICI
AGGIUNTIVI NECESSARI
! PERICOLO
Non collegare l'alimentazione all'unità prima di aver riempito d'acqua il
circuito del riscaldamento e di aver controllato la pressione dell'acqua
e l'assenza totale di perdite d'acqua.
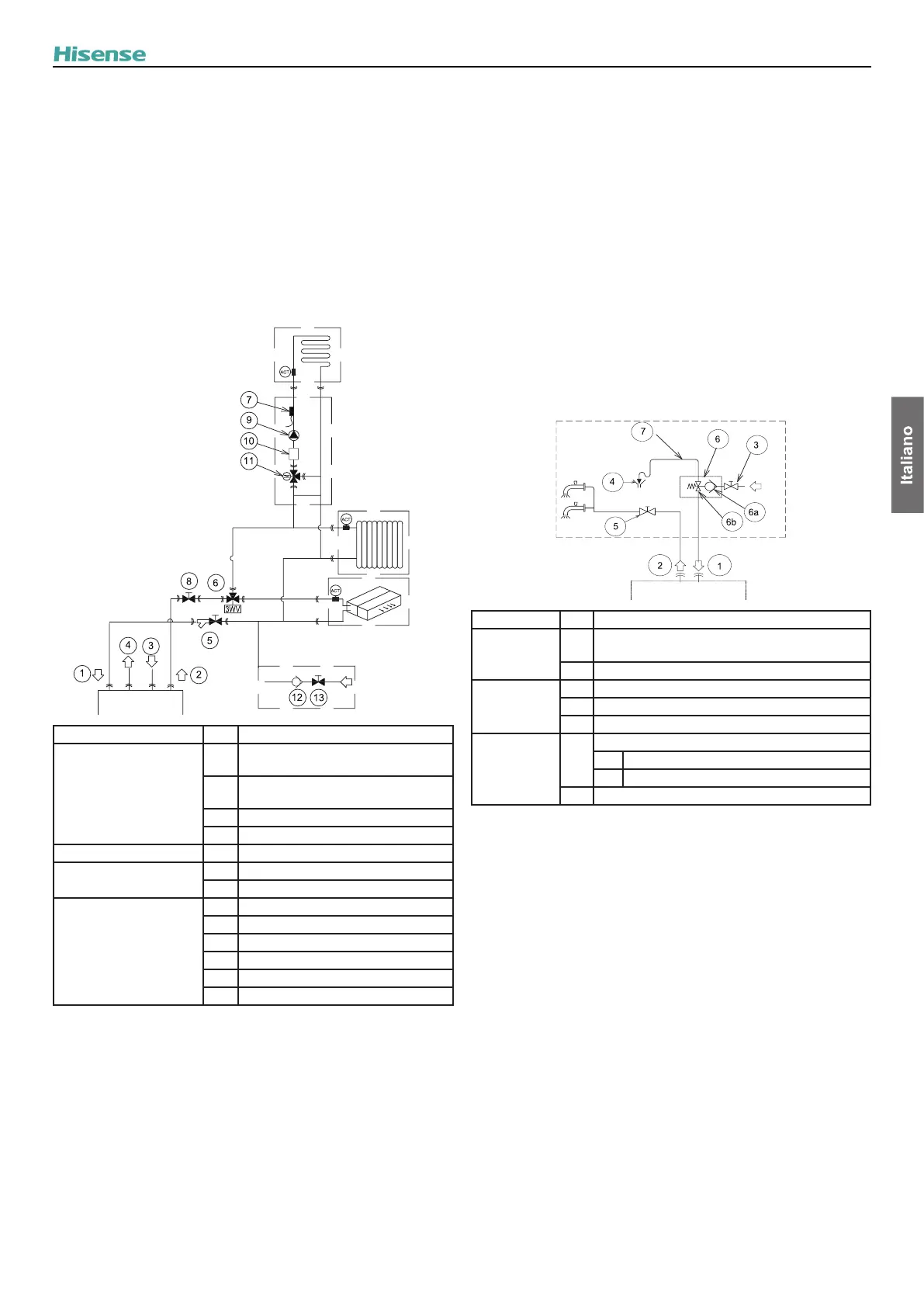
9.1.1 Elementi per riscaldamento/ra󰀨reddamento degli
ambienti
Pavimento
radiante
Radiatore
Fan coil di
ra󰀨reddamento
Unità
Tipo Nome del componente
Collegamento dei tubi
1
Ingresso dell'acqua del
riscaldamento/ra󰀨reddamento
2
Uscita dell'acqua del riscaldamento/
ra󰀨reddamento
3 Ingresso ACS (acqua fredda)
4 Uscita ACS (acqua calda)
In dotazione 5
Rubinetto di intercettazione con ltro
Accessori opzionali
6
Valvola a 3 vie Ra󰀨reddamento
7 Termistore (per riscaldamento)
Non in dotazione
8 Rubinetto di intercettazione
9 Pompa dell’acqua
10 Filtro
11 Valvola di miscelazione
12 Valvola di ritegno
13 Rubinetto di intercettazione
Come esempio di installazione di riscaldamento/ra󰀨reddamento 
degli ambienti, sono necessari i seguenti elementi idraulici per
eseguire correttamente il circuito dell'acqua di riscaldamento/
ra󰀨reddamento degli ambienti:
Il rubinetto di intercettazione non in dotazione (8) deve
essere installato all'uscita dell'acqua dell'unità e il rubinetto
di intercettazione con ltro (5) deve essere installato
orizzontalmente all'ingresso dell'acqua dell'unità.
Nel procedere al riempimento del circuito dell’acqua, è
necessario collegare 1 valvola di ritegno (12) con 1 rubinetto
di intercettazione (13) nel punto di riempimento dell'acqua.
La valvola di ritegno funge da dispositivo di sicurezza per
proteggere l'impianto.
In un punto del tubo di uscita dell'acqua deve essere
collegata una valvola a 3 vie (6), in modo da deviare la
circolazione dell'acqua per funzioni speciche.
Il termistore di riscaldamento (7) deve essere installato sul
tubo metallico vicino al riscaldamento e deve essere ben
aderente ad esso.
Si consiglia di utilizzare la valvola miscelatrice (11) per
utilizzare ESBE ARA661, la cui modalità di funzionamento è
SPDT a 3 punti. Se si utilizzano valvole miscelatrici di altre
marche o modelli, la modalità di funzionamento deve essere
SPDT a 3 punti e l'alimentazione deve essere
220-240 V ~ 50 Hz. Il tempo di rotazione può essere
impostato utilizzando il dispositivo di controllo principale.
9.1.2 Elementi per ACS
Come esempio di installazione dell’acqua calda sanitaria
(ACS), sono necessari i seguenti elementi idraulici per eseguire
correttamente il circuito dell'acqua dell’ACS:
(1) Elementi richiesti per il circuito dell’acqua ACS
Serbatoio di ACS
Tipo Nome del componente
Collegamento
dei tubi
1
Ingresso dell'acqua aggiuntivo del serbatoio di
ACS
2 Uscita del serbatoio di ACS
Non in
dotazione
3 Rubinetto di intercettazione
4 Drenaggio
5 Rubinetto di intercettazione
Non in
dotazione
6
Valvola limitatrice di pressione
6a Valvola di ritegno dell’acqua
6b Valvola limitatrice di pressione
7 Linea di drenaggio
Rubinetto di intercettazione (non in dotazione):
È necessario collegare il rubinetto di intercettazione (5) dopo
l'uscita del serbatoio di ACS, al ne di facilitare le operazioni
di manutenzione.
Una valvola limitatrice di pressione (non in dotazione):
Il serbatoio dell'acqua calda sanitaria deve essere alimentato
con acqua fredda passante attraverso una valvola limitatrice
di pressione (6) tarata a circa 7 bar (a seconda delle
normative locali). Azionare la valvola limitatrice di pressione
secondo le speciche del produttore. Non devono essere
presenti altre valvole tra la valvola limitatrice di pressione
(6) e il serbatoio. La valvola limitatrice di pressione (6) deve
essere installata il più vicino possibile all'ingresso dell'acqua
calda sanitaria e collegata a una linea di drenaggio (7) che
conduce alla rete fognaria. Questa valvola limitatrice di
pressione deve fornire quanto segue:
- Protezione pressione
- Funzione di non ritorno
- Riempimento
- Drenaggio
Controllare la valvola limitatrice di pressione sull'ingresso di
alimentazione dell'acqua fredda.
La valvola limitatrice di pressione deve essere azionata
regolarmente per rimuovere i depositi di incrostazioni e vericare 
che non sia bloccata.
RISCALDAMENTO/RAFFREDDAMENTO E ACS
15

Table of Contents

Related product manuals