EasyManua.ls Logo

Immergas VICTRIX EXTRA 12 PLUS - Page 40

Immergas VICTRIX EXTRA 12 PLUS
136 pages
Print Icon
To Next Page IconTo Next Page
To Next Page IconTo Next Page
To Previous Page IconTo Previous Page
To Previous Page IconTo Previous Page
Loading...
40
INSTALLERUSERMAINTENANCE TECHNICIANTECHNICAL DATA
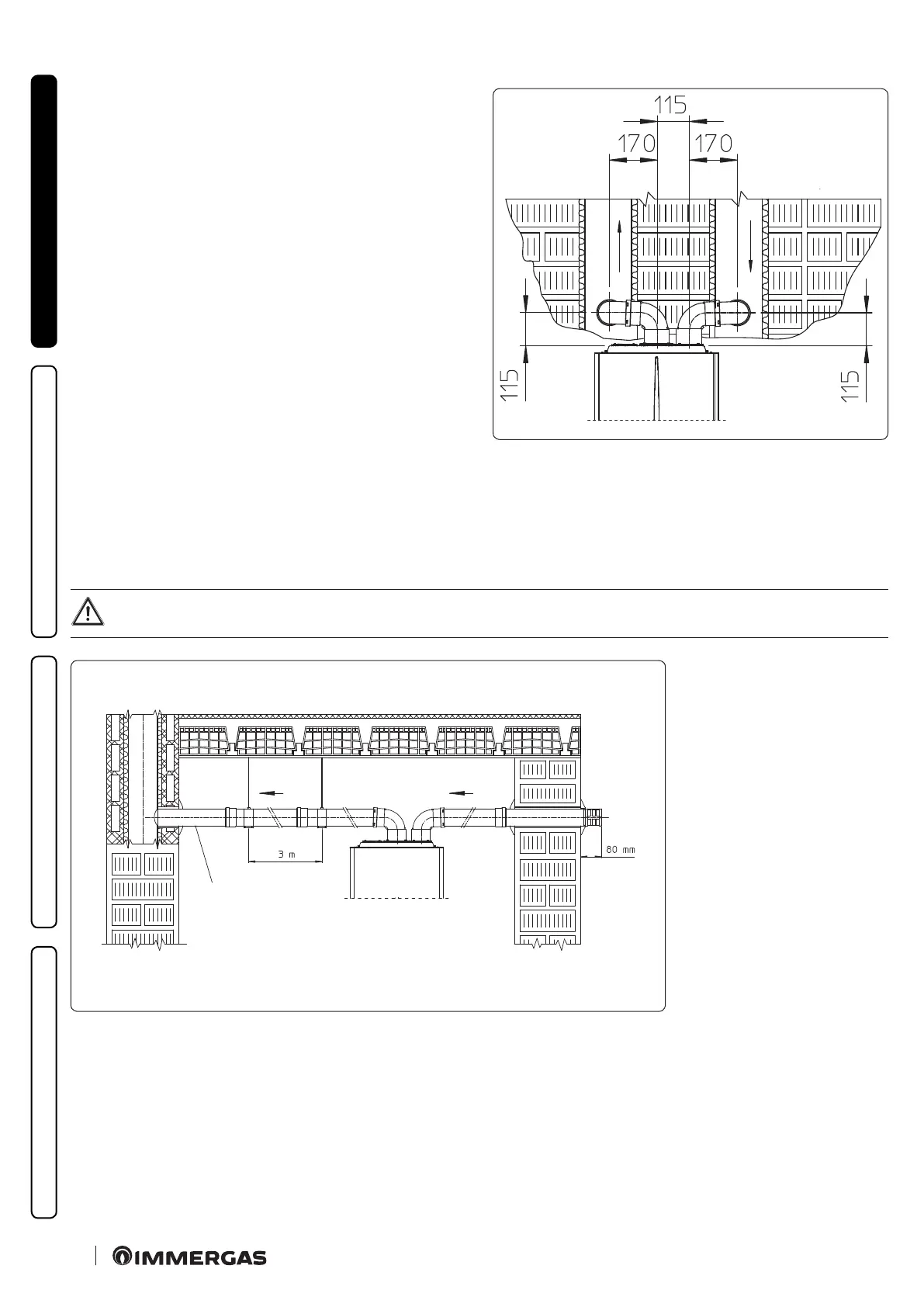
Installation clearances (Fig. 26)
e minimum installation clearance measurements of the Ø
80/80 separator terminal kit have been stated in some limit condi-
tions.
C
43
26
Extensions for separator kit Ø 80/80 (L = maximum length)
e maximum vertical straight length (without bends) that can be used for Ø 80 intake and exhaust pipes is 35 metres, regardless from
whether they are used for intake or exhaust.
e maximum horizontal straight length (with bend in suction and in exhaust) that can be used for Ø 80 intake and exhaust pipes is 35
metres, regardless from whether they are used for intake or exhaust.
Please note the type of installation C
43
must be done with a natural draught ue.
To aid in the removal of possible condensate forming in the exhaust pipe, tilt the pipes towards the appliance with a minimum
slope of 5% (Fig.27).
C
83
C
S
A
27
Key (Fig. 27):
A - Intake
C - Minimum slope 5%
S - Exhaust
L - Maximum length

Table of Contents

Related product manuals