EasyManua.ls Logo

Kidde FX-64 - Page 231

Kidde FX-64
244 pages
Print Icon
To Next Page IconTo Next Page
To Next Page IconTo Next Page
To Previous Page IconTo Previous Page
To Previous Page IconTo Previous Page
Loading...
Appendix C: Applications
P/N 3102352-EN • REV 005 • ISS 28DEC18 221
a FX-NAC Analog NAC Module.
The sounder bases, once activated, continue to sound an alarm signal until:
Smoke is cleared from the active detectors and the control panel is reset.
Signal Silence is pressed.
The control panel’s Auto Signal Silence timer expires, if programmed. This can be from 5 to
30 minutes.
The in-suite signal silence timer expires, if programmed. See “What is in-suite signal
silence?on page 38 and “Programming in-suite signal silenceon page 85.
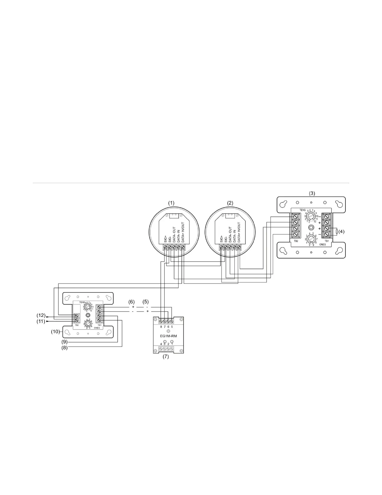
Typical wiring for system alarm signaling applications
The figure below shows the typical wiring for synchronized system alarm signaling. The
24 VDC riser that supplies power to the sounder bases is supervised using a FX-NAC Analog
NAC Module.
Figure 60: Typical wiring for a system alarm signaling application
(1) First detector (sounder base)
(2)
Last detector (sounder base)
(3)
FX-NAC
(4)
47 kΩ EOLR
(
5) Active
(6) Normal
(7) EG1M-RM module
(8) AUX riser 24 VDC −
(9) AUX riser 24 VDC +
(10) FX-RLY
(11) SLC IN −
(12) SLC IN +
Note: The EG1M-RM module is required to provide sounder synchronization.

Table of Contents

Related product manuals