EasyManua.ls Logo

Maeda MC815C - Hydraulic Specifications; Solenoid Valve Specifications; Travel; Outrigger Control Valve Layout

Maeda MC815C
378 pages
Print Icon
To Next Page IconTo Next Page
To Next Page IconTo Next Page
To Previous Page IconTo Previous Page
To Previous Page IconTo Previous Page
Loading...
2-32
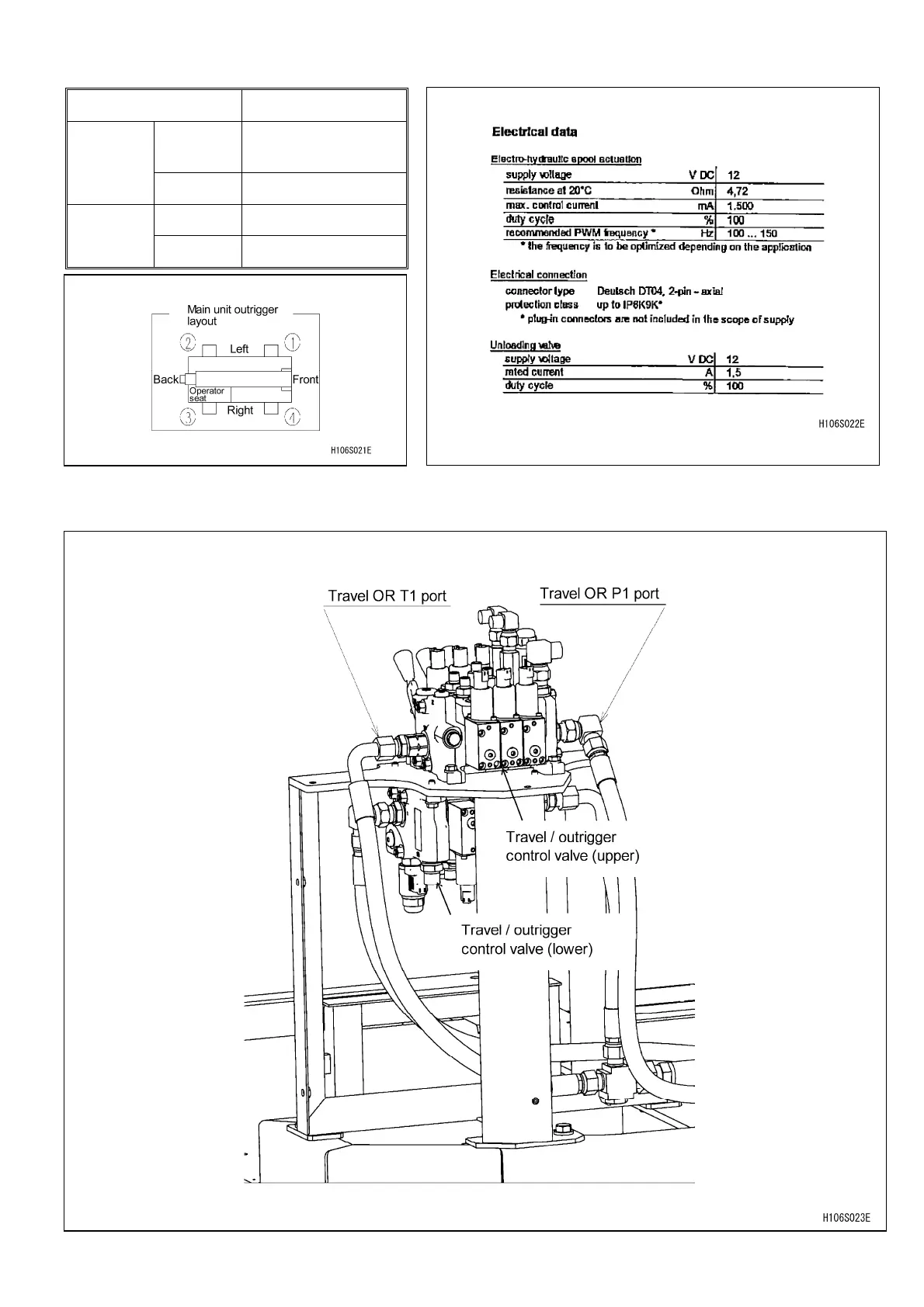
4.5.4 HYDRAULIC SPECIFICATIONS 4.5.5 SOLENOID VALVE SPECIFICATIONS
Item No.
S106G3573000
Rated
pressure
(MPa)
High
pressure
circuit
24.5
Tank circuit
1.0
Service
flow rate
(l/min)
P1 / T1 60
A / B 45
4.5.6 TRAVEL / OUTRIGGER CONTROL VALVE LAYOUT

Table of Contents

Other manuals for Maeda MC815C

Related product manuals