EasyManua.ls Logo

Medivators ADVANTAGE PLUS - Dimensions and Clearances

Medivators ADVANTAGE PLUS
184 pages
Print Icon
To Next Page IconTo Next Page
To Next Page IconTo Next Page
To Previous Page IconTo Previous Page
To Previous Page IconTo Previous Page
Loading...
14
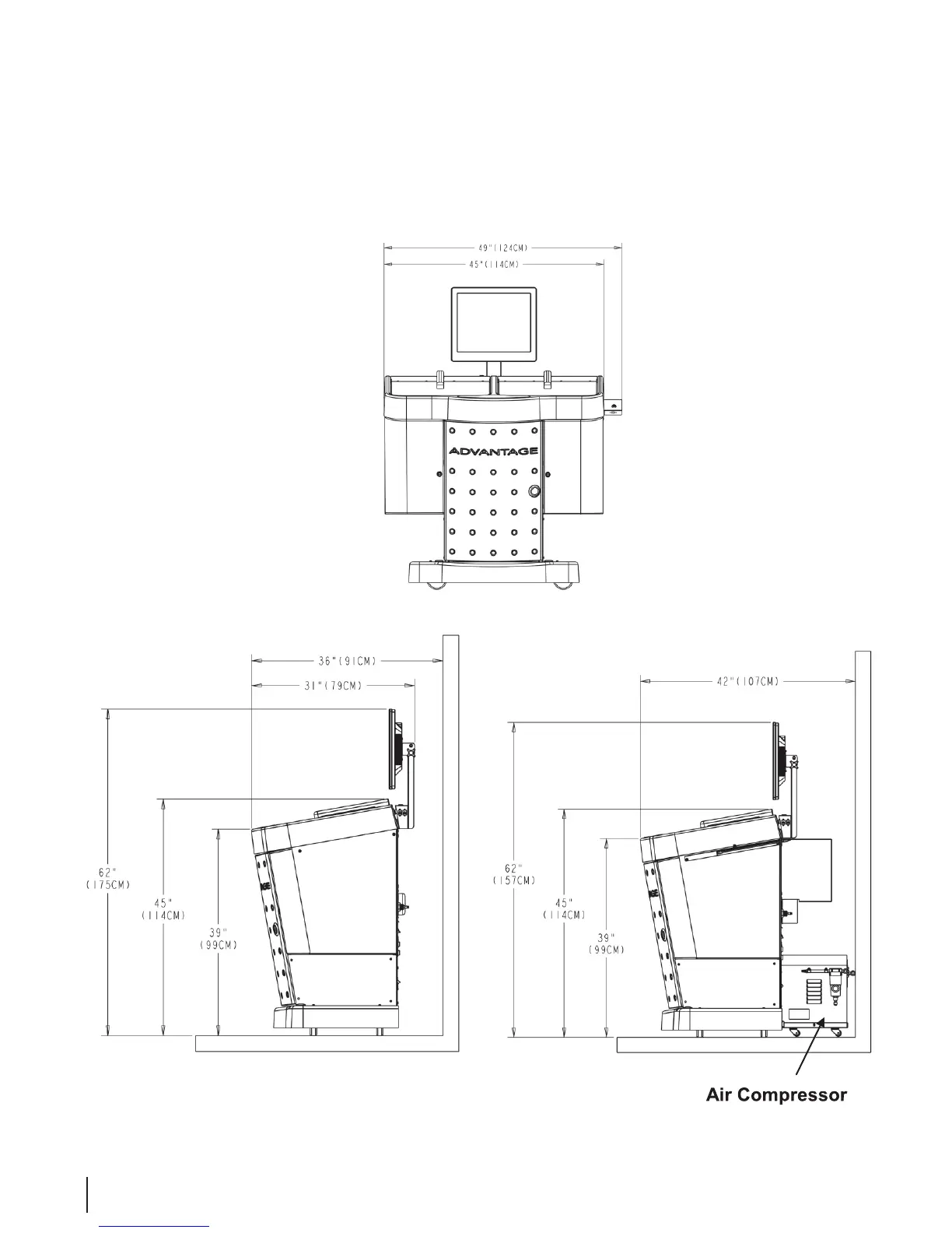
Dimensions and Clearances
Figure 1 Front Dimensions
Figure 2 Side Dimensions & Clearance

Table of Contents

Other manuals for Medivators ADVANTAGE PLUS

Related product manuals