EasyManua.ls Logo

Micom P631 - Page 107

Micom P631
638 pages
Print Icon
To Next Page IconTo Next Page
To Next Page IconTo Next Page
To Previous Page IconTo Previous Page
To Previous Page IconTo Previous Page
Loading...
19Z5264A
++
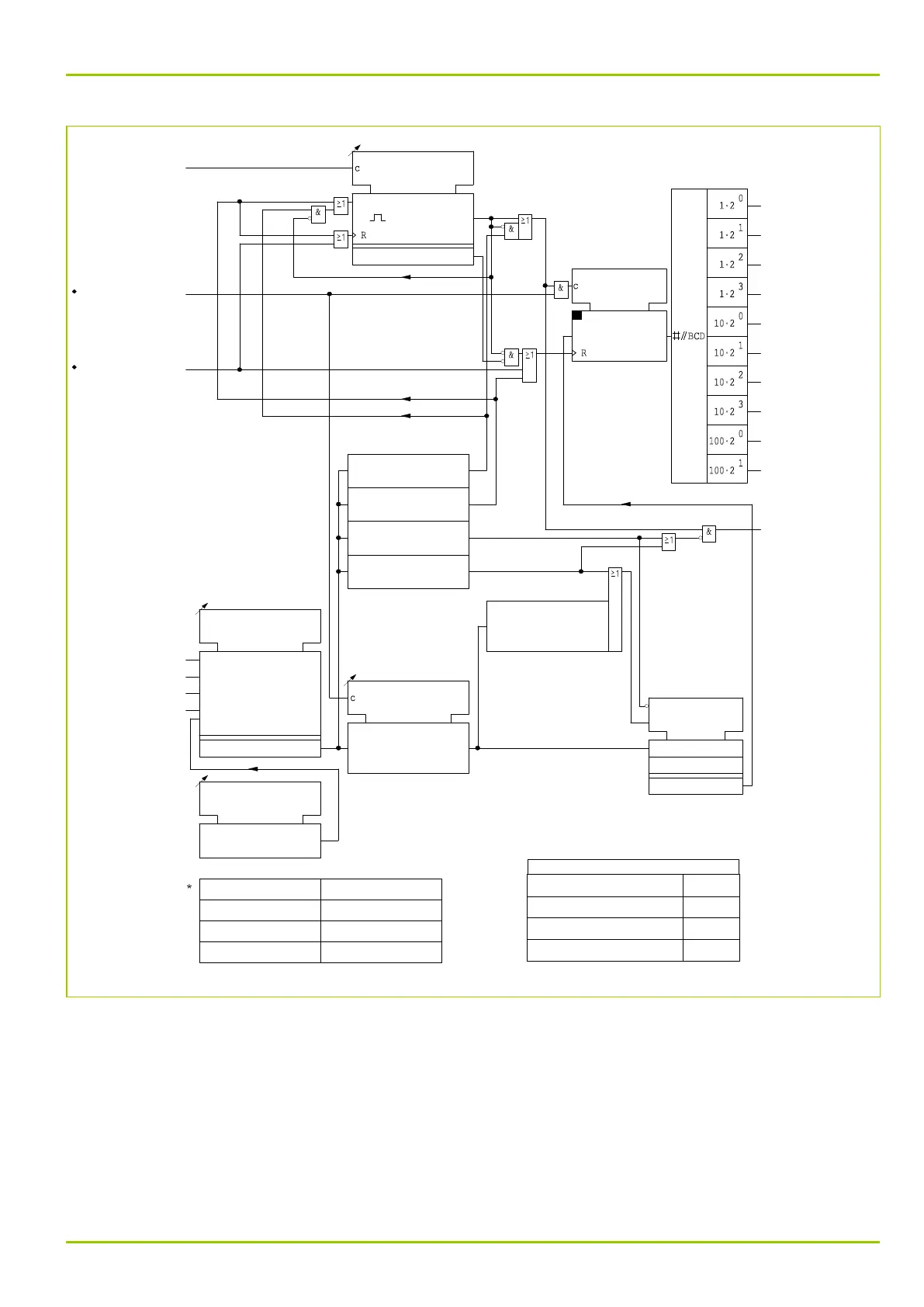
Scaling of the BCD output
MEASO:
Scaled min. val. BCD
037 140
MEASO:
Scaled max. val. BCD
037 141
MEASO:
BCD-Out min. value
037 142
MEASO:
BCD-Out max. value
037 143
++
Scaling of the
BCD output
Address
037 120
037 121
037 122
MEASO:
Output value x
MEASO:
Output value x
[ * ]
Meas. value 399
Selected meas. val.
Selected meas. val.
Overflow
Measured value 1
Measured value 2
Measured value 3
Measured value n
MEASO:
Fct. assignm. BCD
[ 053 002 ]
MEASO:
Hold time output BCD
[ 010 010 ]
MEASO:
1-digit bit 0 (BCD)
[ 037 051 ]
MEASO:
1-digit bit 1 (BCD)
[ 037 052 ]
MEASO:
1-digit bit 2 (BCD)
[ 037 053 ]
MEASO:
1-digit bit 3 (BCD)
[ 037 054 ]
MEASO:
10-digit bit 0 (BCD)
[ 037 055 ]
MEASO:
10-digit bit 1 (BCD)
[ 037 056 ]
MEASO:
10-digit bit 2 (BCD)
[ 037 057 ]
MEASO:
10-digit bit 3 (BCD)
[ 037 058 ]
MEASO:
100-dig. bit 0 (BCD)
[ 037 059 ]
MEASO:
100-dig. bit 1 (BCD)
[ 037 060 ]
MEASO:
Valid BCD value
[ 037 050 ]
Setting blocked
Selected meas. val.
Selected
meas. oper. value
Selected
Meas. event value
being updated
Value not measured
MEASO:
Enabled
[ 037 102 ]
MEASO:
Enable
304 600
MEASO:
Reset meas.val.outp.
304 601
x: 1
x: 2
x: 3
0 . . . 100 %
c1
c2
1
2
1 . . . 2
Fig. 3-34: BCD measured data output
3 Operation
P631
P631/EN M/R-11-C // P631-310-650 3-51

Table of Contents

Related product manuals