EasyManua.ls Logo

Micom P631 - Residual Current Stage

Micom P631
638 pages
Print Icon
To Next Page IconTo Next Page
To Next Page IconTo Next Page
To Previous Page IconTo Previous Page
To Previous Page IconTo Previous Page
Loading...
MAIN:
Phase sequence
[ 010 049 ]
64Z5076C
Parameter
set 1
set 2
set 3
set 4
IDMT1:
Hold time neg PSx
081 115
082 115
083 115
084 115
IDMT1:
Min. trip t. neg PSx
081 117
082 117
083 117
084 117
IDMT1:
Factor kt,neg PSx
081 114
082 114
083 114
084 114
IDMT1:
Release neg PSx
081 116
082 116
083 116
084 116
IDMT1:
Gen.starting modePSx
081 059
082 059
083 059
084 059
Parameter
set 1
set 2
set 3
set 4
IDMT1:
Iref,neg dynamic PSx
081 112
082 112
083 112
084 112
IDMT1:
Iref,neg PSx
081 111
082 111
083 111
084 111
IDMT1:
Rush restr.enabl PSx
081 060
082 060
083 060
084 060
IDMT1:
Character. neg. PSx
081 113
082 113
083 113
084 113
IDMT1:
Rush restr.enabl PSx
[ * ]
IDMT1:
Iref,neg PSx
[ * ]
IDMT1:
Iref,neg dynamic PSx
[ * ]
IDMT1:
Gen.starting modePSx
[ * ]
IDMT1:
Character. neg. PSx
[ * ]
IDMT1:
Factor kt,neg PSx
[ * ]
IDMT1:
Min. trip t. neg PSx
[ * ]
IDMT1:
Hold time neg PSx
[ * ]
IDMT1:
Release neg PSx
[ * ]
DIFF:
Harm.block 1 trigg.
[ 041 118 ]
DIFF:
Harm.block 2 trigg.
[ 041 119 ]
DIFF:
Harm.block 3 trigg.
[ 041 120 ]
IDMT1:
Enabled
[ 038 125 ]
MAIN:
Dynam. param. active
[ 040 090 ]
MAIN:
Protection active
306 001
IA,y
IB,y
IC,y
IDMT1:
Block.tIref,neg> EXT
[ 038 178 ]
1: With start. IN/Ineg
Ineg/Iref,neg
IDMT1:
Release neg PSx
Setting
1: Without delay
2: Delayed as per char.
Ineg
1.05 Iref
0: No
1: Yes
Setting
IDMT1:
Character. neg. PSx
1: IEC Standard Inverse
2: IEC Very Inverse
3: IEC Extr. Inverse
4: IEC Long Time Inv.
5: IEEE Moderately Inv.
6: IEEE Very Inverse
7: IEEE Extremely Inv.
8: ANSI Normally Inv.
9: ANSI Short Time Inv.
10: ANSI Long Time Inv.
11: RI-Type Inverse
12: RXIDG-Type Inverse
IDMT1:
Memory 'neg' clear
[ 038 176 ]
IDMT1:
Trip sig. tIref,neg>
[ 038 177 ]
IDMT1:
tIref,neg> elapsed
[ 038 174 ]
IDMT1:
Hold time neg runn.
[ 038 175 ]
IDMT1:
Starting Iref,neg>
[ 038 173 ]
0
1
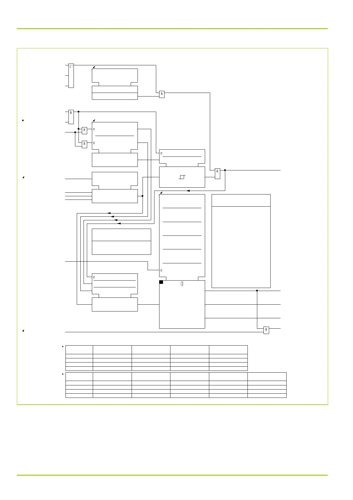
Fig. 3-104: Negative-sequence current stage
3.23.5 Residual Current Stage
The residual current is monitored by the P631 to detect when it exceeds the set
thresholds. Alternatively, two different thresholds can be active. The “dynamic”
threshold is active for the set hold time for the “dynamic parameters” (see
Section 3.12.5, (p. 3-76)) and the “normal” threshold is active when no hold time
is running. The IDMT protection will trigger when the 1.05-fold of the set
P631
3 Operation
3-140 P631/EN M/R-11-C // P631-310-650

Table of Contents

Related product manuals