EasyManua.ls Logo

Omron 3G3JX - PID Function; Basic Structure of PID Control

Omron 3G3JX
262 pages
Print Icon
To Next Page IconTo Next Page
To Next Page IconTo Next Page
To Previous Page IconTo Previous Page
To Previous Page IconTo Previous Page
Loading...
4-20
4-2 Function Mode
4
Functions
PID Function
This function enables process control of such elements as flow rate, air volume, and pressure.
To use this function, set A071 to 01.
To switch between enable/disable via the terminal block (external signal), allocate 23 (PID enable/
disable) to the desired multi-function input. Select OFF for enable and ON for disable.
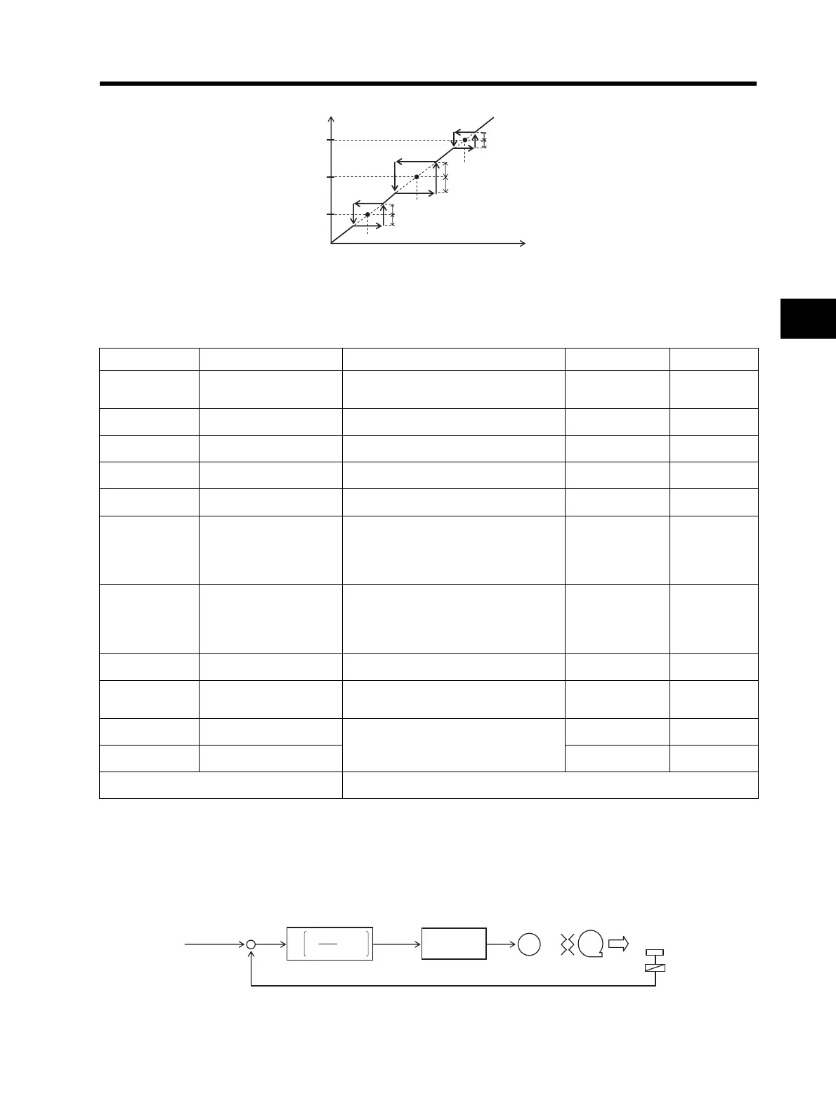
Basic Structure of PID Control (Example)
Output
frequency
A067
A065
A063
A068
A068
A066
A064
A066
A064
Frequenc
y
reference
Parameter No. Function name Data Default setting Unit
A071 PID selection
00: Disabled
01: Enabled
00
A072 PID P gain 0.2 to 5.0 1.0
A073 PID I gain 0.0 to 150.0 1.0 s
A074 PID D gain 0.00 to 100.0 0.0 s
A075 PID scale 0.01 to 99.99 1.00 Time
A076 PID feedback selection
00: FI
01: FV
02: RS485 communication
03: Operation function output
00
A077 Reverse PID function
00: Deviation = Target value -
Feedback value
01: Deviation = Feedback value -
Target value
00
A078 PID output limit function 0.00 to 100.0 0.0 %
C044
PID deviation excessive
level
0. to 100. 3.0 %
C052 PID FB upper limit
0.0 to 100.0
100 %
C053 PID FB lower limit 0.0 %
Related functions d004, A001, A005, C001 to C005, C021, C026
fs
M
=
+
-
Deviation ε
ε: Deviation
sT
sT
K
d
i
p
1
1
Target value
0 to 10 V
4 to 20 mA
+
·
·
+
Control
value
Feedback 0 to 10 V
4 to 20 mA
Normal control
of the Inverter
Transducer
Senso
r
Kp: Proportional gain Ti: Integral time Td: Derivative time s: Operator

Table of Contents

Other manuals for Omron 3G3JX

Related product manuals