EasyManua.ls Logo

Omron SYSDRIVE 3G3JV - Page 112

Omron SYSDRIVE 3G3JV
246 pages
Print Icon
To Next Page IconTo Next Page
To Next Page IconTo Next Page
To Previous Page IconTo Previous Page
To Previous Page IconTo Previous Page
Loading...
6-8
n57
Stall Prevention during Operation Changes during
operation
No
Setting
range
30 to 200 (%) Unit of
setting
1% Default setting 160
Set Values
This function will decrease the output frequency if the output current exceeds the set current value by a
minimum of approximately 100 ms so that the Inverter will continue operating without stalling. The
Inverter will increase the output frequency to return to the set frequency reference level when the out-
put current is less than the set value.
The Inverter accelerates or decelerates the output frequency according to the preset acceleration or
deceleration time. (Acceleration time 1: n16, n17 or acceleration time 2: n18, n19)
Set the parameter as percentage based on the rated Inverter current as 100%.
The default setting does not need any changes in normal operation.
Decrease the set value if the capacity of the motor is smaller than that of the Inverter or the motor stalls
with the default value.
The set value is normally 2 or 3 times higher than the rated current of the motor. Set this current in
percentage based on the rated Inverter current as 100%.
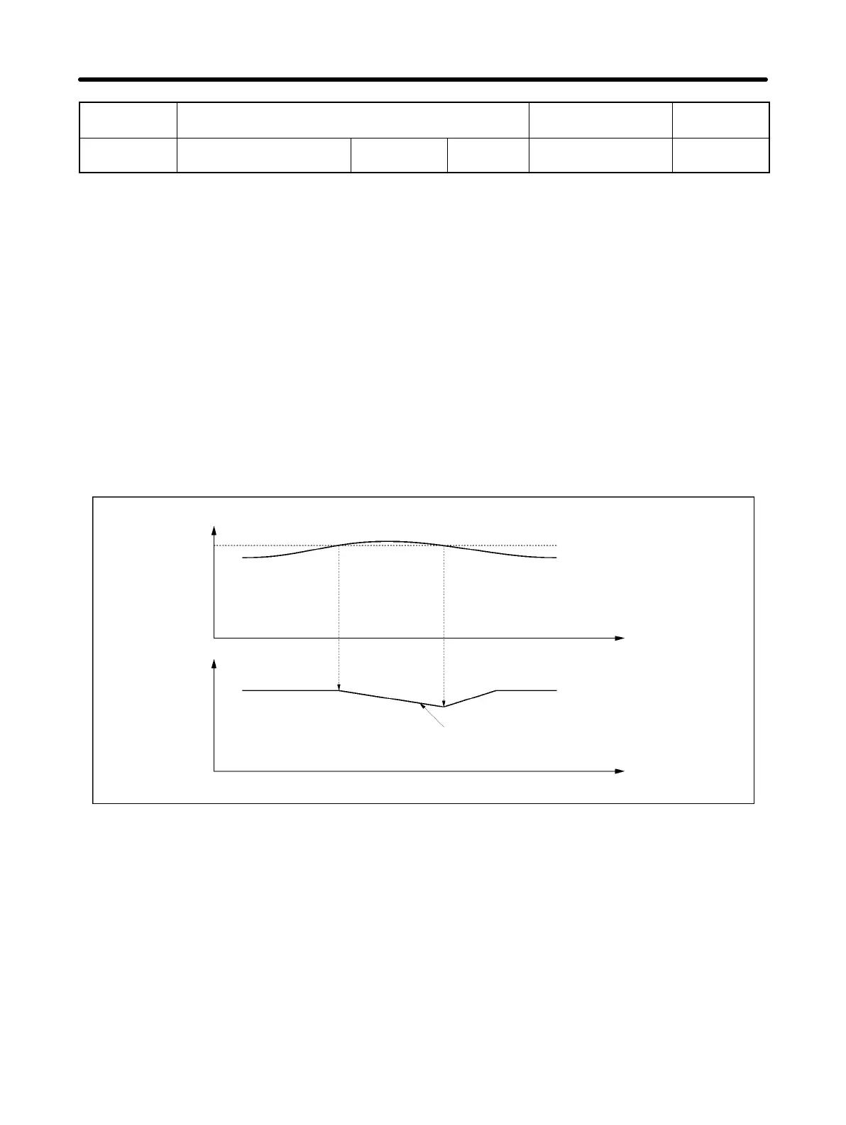
Stall Prevention during Acceleration
Output
current
n57 (Stall prevention level
during acceleration)
Time
Output
frequency
The output frequency is controlled
so that the Inverter will not stall.
Time
Advanced Operation Chapter 6

Table of Contents

Other manuals for Omron SYSDRIVE 3G3JV

Related product manuals