EasyManua.ls Logo

Omron SYSDRIVE 3G3JV - Digital Operator

Omron SYSDRIVE 3G3JV
246 pages
Print Icon
To Next Page IconTo Next Page
To Next Page IconTo Next Page
To Previous Page IconTo Previous Page
To Previous Page IconTo Previous Page
Loading...
9-12
H Dimensions (mm)
Panel cut-out
Main indicator
character size
101.2
Terminal Cover
(included)
The K3MA-J uses M3 terminals.
Terminal cover (included)
14.2 mm
7.6 mm
91
48
96
97
85
12
1.3
75 min.
120 min.
44.8
80
45
92
+0.5
0
+0.5
0
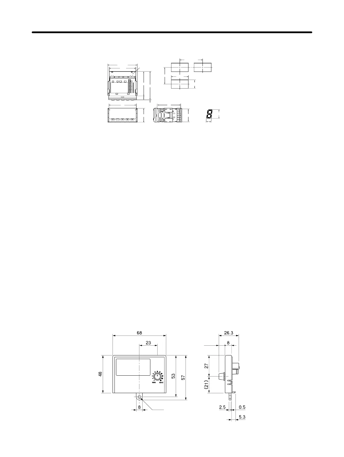
9-2-6 Digital Operator
H 3G3IV-PJVOP140/PJVOP146
The Digital Operator (3G3IV-PJVOP140/PJVOP146) is used to control the Inverter from a distance.
There are two models available. The 3G3IV-PJVOP140 is equipped with an adjuster and the 3G3IV-
PJVOP146 is not.
Always use the 3G3IV-PJVOP140 together with a Digital Operator Case (3G3IV-PEZZ08386A). With-
out the Case, the Digital Operator’s connection cable cannot be wired. Using the Case also enables
mounting to a control panel.
Note When a Digital Operator is connected, the Operator on the Inverter cannot be used to control
operation (i.e., only display functions will work).
H Dimensions (mm)
D 3G3IV-PJVOP140 (with Adjuster)
8 max.
3.6 dia
Specifications Chapter 9

Table of Contents

Other manuals for Omron SYSDRIVE 3G3JV

Related product manuals