EasyManua.ls Logo

Omron SYSDRIVE 3G3JV - Page 172

Omron SYSDRIVE 3G3JV
246 pages
Print Icon
To Next Page IconTo Next Page
To Next Page IconTo Next Page
To Previous Page IconTo Previous Page
To Previous Page IconTo Previous Page
Loading...
7-47
Set data: <a> + [10] + [00] + [01] + [00] + [02] + <I> + (R (3N + 3), 4) + <c>
<a>
The Slave address is set in the address box. Insert the address with the Insert icon.
[10] + [00] + [01] + [00] + [02]
Set the constants contained in the DSR message.
Use Set Constant and set the constants in Hex.
<I>
The length is set in the length box. Insert the length by using the Insert icon. The length is the num-
ber of bytes of the succeeding data (R(3N + 3), 4). The length is automatically set by the CX-Proto-
col.
(R(3N+3), 4)
The Inverter’s actual data to be sent. This example selects Variable and Read R() and sets the
operand. Set Data to 3N + 3 because the RUN command data uses four bytes each from S + 3, S +
6, and S + 9.
Set Edit Length to 0N + 4 so that it will be set to four bytes.
<c>
The check code is set in the check code box. Insert the check code by using the Insert icon. All the
data including the address data before the check code is operated. Mark all the items if the Protocol
Support Tool is used. The check code is automatically set by the CX-Protocol.
DSR Message to Read the Inverter Status
The DSR message to read the Inverter status from register 002C Hex consists of the following items.
CRC-16 check (Set with <c>)
Number of read data registers: 1
Read start register number (Inverter status: 002C)
Function code (Read 03)
Slave address (Set with <a>)
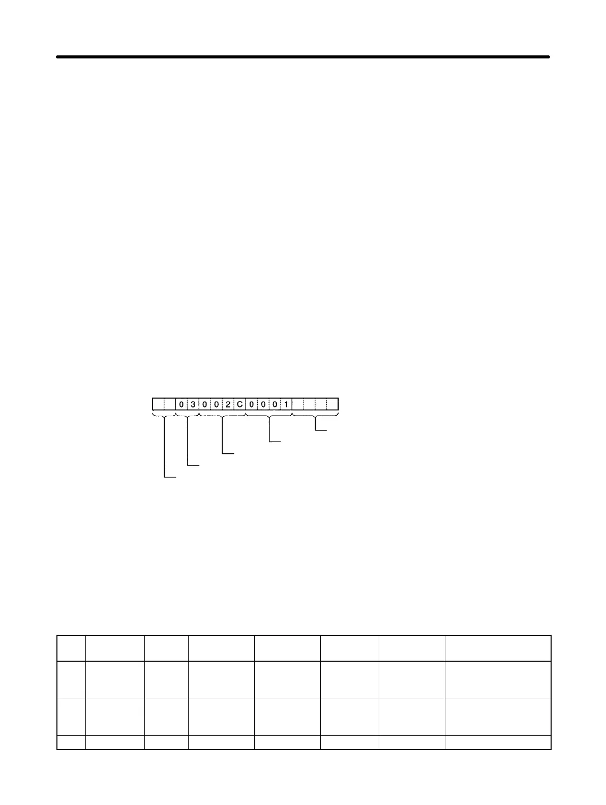
Set data: <a> + [03] + [00] + [2C] + [00] + [01] + <c>
Set the address data, constant data, and check code data.
H Recv Message Detail Settings
1. With the left button of the mouse, click on Receive Message List. Then click on a blank space with
the right button of the mouse.
2. Select Create Receive Message.
The following table will appear. Set the Receive message in the table.
* Message Header
<h>
Terminator
<t>
Check code
<c>
Length
<l>
Address
<a>
Data
j
Input
response
~
CRC-16
(65535)
(2Byte BIN)
~
(R (3N+2),
1)
<a> + [10] + [00] +
[01] + [00] + [02] +
<c>
j
Read
response
~
CRC-16
(65535)
(2Byte BIN)
(0) (1Byte
BIN)
~
(R (3N+2),
1)
<a> + [03] + <I> + (W
(1N + 1), 2) + <c>
j
Communications Chapter 7

Table of Contents

Other manuals for Omron SYSDRIVE 3G3JV

Related product manuals