EasyManua.ls Logo

Omron SYSDRIVE 3G3JV - Page 219

Omron SYSDRIVE 3G3JV
246 pages
Print Icon
To Next Page IconTo Next Page
To Next Page IconTo Next Page
To Previous Page IconTo Previous Page
To Previous Page IconTo Previous Page
Loading...
9-21
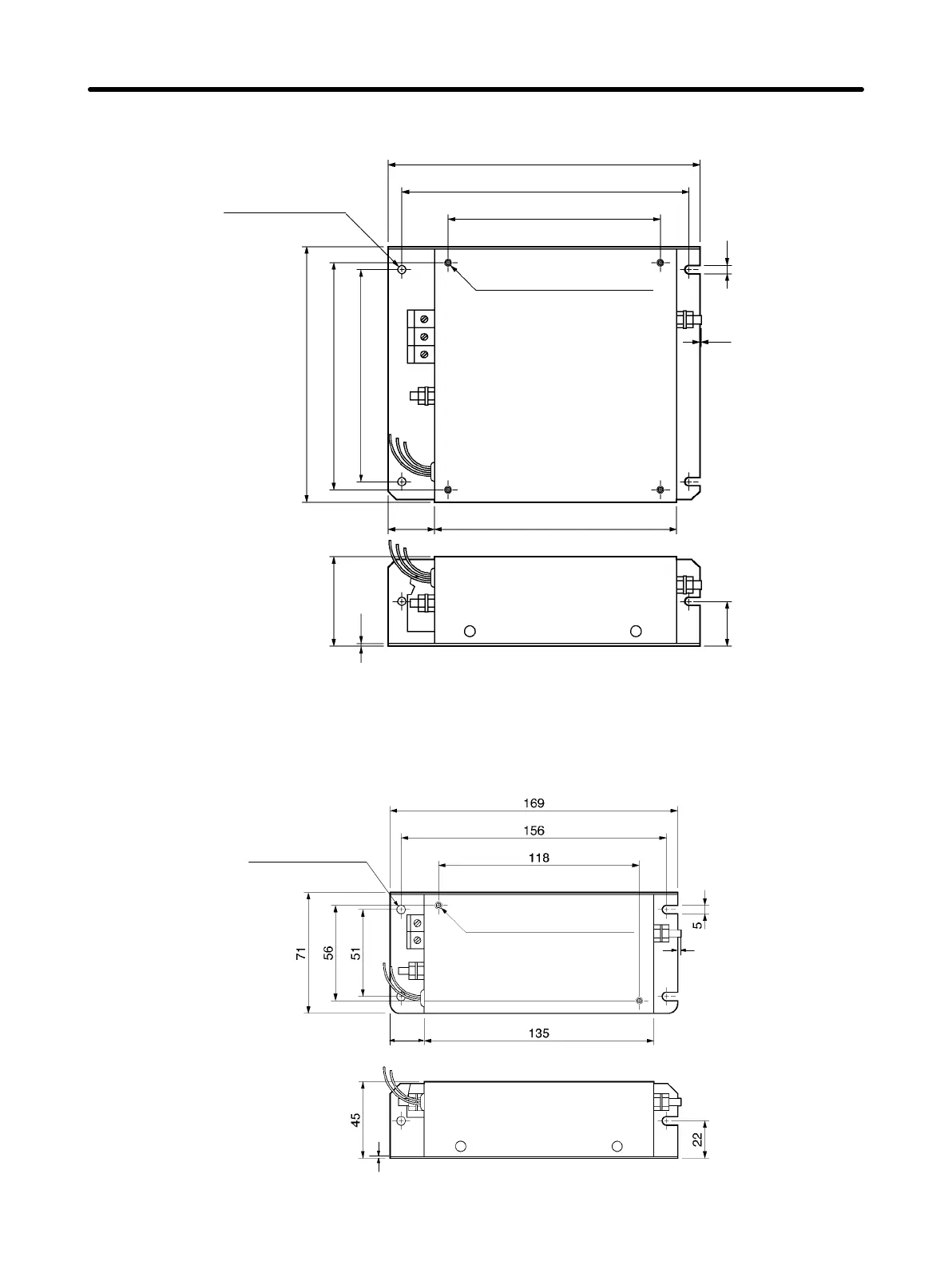
D 3G3JV-PRS2030J
Four, M4 holes
(for Inverter mounting use)
Three, 5-dia. holes
144
128
120
50
1.2
25
5
174
161
118
1
135
26
Noise Filters for Single-phase 200-V AC Models
D 3G3JV-PRS1010J
Three, 5-dia. holes
Two, M4 holes
(for Inverter mounting use)
1
21
1.2
Specifications Chapter 9

Table of Contents

Other manuals for Omron SYSDRIVE 3G3JV

Related product manuals