EasyManua.ls Logo

Omron SYSDRIVE 3G3JV - Page 221

Omron SYSDRIVE 3G3JV
246 pages
Print Icon
To Next Page IconTo Next Page
To Next Page IconTo Next Page
To Previous Page IconTo Previous Page
To Previous Page IconTo Previous Page
Loading...
9-23
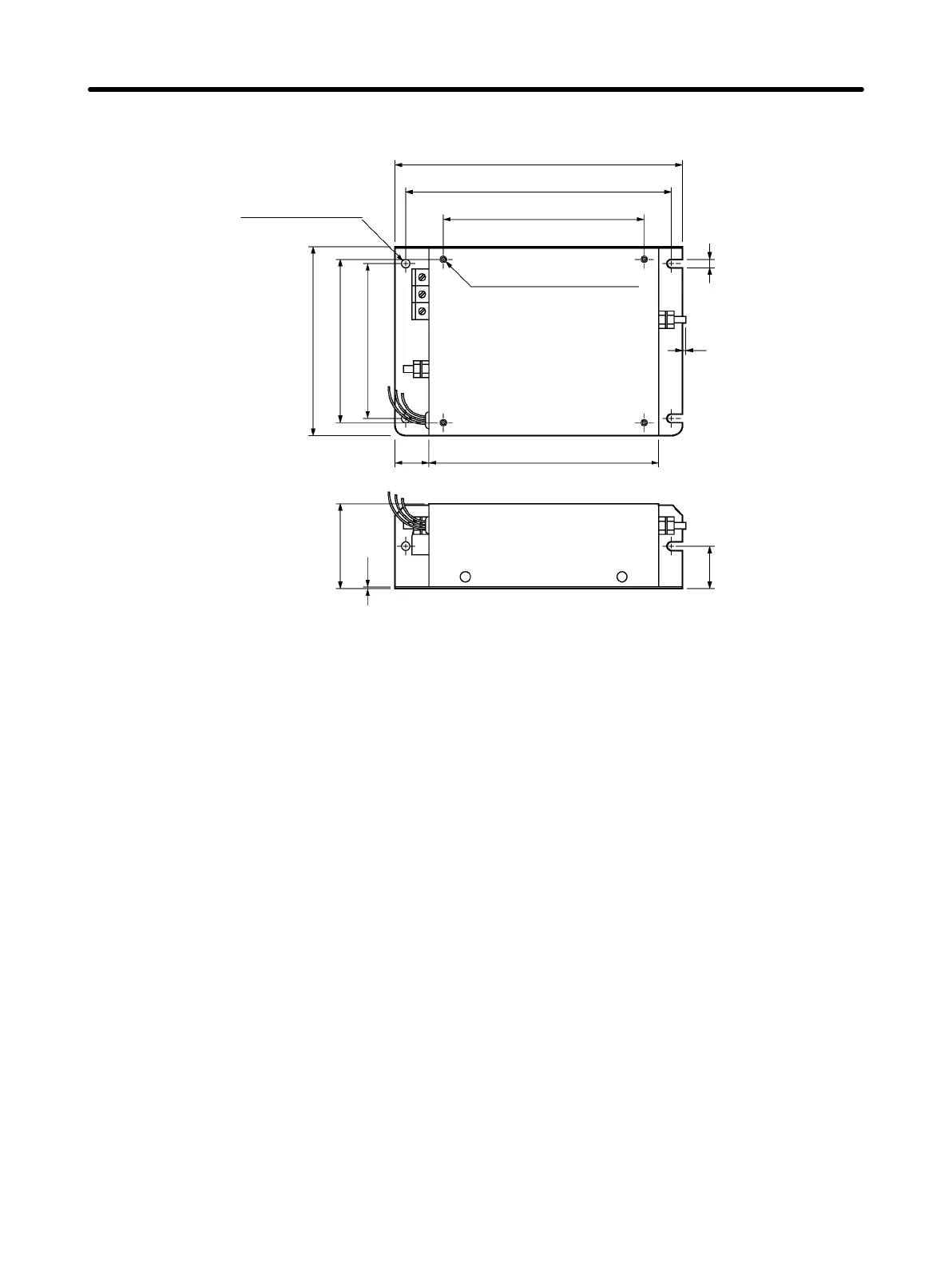
D 3G3JV-PRS3010J
Four, M4 holes
(for Inverter mounting use)
Three, 5-dia. holes
111
96
91
50
1.2
25
5
169
156
118
1
135
21
Specifications Chapter 9

Table of Contents

Other manuals for Omron SYSDRIVE 3G3JV

Related product manuals