EasyManua.ls Logo

Optek CONTROL 200 - Factory Settings

Optek CONTROL 200
135 pages
Print Icon
To Next Page IconTo Next Page
To Next Page IconTo Next Page
To Previous Page IconTo Previous Page
To Previous Page IconTo Previous Page
Loading...
C200 SOFTWARE
Instruction Manual C200 Part2 A1.doc
optek Danulat GmbH D-45356 Essen Germany
page 88
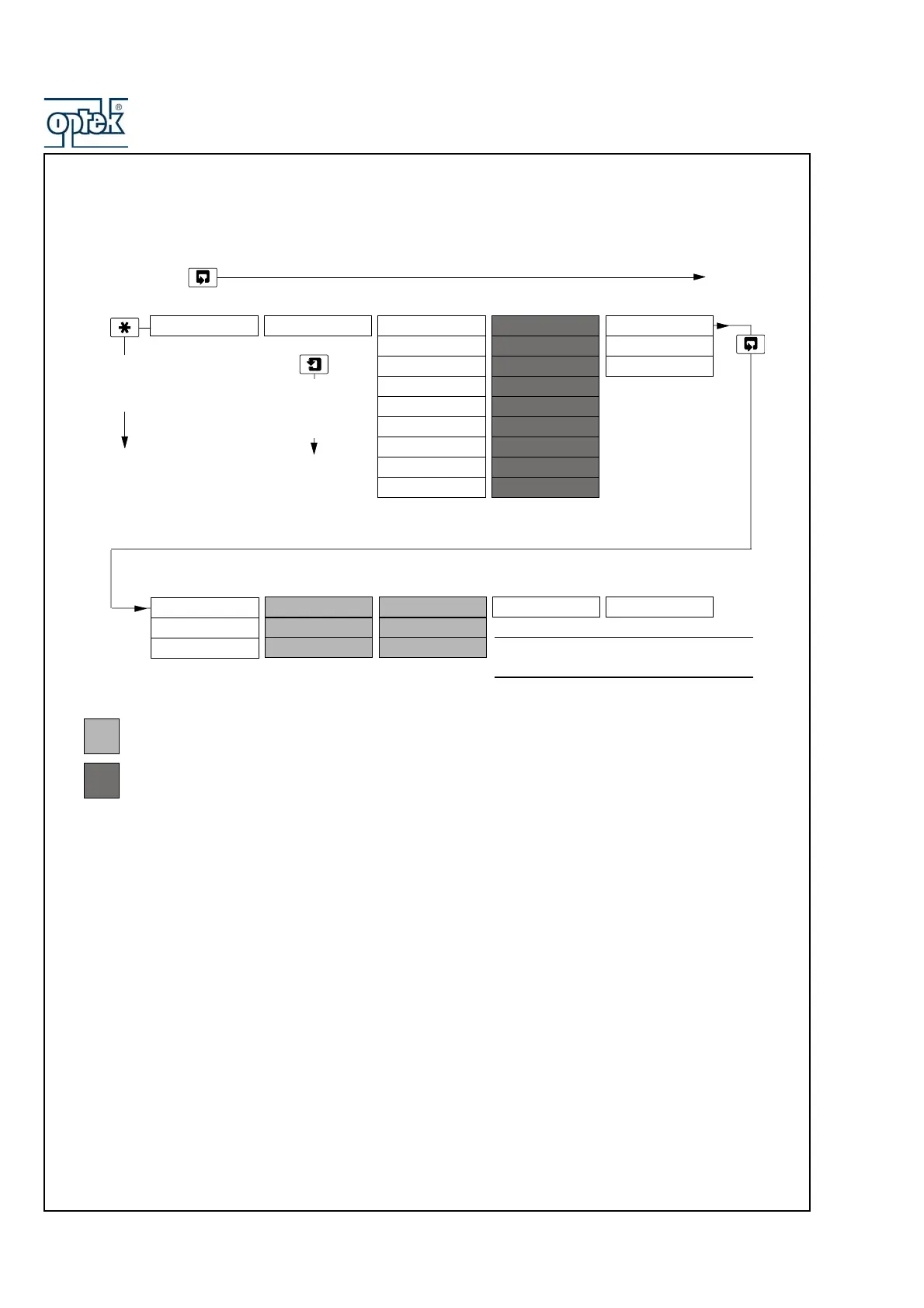
6.1.3 Factory Settings
FACTORY SETTINGS Factory Set Code Cal. Sensor A
A:mV Zero (-1V)
A:mV Span (+1V)
A:T.Zero (100R)
A:T.Span (150R)
Cal. Sensor B
B:T.Zero (100R)
B:T.Span (150R)
Cal. Output 1
O1: Adjust 4mA
O1: Adjust 20mA
To
OPERATING PAGE
A:T.Zero (1K0)
B:T.Zero (1K0)
A:T.Span (1K5)
B:T.Span (1K5)
Available only if the Option Board is fitted
and Analog features enabled – see Section 7.3
Key
Cal. Output 3 Cal. Output 4
O3: Adjust 4mA O4: Adjust 4mA
O3: Adjust 20mA O4: Adjust 20mA
Cal. Output 2
O2: Adjust 4mA
O2: Adjust 20mA
Use the Sidescroll Key to scroll through the Pages within each Menu
Use the Menu
Key to scroll
through
the Menus
Use the Downscroll
Key to scroll through
the Frames
within each Page
Section 7.3, Page 58
A:T.Span (5K0)
A:T.Zero (2K0)
B:mV Span (+1V)
B:T.Zero (2K0)
B:T.Span (5K0)
B:mV Zero (-1V)
Dual input analyzer only
Alter Fact.CodeOption Board
Note. The
Option Board
page is
displayed only if the Option Board is fitted.
89

Table of Contents

Related product manuals