EasyManua.ls Logo

Pegasus M852-13 - テーブル加工図; Schematic Diagram of the Sewing Machine Table

Pegasus M852-13
120 pages
Print Icon
To Next Page IconTo Next Page
To Next Page IconTo Next Page
To Previous Page IconTo Previous Page
To Previous Page IconTo Previous Page
Loading...
54
69
79
115
101
165
185
83
195
12
R20
R23
3-R20
R10
159
75






A
A


118
136
45
84
139
138
20
D
E
C
B
B
66
33
75
(525)
590
378
298
332
310



20
60
106
140
250
290
9-R10
R20
R23
375
355
349
335
263
250
235
107
45
1200
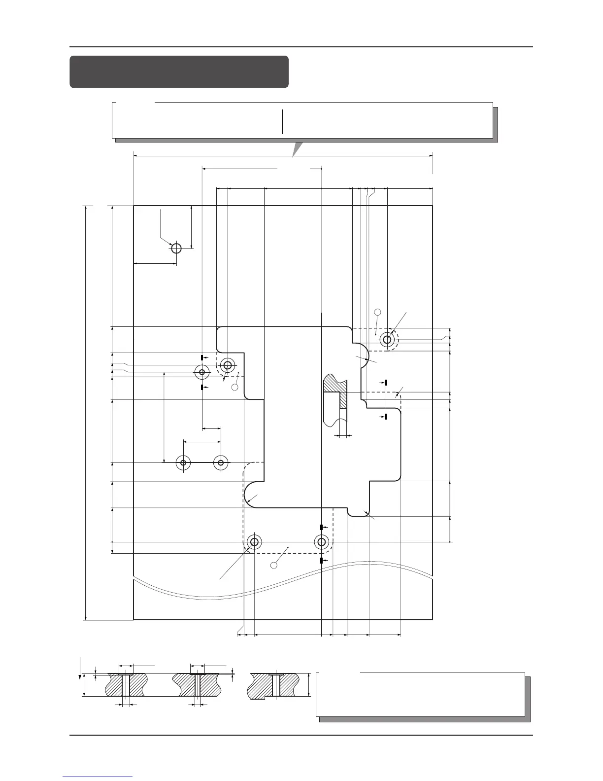
 Note

If the machine rest board is more than 40 mm thick, cut
it according to the dimensions marked by .
25.5
9
1.5
40
25.5
13
3
BB(3)
B-B cross section (x 3)
40

CDE
for CDE
Note

For motors made in Japan
210 mm

For Efka/Quick motors
238 mm
17 
17
Through hole
See Note.


Right side of the table

Rear side of the table

Front side of the table

Left side of the table

Standard dimensions
AA 4
A-A cross section (x 4)

Schematic diagram of the sewing machine table
半沈床式
Semi-submerged mounting

1
Fig.1

Table of Contents

Related product manuals