EasyManua.ls Logo

Powerware Plus 80 - Page 113

Default Icon
160 pages
Print Icon
To Next Page IconTo Next Page
To Next Page IconTo Next Page
To Previous Page IconTo Previous Page
To Previous Page IconTo Previous Page
Loading...
I
I@
I
I
I
I
I
I
Ia
I
I
I
I
I
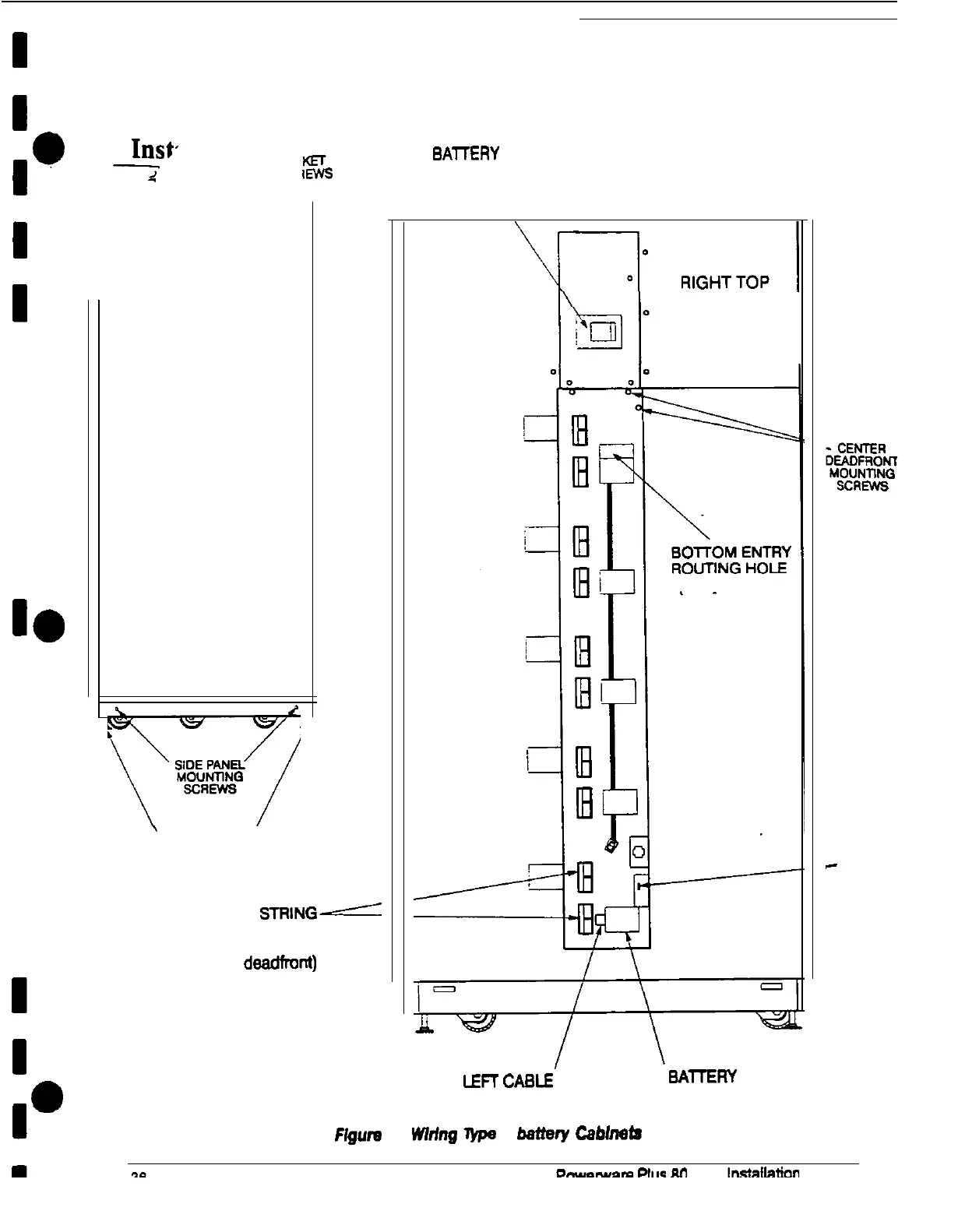
Inst*
d
zs
SIDE PANEL
LEVELING FEET
STRING-
CONNECTORS
(behind center
deadfront)
EATERY
BREAKER
\
DEADFRONT
LEFT
CABLE
SA-I~ERY DRAWER
CONNECTOR
CONNECTORS
_
RIGHT
CABLE
CONNECTOR
FIglIfe
22
wrfhlg
qpe
2
battery
cabllmta
36
Po~enwre
Plus
80
UPS
InstallaUon
Manual

Table of Contents

Related product manuals