EasyManua.ls Logo

Powerware Plus 80 - Page 139

Default Icon
160 pages
Print Icon
To Next Page IconTo Next Page
To Next Page IconTo Next Page
To Previous Page IconTo Previous Page
To Previous Page IconTo Previous Page
Loading...
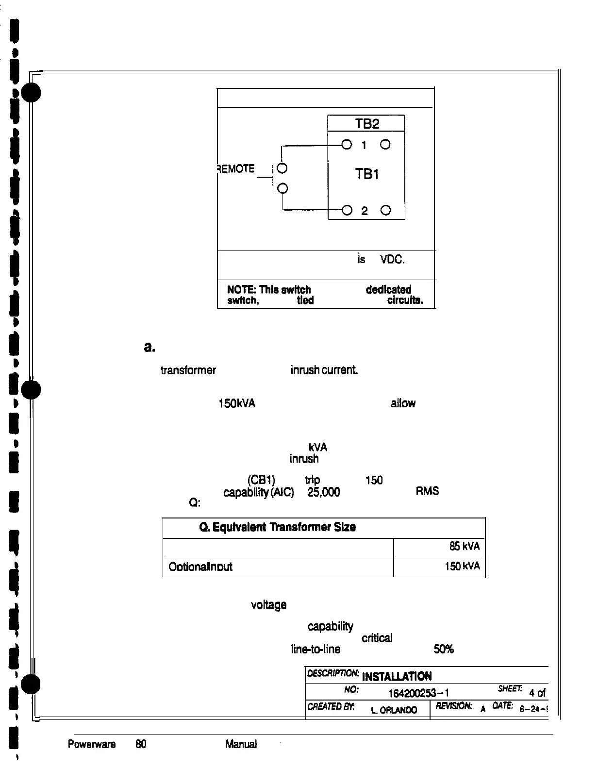
Table P. Remote
EPO
TB2
10
3EMOTE
0
EPO
SWITCH
-1
IfI
TBl
P
2 0
TWISTED
WIRES (2)
Remote EPO switch rating
/s
24
VW.
1 Amp minimum if supplied by user.
NOlEz
TM
swftch
must be a
dedicated
switch,
and
not
tied
into any other
circutts.
15. Notes about source protection:
a.
Source protection for the optional input transformer should be treated
as if you were supplying a three phase transformer, to allow for
trar&OmIer magnetization
inNsh
CUrreM.
b.
Source protection for the AC input should be treated as if you were
supplying a
150
kVA
three phase transformer, to
allow
for fitter inrush
current.
C. Source protection for the input to the bypass section should be treated
as if you were supplying a 150 kVA three phase transformer, to allow for
transformer magnetization
inNsh
current.
d.
The input breaker
(CM)
has a
trip
rating of
150
Amps AT and an Amp
interrupting capabiiii
(AIC)
of
25,ooO
in symmetrical
RMS
Amps. See
Table
Cl:
Table Q.
Equhralent
lhnsformer
Size for Determining Inrush
Standard Input (Auto Transformer)
85
kVA
Ootfonat
lnout
Isolation Transformer
150
kVA
16.
The input and bypass three phase feeds should be symmetrical about ground.
due to the existence of
voftage
surge protection devices.
17. The line-to-line unbalanced output
capability
of the UPS is limited only by the full
load per phase current values for AC output to critfcaf load shown in Table L on
page A-2. The recommended lineto-line load unbalance is
SC%
or less.
OESCRIPTION:
lN!SMLLAllON
NOTES
/
DRAWING
No:
164200253-1
:
SHEEE
4,,,
CREATED
m!
L
omANoo
RE!mmt
A
ME
e-24+
Powerware Plus 80 UPS
Installation
Manual
A-5

Table of Contents

Related product manuals