EasyManua.ls Logo

Rockwell Automation MagneMotion 700-0871-00 - Node Controller; NC-12 Node Controller, RJ45 Ethernet

Rockwell Automation MagneMotion 700-0871-00
148 pages
To Next Page IconTo Next Page
To Next Page IconTo Next Page
To Previous Page IconTo Previous Page
To Previous Page IconTo Previous Page
Loading...
Specifications and Site Requirements
Mechanical Specifications
58 MagneMotion
Rockwell Automation Publication MMI-UM013B-EN-P - April 2020
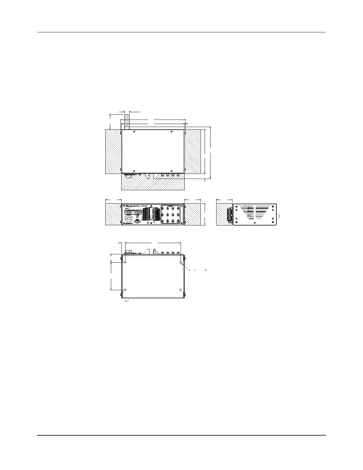
NC-12 Node Controller
The NC-12 node controller is available in two different configurations. The 700-1482-00 ver-
sion provides a standard RJ45 network connection and a 2 mm coax power connection. The
700-1573-00 version provides an M12 Eurofast
®
network connection and an M12 Eurofast
power connection.
NC-12 Node Controller, RJ45 Ethernet
Figure 4-5: NC-12 Node Controller Mechanical Drawing, RJ45 Ethernet
NOTE: A minimum of 50% of each vent must be clear for unobstructed airflow.
A mounting kit is available for standard 19 in electronics racks (see NC-12 Rack
Mounting Bracket on page 61).
Ingress Protection Rating: IP20.
See NC-12 Node Controller on page 72 for the electrical specifications.
Contact ICT Customer Support for current detail drawings.
Exposed Materials
The node controller provides openings for airflow and must not be installed where harsh con-
ditions exist.
All Dimensions in Millimeters [Inches]Weight: 3.6 kg [8 lb]
700-1482-00

Table of Contents

Related product manuals