EasyManua.ls Logo

Rockwell Automation MagneMotion 700-0871-00 - Nc Lite; NC LITE Mechanical Drawing

Rockwell Automation MagneMotion 700-0871-00
148 pages
To Next Page IconTo Next Page
To Next Page IconTo Next Page
To Previous Page IconTo Previous Page
To Previous Page IconTo Previous Page
Loading...
Specifications and Site Requirements
Mechanical Specifications
62 MagneMotion
Rockwell Automation Publication MMI-UM013B-EN-P - April 2020
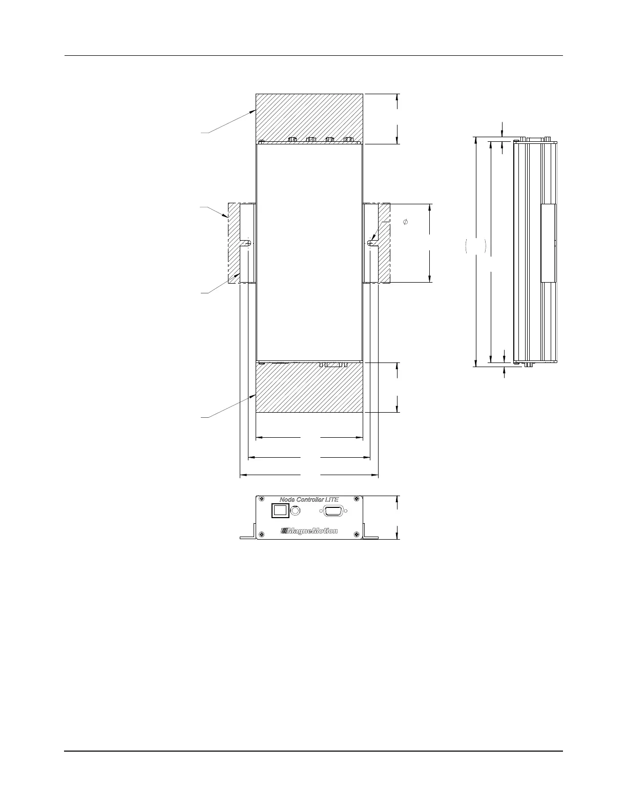
NC LITE
Figure 4-9: NC LITE Mechanical Drawing
NOTE: A plate is available for mounting (see Electronics Mounting Plate on page 63).
Ingress Protection Rating: IP30.
See NC LITE on page 78 for the electrical specifications.
Contact ICT Customer Support for current detail drawings.
Exposed Materials
The node controller has unprotected openings and must not be installed in locations where
harsh conditions exist.
8X
ADJUSTABLE SLIDING
MOUNTING BRACKETS
MOUNTING PLATE REQUIRED
ON CROSSHATCHED AREA
2X
CABLE CONNECTOR
EXCLUSION AREA
CABLE CONNECTOR
EXCLUSION AREA
PWRLAN
18 VDC PoE ONLY
CONSOLE
[0.17]
4.3
[1.75]
44.5
[4.27]
108.5
[4.88]
124.0
[5.52]
140.2
[2.5]
63.5
[2.5]
63.5
[0.19]
4.8
2X
[3.13]
79.5
[0.220]
5.59
[9.19]
233.4
[8.84]
224.5
All Dimensions in Millimeters [Inches]Weight: 0.7 kg [1.5 lb]
700-0871-00

Table of Contents

Related product manuals