EasyManua.ls Logo

sauter Equitherm - 11 Accessories; 12 Wiring Diagram; 13 Dimension Drawing; Fig. 13: Wiring Diagram

sauter Equitherm
110 pages
Print Icon
To Next Page IconTo Next Page
To Next Page IconTo Next Page
To Previous Page IconTo Previous Page
To Previous Page IconTo Previous Page
Loading...
EQJW145:
Heating controller
Accessories
7010015003 A
93
© Fr. Sauter AG
11 Accessories
See the Sauter PDS for more components.
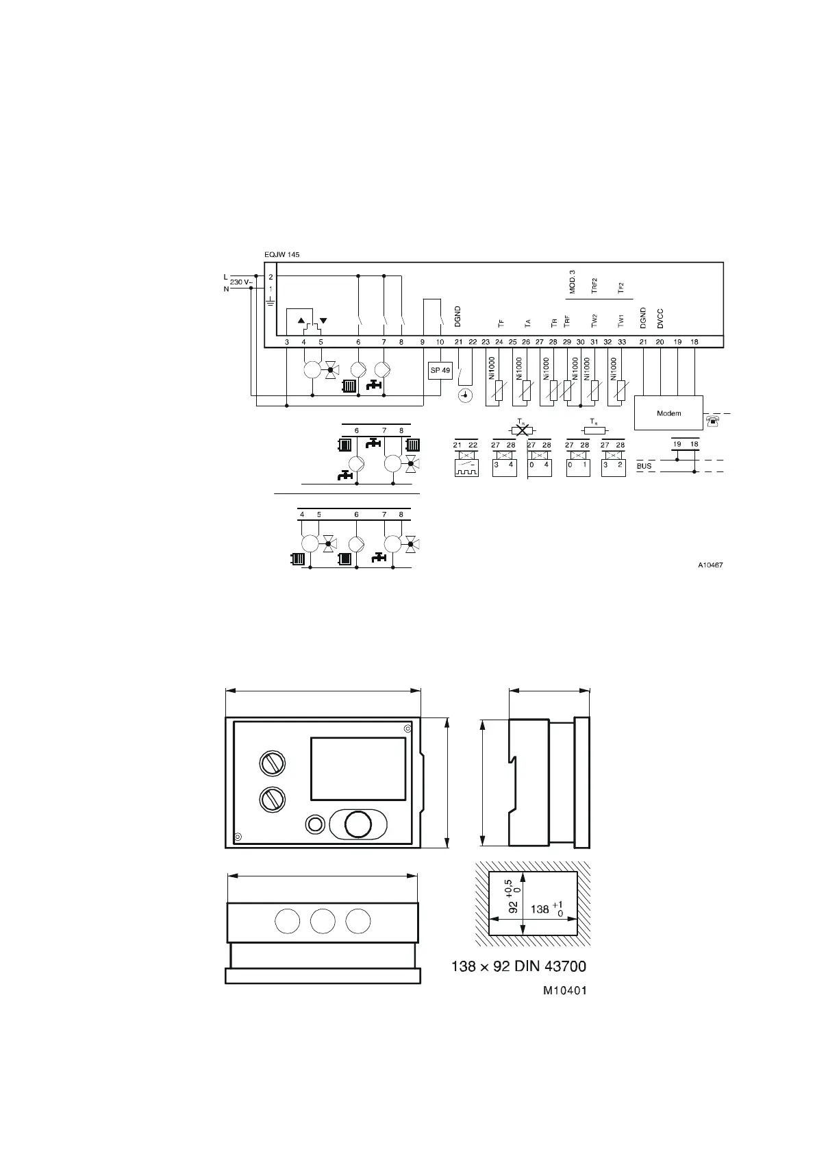
12 Wiring diagram
M
EGT 333
EGS 52/15
EGT 333
EGS 52/15
D
A
T
A
2
D
A
T
A
1
B
A
M
M
M
MOD 3
MOD 1, 2
Fig. 13: Wiring diagram
13 Dimension drawing
146
98
61
9
2
138
Fig. 14: Dimension drawing of EQJW 145

Table of Contents

Related product manuals