EasyManua.ls Logo

Siemens SENTRON - Three-Phase 4-Wire Network with Neutral (3 PH + N); Circuit Diagram for the 3 KC4 Transfer Switching Equipment - 4-Pole Transfer Switching Equipment

Siemens SENTRON
224 pages
Print Icon
To Next Page IconTo Next Page
To Next Page IconTo Next Page
To Previous Page IconTo Previous Page
To Previous Page IconTo Previous Page
Loading...
Connection
6.1 Network types
32 Manual, 08/2017, L1V30368969104A-02
6.1.1
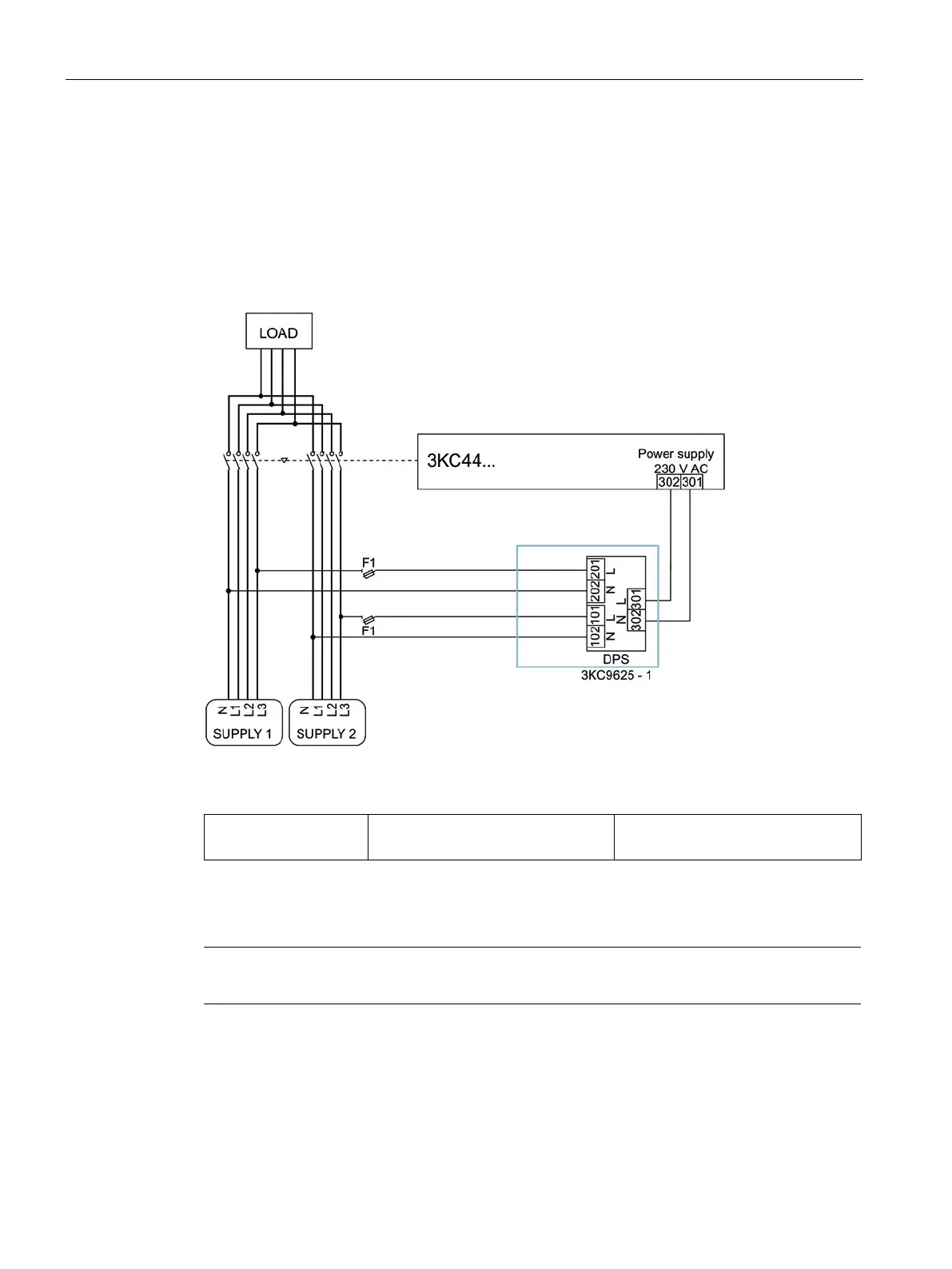
Three-phase 4-wire network with neutral (3PH + N)
The 3KC4 and 3KC8 transfer switching equipment can be used in a network comprising
three phases and a neutral conductor.
6.1.1.1
Circuit diagram for the 3KC4 transfer switching equipment - 4-pole transfer switching
equipment
Figure 6-1 Three-phase 4-wire network with neutral for the 3KC4 transfer switching equipment
F1 1 x 3NW6004-1
1 x 3NW7013
4 A, gG
For the power supply of the transfer switching equipment, the dual power supply accessory
3KC9625-1 is required. You can find a detailed description in the section titled Mounting and
connecting the dual power supply (DPS) (Page 77).
Note
The F1 fuses must be installed as closely as possible to the tap.

Table of Contents

Other manuals for Siemens SENTRON

Related product manuals