EasyManua.ls Logo

Siemens SIRIUS 3RW44 - (E. G. at the Control Cabinet); Activation Via PROFIBUS with Switching to Manual Operation Local

Siemens SIRIUS 3RW44
262 pages
To Next Page IconTo Next Page
To Next Page IconTo Next Page
To Previous Page IconTo Previous Page
To Previous Page IconTo Previous Page
Loading...
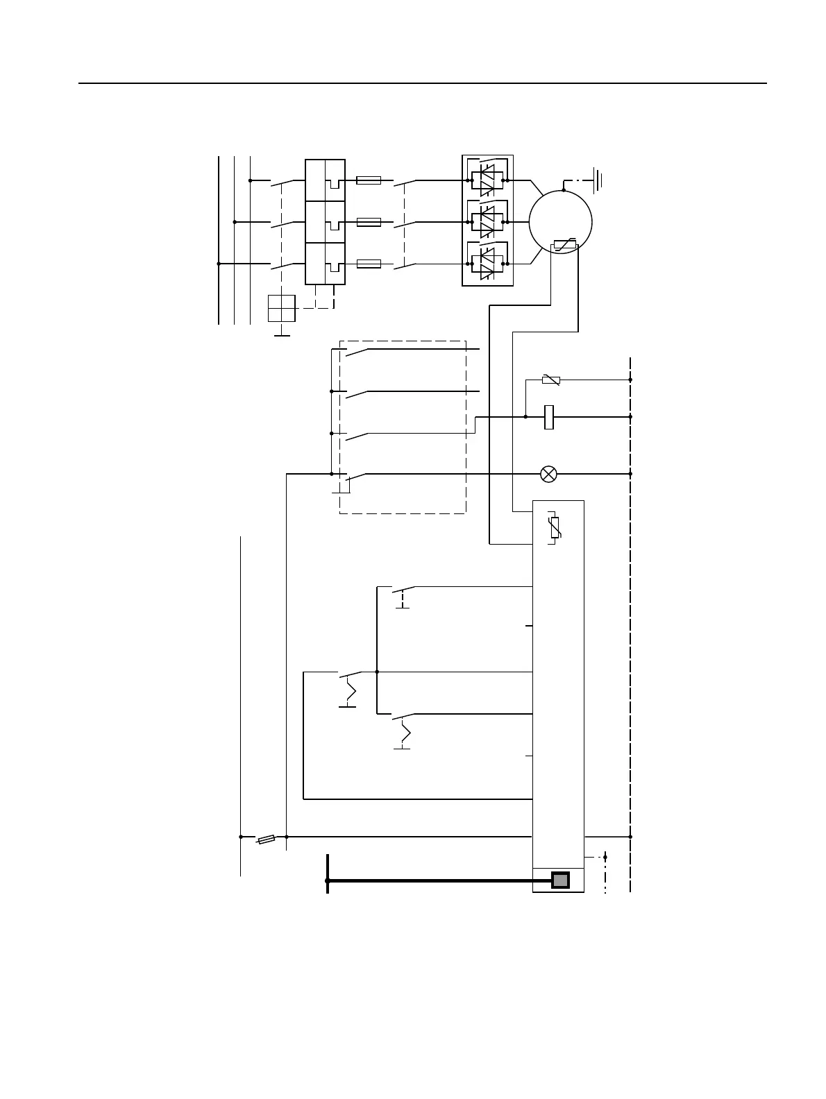
Circuit Examples
SIRIUS 3RW44 manual
GWA 4NEB 535 2195-02 DS 06
9-9
9.1.8 Activation via PROFIBUS with Switching to Manual Operation Local
(e. g. at the Control Cabinet)
1) For permissible main and control voltage values, refer to Technical Data, pages 10-12 to 10-16.
$
1
3(
3(
/ / ,1 ,1 ,1 ,1 7 7
4
)
$
13(9$&

+]
4
4
4
0
3(
0
a
/
/
/
/ / /
7 7 7
4

  

6
8
$
$
$
$
3URILEXV'3
+
8:
9
/
4
6
6
I >> I >> I >>
˽
˽

)
6,725
RSWLRQ
0RWRUULJKW36
,QSXW
WKHUPLVWRU
SURWHFWLRQ
*URXSHUURU
IL[HGDOORFDWLRQ
2QWLPH
1RDFWLRQ
1RDFWLRQ
2SHUDWLQJPRGH
1RDFWLRQ
6HOHFWLRQVZLWFK
0DQXDORSHUDWLRQORFDO
6WDUW6WRS
PDQXDO
RSHUDWLRQORFDO
PDQXDO
RSHUDWLRQ
ORFDO
)DXOW
13(9$&

+]
0DQXDORSHUDWLRQORFDO
7ULS 5HVHW
5HVHW

Table of Contents

Other manuals for Siemens SIRIUS 3RW44

Related product manuals