EasyManua.ls Logo

Siemens SIRIUS 3RW44 - Dimension Drawings

Siemens SIRIUS 3RW44
262 pages
To Next Page IconTo Next Page
To Next Page IconTo Next Page
To Previous Page IconTo Previous Page
To Previous Page IconTo Previous Page
Loading...
General Technical Data
SIRIUS 3RW44 manual
10-30 GWA 4NEB 535 2195-02 DS 06
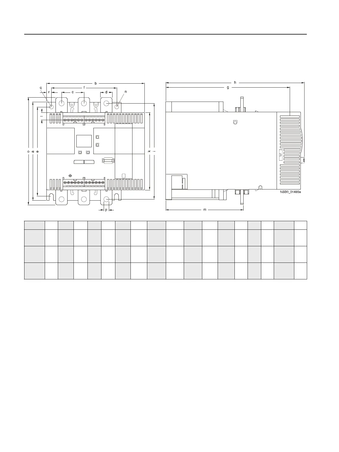
10.5 Dimension Drawings
mm (inch)
3RW44 2
3RW44 3
3RW44 4
Type
a bcdefghi klmnopqq
3RW44 2
180
(7.09)
170
(6.69)
37
(1.46)
11
(0.43)
167
(6.57)
100
(3.94)
240
(9.45)
270
(10.63)
174
(6.85)
148
(5.83)
7,5
(0.30)
153
(6.02)
7
(0.28)
184
(7.24)
6,6
(0.26)
M6
10 Nm
(89 lbf.in)
10
(0.39)
3RW44 3
180
(7.09)
170
(6.69)
37
(1.46)
17
(0.67)
167
(6.57)
100
(3.94)
240
(9.45)
270
(10.63)
174
(6.85)
148
(5.83)
7,5
(0.30)
153
(6.02)
7
(0.28)
198
(7.80)
9
(0.35)
M6
10 Nm
(89 lbf.in)
10
(0.39)
3RW44 4
210
(8.27)
210
(8.27)
48
(1.89)
25
(0.98)
190
(7.48)
140
(5.51)
269
(10.59)
298
(11.73)
205
(8.07)
166
(6.54)
16
(0.63)
166
(6.54)
9
(0.35)
230
(9.06)
11
(0.43)
M8
15 Nm
(134 lbf.in)
10
(0.39)

Table of Contents

Other manuals for Siemens SIRIUS 3RW44

Related product manuals