EasyManua.ls Logo

Sinoboom TB24 Plus - Page 134

Default Icon
170 pages
Print Icon
To Next Page IconTo Next Page
To Next Page IconTo Next Page
To Previous Page IconTo Previous Page
To Previous Page IconTo Previous Page
Loading...
© Jun 2022 6-44 TB24 Plus&26J Plus Maintenance Manual
REPAIR PROCEDURES
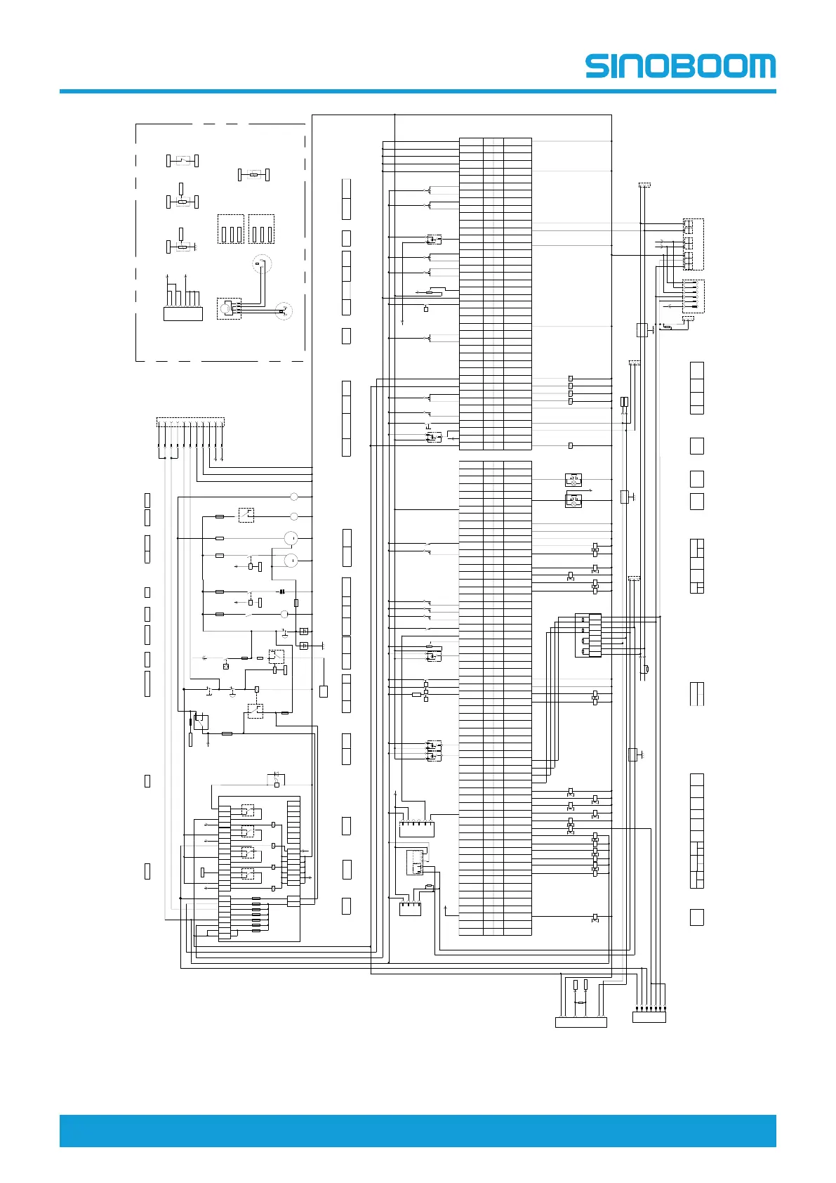
Figure 6-45 Electrical schematic of turntable, WEICHAI WP3.2/China Phase 4
θ
CANH4
CANL4
GND
F6
F2
F1
F4
S1
F2
F3
F6
F1
S206
S207
S202
Platform Leveling
Up
Down
Main Boom Lift
Main Boom
Horn
Retract
Extend
Alternator
High Drive
Speed
Turntable Swing
Right
Left
Steer
Left
Right
Up Down
Brake Valve
Auxiliary Power
Oil Cooler
Warning Lamp
Buzzer
Telescope
Main Boom
Telescope
Di-axial Level
Turntable Swing
Rear Inspect
Platform/Ground
Select Switch
Oil Filter
Horn
Auxiliary
Platform Leveling
Platform Rotate
Hydraulic Filter
Main Boom Lift
Jib
Turntable Swing
Pump Relay
Floating 1
Display
S205
Starter
37
36
35
34
33
32
21
20
19
18
17
16
15
14
13
12
11
10
9
8
5
4
3
1
2
47
48
49
50
51
52
53
54
46
43
42
41
40
39
38
45
44
55
PWM_OUT_16
PWM_OUT_36
OUT_20
PWM_OUT_34
PWM_OUT_33
F_IN_75
F_IN_73
F_IN_74
OUT_22
OUT_21
F_IN_71
F_IN_72
IN_42
IN_43
T_IN_63
T_IN_64
T_IN_65
V_IN_40
V_IN_41
T_IN_62
GND
PWM_OUT_17
PWM_OUT_15
PWM_OUT_35
OUT_19
PWM_OUT_18
PWM_OUT_13
PWM_OUT_14 F_IN_70
F_IN_69
V/IN_18
V/IN_17
V/IN_15
V/IN_16
V(C)_IN_52
V_IN_38
IN_44
V_IN_39
V/IN_22
V/IN_20
GND
GND V/IN_04
V/IN_06PWM_OUT_09
PWM_OUT_11
PWM_OUT_05
PWM_OUT_07
PWM_OUT_01
PWM_OUT_03
IN_45
92
91
90
89
88
87
86
85
84
83
82
81
80
79
78
77
76
75
74
73
72
71
70
69
68
67
66
65
64
63
62
61
60
59
58
56
57
96
94
93
IN_46
V/IN_10
V/IN_08
V/IN_07
CAN L4
V_IN_33
V(C)_IN_61
V_IN_34
CAN H4
V(C)_IN_58
V(C)_IN_53
V(C)_IN_59
V(C)_IN_60
V(C)_IN_56
IN_47
PWM_OUT_10
PWM_OUT_12
PWM_OUT_08
PWM_OUT_02
PWM_OUT_04
PWM_OUT_41
PWM_OUT_42
PWM_OUT_43
PWM_OUT_44
PWM_OUT_37
PWM_OUT_38
PWM_OUT_39
PWM_OUT_40
PWM_OUT_46
PWM/OUT_45
OUT_24
OUT_23
IN_48
IN_49OUT_26
OUT_25
CAN L3
CAN H3
PWM_OUT_06
IN_50
F_IN_68
GND
GND
V/IN_23
31
30
29
28
27
26
25
24
23
22
7
6
37
36
35
34
32
31
30
29
28
27
26
25
24
23
22
19
18
17
14
13
12
11
10
9
8
6
5
4
3
1
47
48
49
50
51
52
40
39
38
45
GND
GND
供电电源
+
供电电源
+
V/IN_03
V/IN_14
V/IN_19
V/IN_28
V/IN_09CAN H1
CAN L1 V_IN_36
V(C)_IN_54
VSS_1
A_OUT_47
GND
V/IN_5
V/IN_21
V/IN_27
V_IN_37
V(C)_IN_57
INH
V(C)_IN_55
WAKE
V_IN_35
VSS_2GND
V/IN_26
V/IN_24
V/IN_02
V/IN_30
V/IN_12
V/IN_31
KL15OUT_28
OUT_31
V/IN_25
V/IN_29
IN_51
V/IN_01
V/IN_32
V/IN_11
CAN H2
CAN L2
VSS_3
58
OUT_30
OUT_32
供电电源
+
供电电源
+
供电电源
+
F_IN_67
F_IN_66
V/IN_13
OUT_29
OUT_27
GND
供电电源
+
供电电源
+
33
21
20
16
15
7
2
53
54
46
43
42
41
44
55
56
57
DT11
DT10
DT1a
DT1b
DT17
DT8a
DT8b
DT6a
DT6b
DT14a
DT14b
DT4
DT7
DT5
DT18
B200
K14
85
86
DT3
K9
K8
85
86
A1
A2
B201
K11
85
86
Protection
DT13b
DT13a
GND
GND
GND
GND
GND
GND
GND
F1
F2
F2
F2
F2
S201
S200
S209
SA200-II
Engine Start
4
3
1
L201
SQ214
S211
SB201
Switch
Power
L200
Low Fuel
Level Indicator
ST200
SQ213
SQ212
Inspect
F2
GND GND
GND
CANH2
CANL2
CANH1
CANL1
F3
GND
Oil temp
250
251
252
253
256
257
258
259
260
261
262
263
264
265
266
267
268
269
272
273
274
275
276
277
278
279
280
281
271
254
255
287
288
291
292
283
284
290
289
201
202
203
204
205
206
207
211
212
213
214
GND
GND
219
220
221
222
223
224
225
226
227
228
229
230
231
232
233
234
235
236
238
237
239
2/19
K19
85
86
Engine
Alarm Stop
CANH3
CANL3
F4
2
345
V+
V-
CANH
CANL
L202/203
Angle Sensor
GNDS
282
285
286
120Ω
CANH1
CANL1
B
C
A
C24
25
34
24
2
1
Length Sensor
4
3
1
SQ202
4
3
1
SQ203
DT9
DT12
241
242
208
5
6
S1
S2
1
234
+V
-V
A1
A2
CANH4
CANL4
Drive Direction Control
Forward Back
215
216
217
218
F1
17
33
GND
GND
B+
BAT2
BAT1
SA201
37
B05
S1
B03
FU2 50A
19
FU6 25A
B02
M
_
E
-
B+
D+
M
31
30
50
FU1 10A
FU3 200A
K9
M3
K25
S101
M
M1
20
15
B06
06
GND
GND
FU5 150A
14
B01
GND
11
K8
02
G1
B04
SA200-I
B04
18
06
FU9 10A
F5
F5
12
G
M2
85
86
87a
30
87
87a
30
87
Platform Electrical
Power/Emergency Stop
85
86
K5
F3
FU4 400A
K11
87a
30
87
K10
85
86
85
86
87a
30
87
85
86
K10
K21
85
86
K11
F4 10A
F3 10A
F7 15A
F5 10A
87a
30
87
87a
30
87
F4
F1 15A
K14
K14
F3
F1
F1
F7
F5
F2
F6 2A
F2 15A
PCB
(1)
F1
22
F6
XJ2-3
XJ1-3/4
XJ1-1/2
B06
XJ1-22
XJ1-23/24
XJ1-25/26
XJ1-27/28
XJ1-29/30
XJ1-31/32
GND
XJ2-4
XJ2-12
XJ2-2
XJ2-1
XJ2-10
XJ2-7
XJ2-8
XJ2-5
XJ2-6
XJ2-9
XJ2-11
XJ2-14
XJ2-13
XJ2-16
XJ2-15
XJ1-5/6
XJ1-7/8
XJ1-9/10
XJ1-11/12
XJ1-19/20
XJ1-15/16
XJ1-17/18
XJ1-13/14
XJ3-1/11
XJ3-2/12
XJ3-3/13
XJ3-4/14
XJ3-5/15
XJ3-6/16
XJ3-7/17
XJ3-8/18
B05
203
204
XC2:43
XC2:44
B04
05
HA
CANL1
CANH1
CANL4
CANH4
XJ3-1/11
XJ3-2/12
XJ3-3/13
XJ3-4/14
XJ3-5/15
XJ3-6/16
XJ3-7/17
XJ3-8/18
PCB
(2)
120Ω
CANL3
CANH3
120Ω120Ω120Ω
CANL2
CANH2
CANH1
CANL1
CANH1
CANL1
Platform Electrical
GND
XJ1-21
L204/205
CANH3
CANL3
B
C
A
C25
XJ
XJ
XC1 XC2
S212
297
Turntable Enable
GND
Fault Line
Inspect II Inspect I
Fault Line
SQ200
270
4
3
1
FU8 50A
17
16
ECU K30
FU10 5A
Engine ECU
GND
1
2
N1
U1
GND
U2
N2
N
U
G
1
2
G2
ECU-A84
ECU-A99
+
-
ECU-A91
VEHICLE_SPEED_SENSOR
07
-
WATER_IN_FUEL
ECU-A93
ECU-A86
-
COOLANT_TEMPERATURE
ECU-A111
-
OIL_PRESS_SWITCH
HYDRAULIC_ALTEMATOR
07
250Ω/5W
Power/Emergency Stop
Key Switch
Main Power Switch
Auxiliary Unit
Glow plug
Alternator
Starter
Oil Cooler
Horn
F1
F6
F2
F3
F4
CANH2
CANL2
Engine
CANH1
CANL1
F3
120Ω
DT19
Floating 2
Main Boom
Telescope Inspect
SQ201
Floating
Pressure Switch
Main Valve
System Pressure
4
3
1
GNDS
2/63
2/61
P205
GNDS
F2
F3
F6
F1
F2
F3
F6
F1
F2
F3
F6
F1
GND
CANH2
CANL2
CANH3
CANL3
CANH4
CANL4
37
GNDS
CANH1
CANL1
P206
S210
Engine High Speed
GND
Option
Reserve
Option
Option
CAN1-SH
CAN2-SH
CAN3-SH
Only TB18 Plus
Except TB18 Plus
Only GTBZ20m Series
Only GTBZ20m Series
Option Option
Option
ECU K21
K2
ECU K04
ECU K48
ECU-A92
ECU-K35
02
ECU K81
ECU K80
CANL2
CANH2
TCANH
TCANL
ECU-CAN0
ECU K76
ECU K12
ECU K32
ECU-CAN1
ECU K33
TOOL PORT T1
ECU K32
ECU K12
CANL2
16
1
4
9
14
6
CANH2
TCANL
TCANH
F1
GND
120Ω
F1
GND
Engine Start
K45
K63
K64
Engine
ECU
B01
K46
K47
K65
K66
GND
Power
ECU K81
ECU K80
M
_
M4
Fuel Pump
07
K19
87a
30
87
K44
CANH2
CANL2
B
C
A
C28
GND
2/64
+5V
+5V
Coolant
Level sensor
TCAN-Sh
CAN2-Sh
03
K44
K44
K44
K44
K15
ECU K01
02
Option
30
87
87a
FU7 25A
K44
K44
K44
B04A
B04A
F4
B04
GPS Model
8
4
3
7 1 2
CANH1 CANL1 CANL2 CANH2
V- Acc
5
V+
GPS
120Ω
7 4 3 2
Reserve
C27
9 8
F1
F4
F4
F1
GND
GND
CANH4
CANL4
72
72
CANL4
CANH4
B
C
A
C26
GPS
K21
CANL3
CANH3
1
2
CANH
CANL
L201
S
-
+
CANL3
CANH3
F3
GND
Level Sensor
Option
Di-axial Level Sensor OR Switch
B
C
A
Sart protection
Horn
72
P
P
P
Lift
Proportion
Slew
Proportion
Telescopic
Proportion
Public
Proportion
+
--
+

Table of Contents