EasyManua.ls Logo

Stryker FL23SE - Control with Nurse Call Normally Closed (N.C.)

Stryker FL23SE
193 pages
Print Icon
To Next Page IconTo Next Page
To Next Page IconTo Next Page
To Previous Page IconTo Previous Page
To Previous Page IconTo Previous Page
Loading...
www.stryker.com 72-1048E MM FL23SE REV A 157
Return To Table of Contents
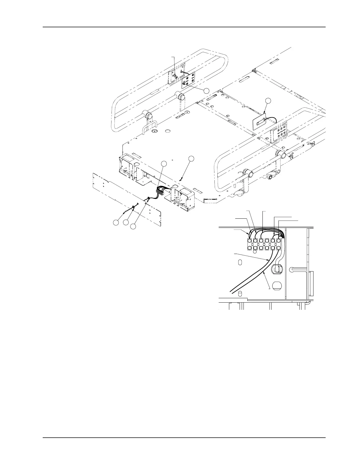
Control with Nurse Call Normally Closed (N.C.)
Control with Nurse Call Normally Closed (N.C.) (For Reference Only: OL230201, Rev. 01)
Item Part No. Part Name Qty.
1 QDF23-0396 Head and Foot Two-Functions
Module with Nurse Call 1
2 QDF23-0397 Head and Foot Two-Functions
Module with Nurse Call 1
3 VW60C122408 Nylon Spacer Washer 1
4 VW10C142402 Nylon Washer
0.505” ins. x 3/4” out. x 1/16” wi 1
5 QDF9012 Connection Terminal (6x2) 1
6 VV83A9E12 Tapping Screw Type B Pan Head
Phillips #8 x 3/8” z.p. 1
7 QDF23-0531 1/4 Normally Closed (N.C.) Phono
Plug Cable 1
For Reference Only: OL230201
Rev. 01
4
3
2
1
7
6
5
Insert Nurse Call Connector in the Legs
No 1 - White
Com 2 - Black
Com 1 - Black
No 2 - White
NC 1 - Red
NC 2 - Red
Black
Red

Table of Contents

Related product manuals