EasyManua.ls Logo

Texecom Premier Elite 24

Texecom Premier Elite 24
132 pages
To Next Page IconTo Next Page
To Next Page IconTo Next Page
To Previous Page IconTo Previous Page
To Previous Page IconTo Previous Page
Loading...
Premier Elite 24,24-W, 48,48-W, 88, 168 & 640 Installation Manual Installation
INS176-9 36
Plug-on Communicators
The Com300 is a multi format 8-channel digital communicator/300-
baud modem for use with a standard analogue telephone line.
The Com2400 is a multi format 8-channel digital communicator/2400-
baud modem for use with a standard analogue telephone line in
addition, this modem can also send Short Message Service (SMS)
text messages to a mobile phone.
These Communicators can be used to report system events to an
Alarm Receiving Centre using Fast Format, Contact ID or SIA Level II
or to upload/download control panel information using the Wintex UDL
software and a PC.
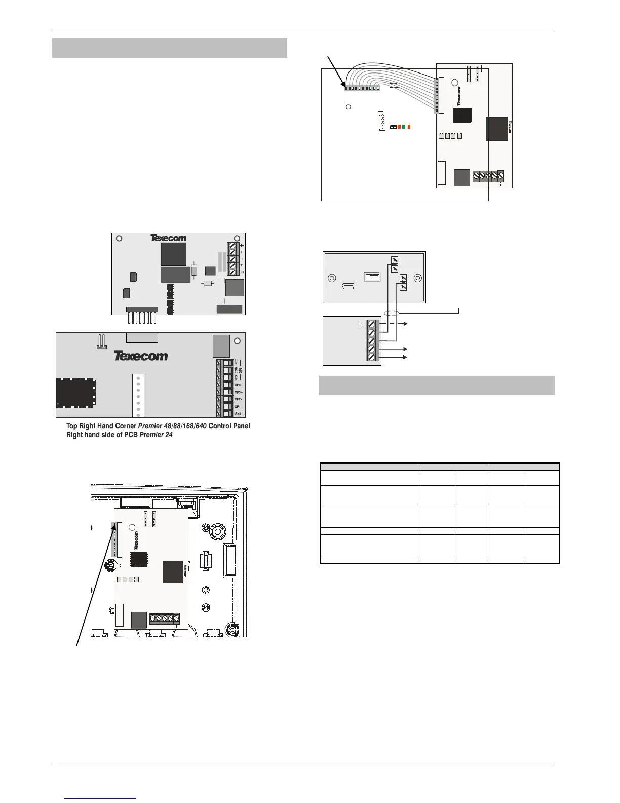
Plugging on the Communicator
Ensure that the board is the correct way up (see below). Locate the
plug into the communicator socket on the control panel and line up
the mounting holes with the pillars in the base. Once all the holes
line up, press down gently until the pillars snap into the holes.
48-W Connection
Carefully lift the control panel PCB and fix the COM unit into the
space provided with the connection lead attached.
T
R
T1
R1
A udio
C om 1
The red lead should be positioned on the uppermost pin of the
COM unit.
The control panel end of the connector should be attached with the
red lead on the left most pin of the digi modem connector.
T
R
T1
R1
Standard Telephone Line Connections
A standard telephone line must be connected to the Com300 or
Com2400 communicator as shown below:
Com GSM
The Premier Elite Com GSM is a 2G module that can be connected
to any Premier Elite control panel; however functionality differs
depending on the type of Premier panel installed and the type of
SIM card that is used. The tables below show which features are
available and the type of SIM card required to enable the services.
Premier Elite 24/48/88/168 & 640 SIM Type Panel Port Type
Feature
Dynamic
IP
Fixed IP
GSM
Module
Com IP
Report system events (alarms,
arm, disarm etc.) via text
messaging to mobile telephones
Remotely arm, disarm and obtain
current status of the alarm system
via text messaging
Upload/Download Via GSM
Alarm reporting to IP enabled
receivers (Montex for example)
GPRS
Upload/Download Via IP GPRS
A secondary form of communications should be used as back up
where possible.
When using Alarm reporting over IP with Montex, SIA, Contact ID
or, Fast Format may be used, however if using Texbase SIA is NOT
supported. Some receivers may require a Fixed IP address, please
check with your provider.
The Com port type must be programmed as one or the other, it is
not possible to use both GSM and GPRS (IP Only) functionality at
the same time.
Box
Ta mp
R1
R
T
T1
To other telephone
extension sockets
C om300
Com2400
or
Ma s ter
Socket
T = 5 or A - White/Blue ring
R = 2 or B - B lue/White ring
3
2
1
6
5
4
Telephone cable
Type 1/0.5mm CW1308
T his te rmina l mus t be c on nec te d to
the incoming AC Mains earth supply

Table of Contents

Other manuals for Texecom Premier Elite 24

Related product manuals