EasyManua.ls Logo

Ulvac RFP-N - Page 104

Default Icon
107 pages
Print Icon
To Next Page IconTo Next Page
To Next Page IconTo Next Page
To Previous Page IconTo Previous Page
To Previous Page IconTo Previous Page
Loading...
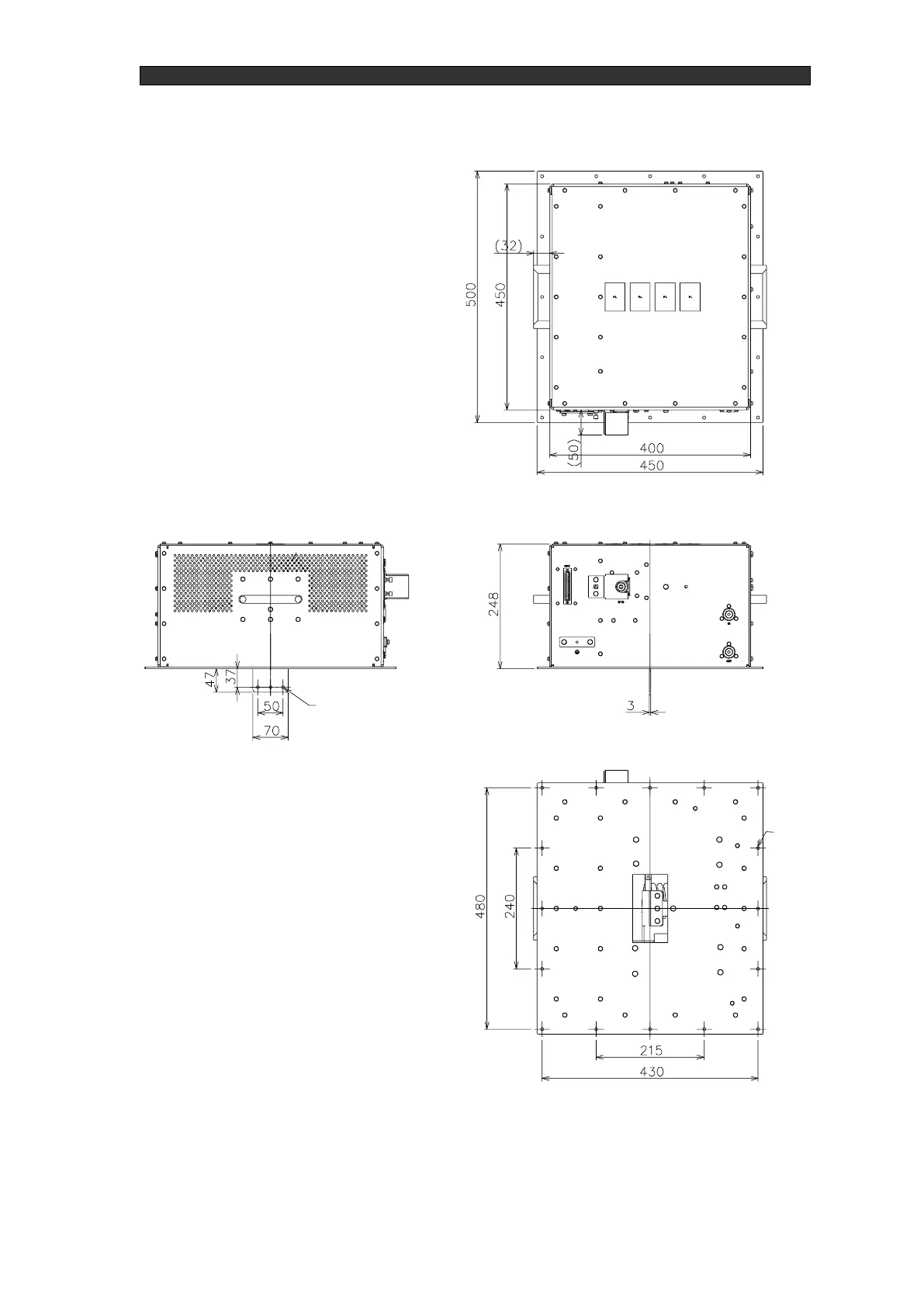
RF POWER SUPPLY and MATCHINGBOX
9. Reference Materials
96
Figure 9-7 MBX-1350N outline drawing
16-Ø6
3-n6

Table of Contents

Related product manuals