EasyManua.ls Logo

Ulvac RFP-N - Page 103

Default Icon
107 pages
Print Icon
To Next Page IconTo Next Page
To Next Page IconTo Next Page
To Previous Page IconTo Previous Page
To Previous Page IconTo Previous Page
Loading...
RF POWER SUPPLY and MATCHINGBOX
9. Reference Materials
95
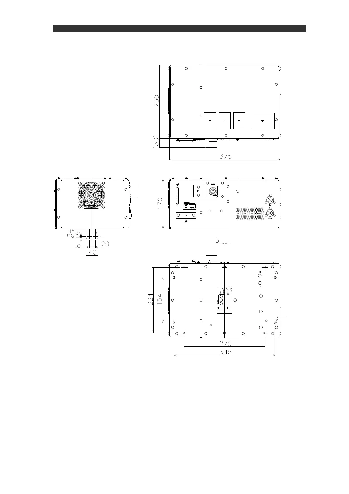
Figure 9-6 MBX-1330N outline drawing
10-M6
4-M4
10-M6_Depth_10mm

Table of Contents

Related product manuals