EasyManua.ls Logo

WinGD X72-B - Page 75

Default Icon
526 pages
Print Icon
To Next Page IconTo Next Page
To Next Page IconTo Next Page
To Previous Page IconTo Previous Page
To Previous Page IconTo Previous Page
Loading...
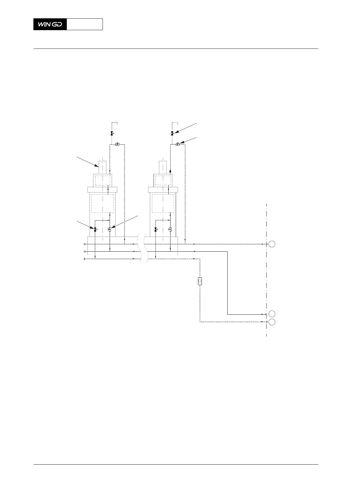
Fig 4-2 Cooling water system (generic and simplified)
Cyl. 1
Cyl. n
05
02
003
001
002
004
005
03
PLANT
ENGINE
Legend
001 Automatic venting unit 004 Drain valve
002 Shut-off valve cooling water outlet 005 Orifice
003 Shut-off valve
X72-B
AA00-0000-00AAA-043A-A
Operation Manual Cooling water system
Winterthur Gas & Diesel Ltd.
- 75 - Issue 003 2021-12

Table of Contents

Related product manuals