EasyManua.ls Logo

WinGD X72-B - System Oil System (Generic and Simplified)

Default Icon
526 pages
Print Icon
To Next Page IconTo Next Page
To Next Page IconTo Next Page
To Previous Page IconTo Previous Page
To Previous Page IconTo Previous Page
Loading...
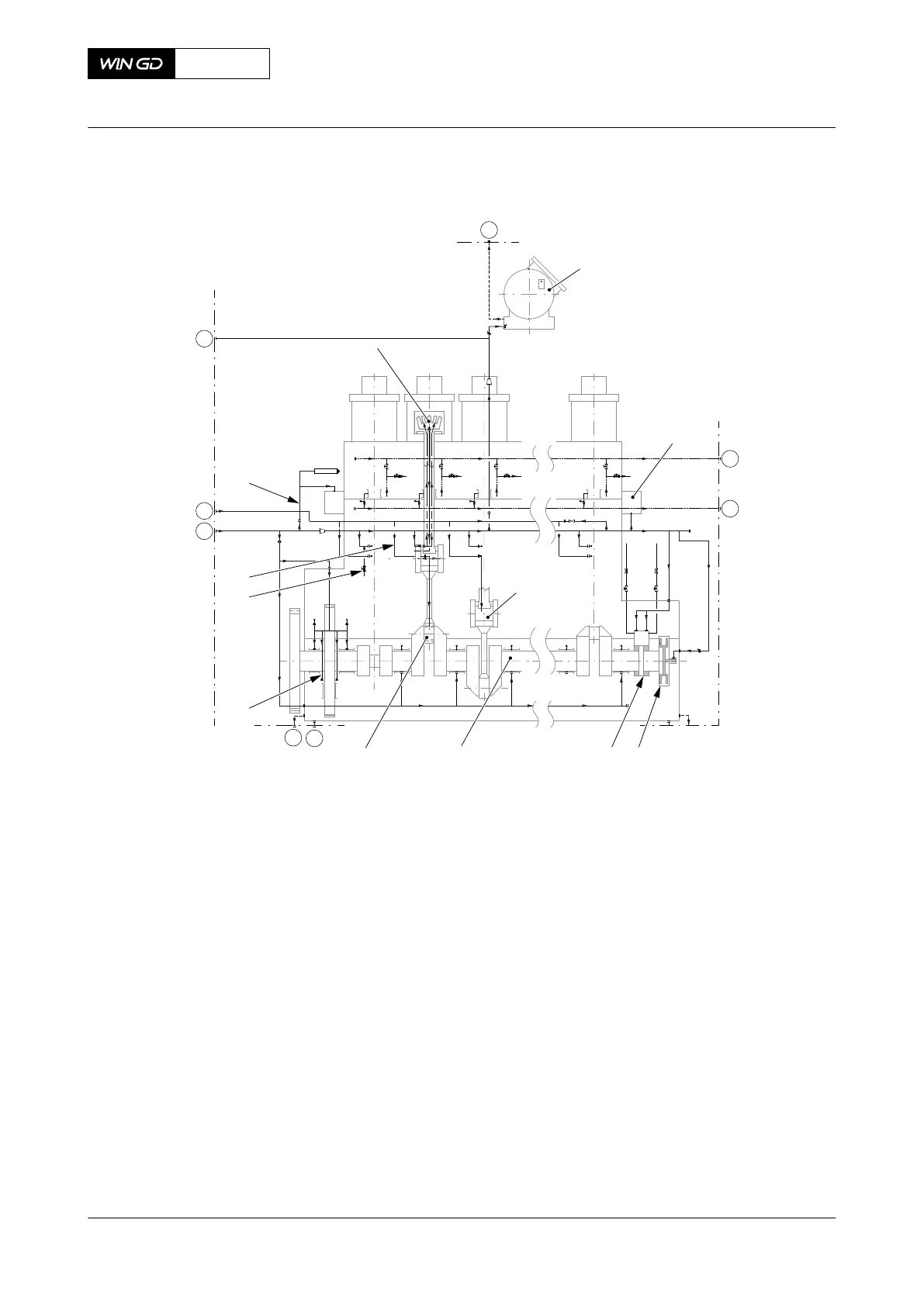
Fig 4-4 System oil system (generic and simplified)
Turbocharger
ENGINE
PLANT
ENGINE
PLANT
ENGINE
PLANT
Cylinder 1 Cylinder 2
Cylinder 3 Cylinder n
001
002
003004005006
008
009
010
011
012
007
36
37
22
23
30
26
25
27
Legend
001 Turbocharger 007 Crosshead
002 iELBA (optional) 008 Thrust bearing
003 Torsional vibration damper (optional) 009 Oil sample valve
004 Axial vibration damper 010 Lever
005 Main bearing 011 Supply pipe to servo oil system
006 Crank bearing 012 Piston
X72-B
AA00-0000-00AAA-043C-A
Operation Manual System oil system
Winterthur Gas & Diesel Ltd.
- 79 - Issue 003 2021-12

Table of Contents

Related product manuals